Nous utilisons des témoins et d’autres technologies pour assurer le fonctionnement et la sécurité de nos services en ligne, et pour vous offrir une expérience personnalisée. En continuant à utiliser nos services en ligne, vous acceptez notre Politique de confidentialité et les conditions d’utilisation. Pour obtenir des informations sur la façon de régler vos paramètres de confidentialité, veuillez consulter notre Politique sur les témoins.
Masquer
Accueil ON Grand Toronto Région de York Whitchurch-Stouffville
6859 MAIN STREET
Directions Imprimer
6859 MAIN STREET 938 000 $
938 000 $
Masquer
Favoris

6859 MAIN STREET
Whitchurch-Stouffville (Stouffville), Ontario L4A4X2

Numéro MLS® : N12568842
4
Chambres
4
Salles de bain
2000 - 2500
Pieds carrés

Résumé de la propriété

Type de propriété
Unifamiliale
Type de bâtiment
Maison en rangée
Étages
3
Superficie
2000 - 2500 pi2
Titre
Tenure franche
Superficie du terrain
19 x 65.2 FT
Âge de l'édifice
0 à 5 ans
Impôt foncier annuel
4 594,90 $
Type de stationnement
Garage
Sur REALTOR.ca depuis
20 jours

Édifice

Chambres
Au-dessus du niveau du sol
4
Salles de bain
Total
4
Partielle
2
Caractéristiques intérieures
Appareils électroménagers inclus
Lave-vaisselle, Sécheuse, Hotte, Cuisinière, Machine à laver, Couvre-fenêtre, Réfrigérateur
Couvre-plancher
plancher de bois franc, Céramique, Carrelage, Béton
Type de sous-sol
Non aménagé
Caractéristiques du bâtiment
Style
En rangée
Location de matérial incluse
Chauffe-eau
Chauffage et refroidissement
Système de refroidissement
Climatisation centrale
Type de chauffage
Air pulsé (Gaz naturel)
Services publics
Égouts
Égout sanitaire
Eau
Approvisionnement en eau par la municipalité
Caractéristiques extérieures
Revêtement extérieur
Brique
Caractéristiques du quartier
Caractéristiques de la communauté
Centre communautaire
Commodités à proximité
Terrain de golf à proximité, Lieu de culte, Transport en commun, Écoles
Infos entretien ou copropriété
Frais d'entretien
200,01 $ mois
Les frais d'entretien comprennent
Parcelle de terrain lié
Stationnement
Type de stationnement
Garage
Nombre total d'espaces de stationnement
4

Mesures

Superficie
2000 - 2500 pi2

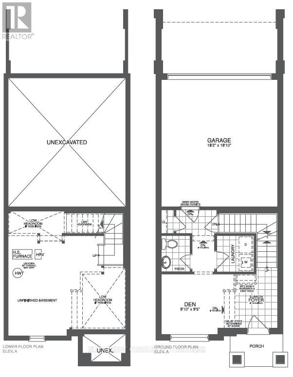
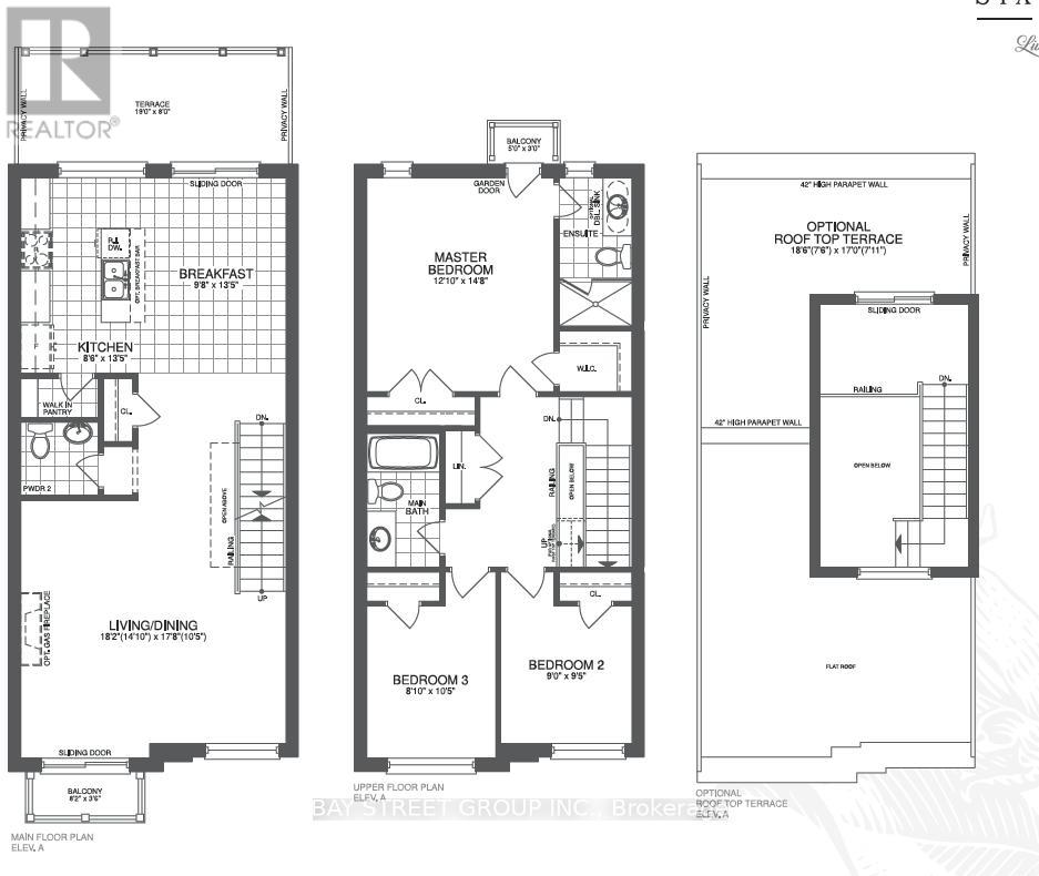
Pièces

MétriqueImpérial
Deuxième niveau
Cuisine
Salle à manger
Salon
Troisième niveau
Chambre principale
Troisième chambre
Quatrième chambre
Sous-sol
Autre
Niveau supérieur
Grenier
Niveau du sol
Vestibule
Chambre à coucher

Terrain

Caractéristiques du terrain
Façade
19 pi
Superficie du terrain
65 pi 2 po
Données fournies par : Toronto Regional Real Estate Board
Souhaitez-vous visiter cette propriété?
Demander une visite

Inscriptions semblables

LINDA WANG