Nous utilisons des témoins et d’autres technologies pour assurer le fonctionnement et la sécurité de nos services en ligne, et pour vous offrir une expérience personnalisée. En continuant à utiliser nos services en ligne, vous acceptez notre Politique de confidentialité et les conditions d’utilisation. Pour obtenir des informations sur la façon de régler vos paramètres de confidentialité, veuillez consulter notre Politique sur les témoins.
Masquer
Accueil QC Grand Montréal Montréal Le Plateau-Mont-Royal De Lorimier
4420 Rue D'Iberville #H
Directions Imprimer
4420 Rue D'Iberville #H 740 000 $ + TPS + TVQ
740 000 $ + TPS + TVQ
Masquer
Favoris

4420 Rue D'Iberville
#H
Montréal (Le Plateau-Mont-Royal), Québec H2H2L8

Numéro MLS® : 28627180
3
Chambres
1
Salles de bain
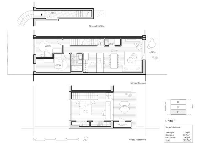
1217
Pieds carrés

Description de l’inscription

*OCCUPATION IMMÉDIATE* LEDUC d'Iberville - Superbe projet immobilier de 8 unites en copropriété divise conçu par la firme d'architecture La Shed. Construction et composition acoustique aux normes élevées. Esthétique et finition minimaliste: portes et fenêtres architecturales avec cadres anthracite, plancher de bois d'ingénierie essence érable, comptoirs de quartz, évier sous-plan, dosseret en mosaïque de grès, tuiles de porcelaine inspirée du terrazzo vénitien, etc. Chaque unité possède un espace extérieur privé (cour, terrasse ou balcon). Parc Baldwin à 1 min de marche, métro Frontenac à 5 min d'autobus et Shop Angus à 10 min de vélo! TPS/TVQ doivent être ajoutées au prix demandé (57749778)

Résumé de la propriété

Type de propriété
Unifamiliale
Type de bâtiment
Appartement
Étages
3
Superficie
1217 pi2
Quartier
Le Plateau-Mont-Royal
Titre
Copropriété divise
Date de construction
2025
Sur REALTOR.ca depuis
22 jours

Édifice

Salles de bain
Total
1
Partielle
0
Caractéristiques intérieures
Caractéristiques du sous-sol
Six pieds et plus
Type de sous-sol
Sous-sol complet (Aménagé)
Caractéristiques du bâtiment
Style
En rangée
Chauffage et refroidissement
Type de chauffage
(Électrique)
Services publics
Égouts
Égout municipal
Eau
Approvisionnement en eau par la municipalité
Caractéristiques du quartier
Commodités à proximité
Un cégep, Parc, Écoles, Transport en commun
Infos entretien ou copropriété
Frais d'entretien
1 $ mois

Mesures

Superficie
1217 pi2

Pièces

MétriqueImpérial
Deuxième niveau
Autre
Troisième niveau
Chambre à coucher
Chambre à coucher
Salle de bain
Cuisine
Salle à manger
Salon
Lieu de rangement
Quatrième niveau
Chambre principale

Terrain

Autres informations sur la propriété
Type de Zonage
Résidentiel
Caractéristiques de la ferme
Type de ferme
Autre
Souhaitez-vous visiter cette propriété?
Demander une visite

Inscriptions semblables

Benjamin Pelletier