Nous utilisons des témoins et d’autres technologies pour assurer le fonctionnement et la sécurité de nos services en ligne, et pour vous offrir une expérience personnalisée. En continuant à utiliser nos services en ligne, vous acceptez notre Politique de confidentialité et les conditions d’utilisation. Pour obtenir des informations sur la façon de régler vos paramètres de confidentialité, veuillez consulter notre Politique sur les témoins.
Masquer
Accueil ON Grand Toronto Toronto Vieux Toronto Wallace Emerson Junction-Wallace Emerson
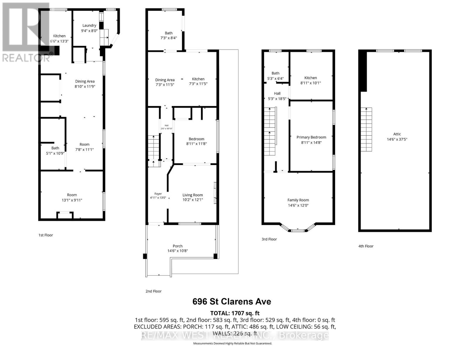
696 ST CLARENS AVENUE
Directions Imprimer
696 ST CLARENS AVENUE 849 900 $
Modification du prix le 2025/11/26
849 900 $
+150 000 $
699 900 $
Masquer
Favoris

696 ST CLARENS AVENUE
Toronto (Dovercourt-Wallace Emerson-Junction), Ontario M6H3X1

Numéro MLS® : W12560324
4
Chambres
3
Salles de bain
2000 - 2500
Pieds carrés

Résumé de la propriété

Type de propriété
Unifamiliale
Type de bâtiment
Unifamilial
Étages
3
Superficie
2000 - 2500 pi2
Titre
Tenure franche
Superficie du terrain
17.9 x 72 FT
Impôt foncier annuel
4 442 $
Type de stationnement
Aucun garage
Sur REALTOR.ca depuis
22 jours

Édifice

Chambres
Au-dessus du niveau du sol
4
Salles de bain
Total
3
Caractéristiques intérieures
Caractéristiques du sous-sol
Logement au sous-sol, Entrée distincte
Caractéristiques du bâtiment
Type de fondation
Blocs de béton
Style
Jumelée
Chauffage et refroidissement
Système de refroidissement
Aucun
Type de chauffage
Air pulsé (Gaz naturel)
Services publics
Égouts
Égout sanitaire
Eau
Approvisionnement en eau par la municipalité
Caractéristiques extérieures
Revêtement extérieur
Brique
Stationnement
Type de stationnement
Aucun garage
Nombre total d'espaces de stationnement
1

Mesures

Superficie
2000 - 2500 pi2

Terrain

Caractéristiques du terrain
Façade
17 pi 10 po
Superficie du terrain
72 pi
Données fournies par : Toronto Regional Real Estate Board
Souhaitez-vous visiter cette propriété?
Demander une visite

Inscriptions semblables

NICK PAVLOV