Nous utilisons des témoins et d’autres technologies pour assurer le fonctionnement et la sécurité de nos services en ligne, et pour vous offrir une expérience personnalisée. En continuant à utiliser nos services en ligne, vous acceptez notre Politique de confidentialité et les conditions d’utilisation. Pour obtenir des informations sur la façon de régler vos paramètres de confidentialité, veuillez consulter notre Politique sur les témoins.
Masquer
Accueil ON District de Nipissing Papineau-Cameron
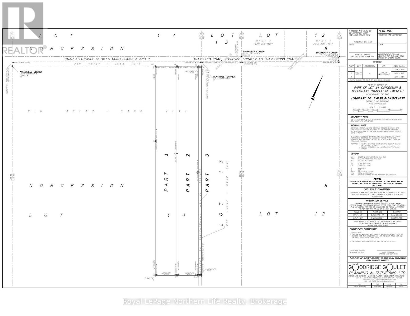
LT 14 PART 1 HAZELWOOD ROAD
Directions Imprimer
Plus de photos + 2
LT 14 PART 1 HAZELWOOD ROAD 85 000 $
85 000 $
Masquer
Favoris

LT 14 PART 1 HAZELWOOD ROAD
Papineau-Cameron (Papineau Cameron), Ontario P0H1V0

Numéro MLS® : X12557960
0
Salles de bain
-
Pieds carrés

Résumé de la propriété

Type de propriété
Terrain vacant
Superficie du terrain
150 x 716.9 FT|5 - 9,99 acres
Impôt foncier annuel
0 $
Type de stationnement
Aucun garage
Sur REALTOR.ca depuis
100 jours

Édifice

Salles de bain
Total
0
Services publics
Services publics disponibles
Électricité (Disponible)
Stationnement
Type de stationnement
Aucun garage

Terrain

Caractéristiques du terrain
Façade
150 pi
Superficie du terrain
716 pi 10 po
Données fournies par : North Bay Real Estate Board
Souhaitez-vous visiter cette propriété?
Demander une visite

Inscriptions semblables

JENNIFER KANE