Nous utilisons des témoins et d’autres technologies pour assurer le fonctionnement et la sécurité de nos services en ligne, et pour vous offrir une expérience personnalisée. En continuant à utiliser nos services en ligne, vous acceptez notre Politique de confidentialité et les conditions d’utilisation. Pour obtenir des informations sur la façon de régler vos paramètres de confidentialité, veuillez consulter notre Politique sur les témoins.
Masquer
Accueil ON Grand Midland Comté de Simcoe Penetanguishene
4 DUNLOP STREET
Directions Imprimer
4 DUNLOP STREET 629 900 $
629 900 $
Masquer
Favoris

4 DUNLOP STREET
Penetanguishene, Ontario L9M1J2

Numéro MLS® : S12557780
3
Chambres
3
Salles de bain
1500 - 2000
Pieds carrés

Résumé de la propriété

Type de propriété
Unifamiliale
Type de bâtiment
Unifamilial
Étages
1.5
Superficie
1500 - 2000 pi2
Titre
Tenure franche
Superficie du terrain
60 x 121.4 FT
Âge de l'édifice
31 à 50 ans
Impôt foncier annuel
4 100 $
Type de stationnement
Garage attenant, Garage
Sur REALTOR.ca depuis
23 jours

Édifice

Chambres
Au-dessus du niveau du sol
3
Salles de bain
Total
3
Partielle
1
Caractéristiques intérieures
Appareils électroménagers inclus
Lave-vaisselle, Sécheuse, Cuisinière, Réfrigérateur
Type de sous-sol
Sous-sol complet (Partiellement aménagé)
Caractéristiques du bâtiment
Type de fondation
Blocs de béton
Style
Isolée
Commodités qu'offre le bâtiment
Foyer(s)
Location de matérial incluse
Chauffe-eau
Structures
Remise
Chauffage et refroidissement
Système de refroidissement
Aucun
Foyer
2
Type de chauffage
Plinthes chauffantes, Inconnu (Électrique), Inconnu (Gaz naturel)
Services publics
Égouts
Égout sanitaire
Eau
Approvisionnement en eau par la municipalité
Caractéristiques extérieures
Revêtement extérieur
Parement de brique, Bardage en vinyle
Caractéristiques du quartier
Commodités à proximité
Plage, Marina, Parc, Lieu de culte
Stationnement
Type de stationnement
Garage attenant, Garage
Nombre total d'espaces de stationnement
5

Mesures

Superficie
1500 - 2000 pi2

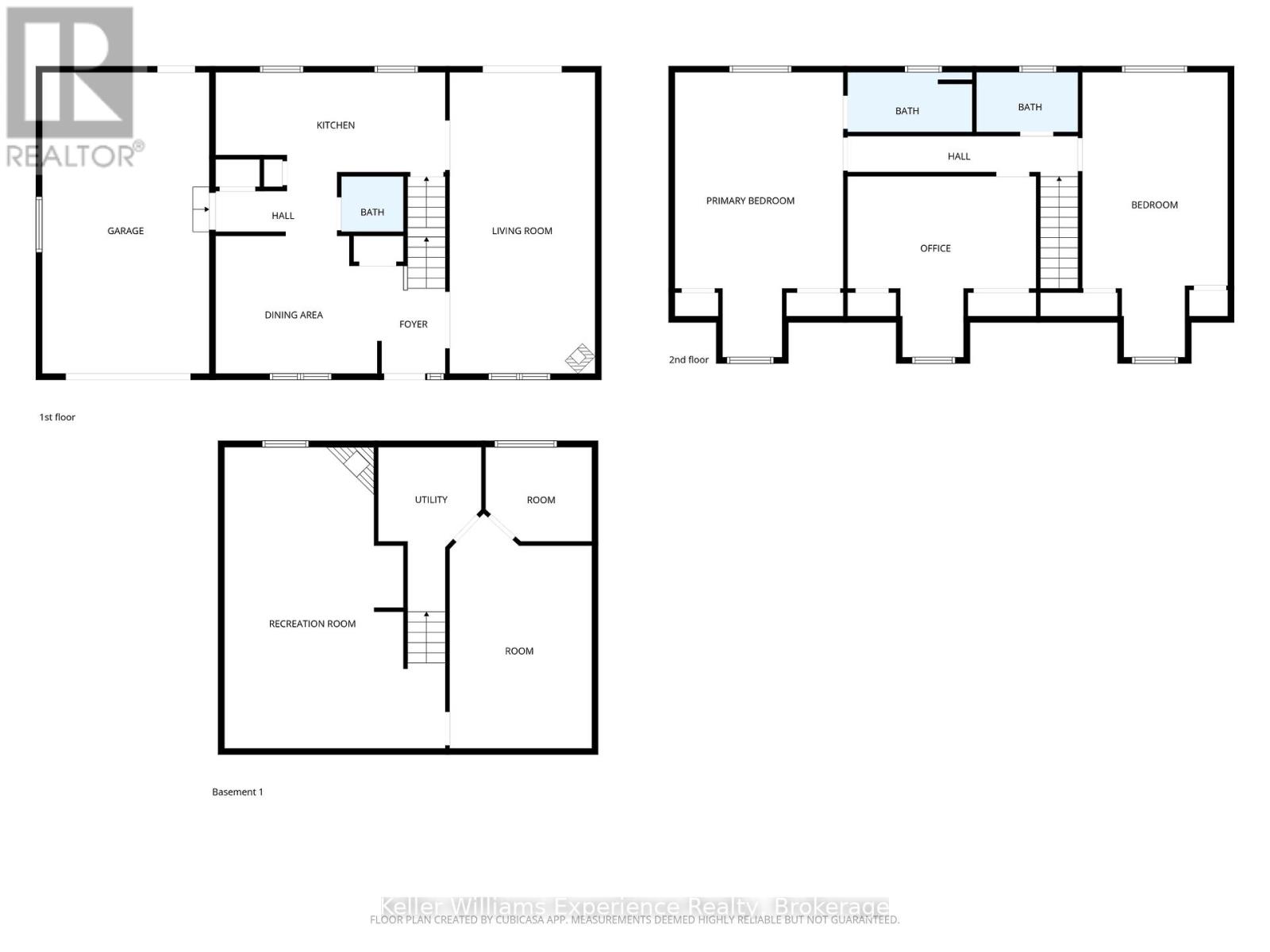
Pièces

MétriqueImpérial
Niveau principal
Salle à manger
Cuisine
Salon
Salle de bain
Deuxième niveau
Chambre principale
Salle de bain
Deuxième chambre
Troisième chambre
Salle de bain
Niveau inférieur
Salle de jeux
Salle de jeux, récréative

Terrain

Caractéristiques du terrain
Façade
60 pi
Superficie du terrain
121 pi 4 po
Caractéristiques du bord de l'eau
Eau de surface
lac/Étang
Données fournies par : OnePoint - The Lakelands
Souhaitez-vous visiter cette propriété?
Demander une visite

Inscriptions semblables

REID MARCHAND