Nous utilisons des témoins et d’autres technologies pour assurer le fonctionnement et la sécurité de nos services en ligne, et pour vous offrir une expérience personnalisée. En continuant à utiliser nos services en ligne, vous acceptez notre Politique de confidentialité et les conditions d’utilisation. Pour obtenir des informations sur la façon de régler vos paramètres de confidentialité, veuillez consulter notre Politique sur les témoins.
Masquer
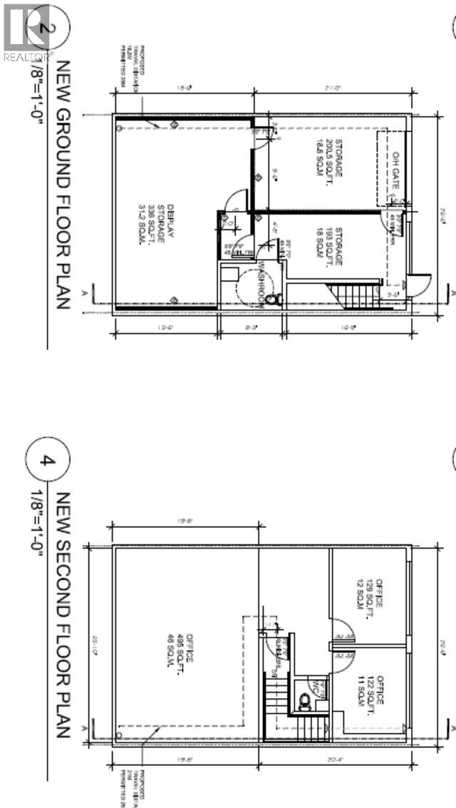
Accueil BC Grand Vancouver Greater Vancouver Vancouver Sunset South Marine
166 628 E KENT SOUTH AVENUE
Directions Imprimer
Plus de photos + 1
166 628 E KENT SOUTH AVENUE 17 $/Annuel/pieds carrés
17 $/Annuel/pieds carrés
Masquer
Favoris

166 628 E KENT SOUTH AVENUE
Vancouver, Colombie-Britannique V5X0B2

Numéro MLS® : C8073897

Résumé de la propriété

Type de propriété
Industriel
Date de construction
2012
Sur REALTOR.ca depuis
31 jours

Édifice

Entreprise
Coûts d’exploitation
Bail CAD, Annuel)
Données fournies par : Greater Vancouver REALTORS®
Souhaitez-vous visiter cette propriété?
Demander une visite

Eric Xiao