Nous utilisons des témoins et d’autres technologies pour assurer le fonctionnement et la sécurité de nos services en ligne, et pour vous offrir une expérience personnalisée. En continuant à utiliser nos services en ligne, vous acceptez notre Politique de confidentialité et les conditions d’utilisation. Pour obtenir des informations sur la façon de régler vos paramètres de confidentialité, veuillez consulter notre Politique sur les témoins.
Masquer
Accueil ON Grand Toronto Région de Peel Mississauga South Common
2155 BURNHAMTHORPE Road W Unit# 1604
Directions Imprimer
2155 BURNHAMTHORPE Road W Unit# 1604 619 000 $
619 000 $
Masquer
Favoris

2155 BURNHAMTHORPE Road W Unit# 1604
Mississauga, Ontario L5L5P4

Numéro MLS® : 40788460
2
Chambres
2
Salles de bain
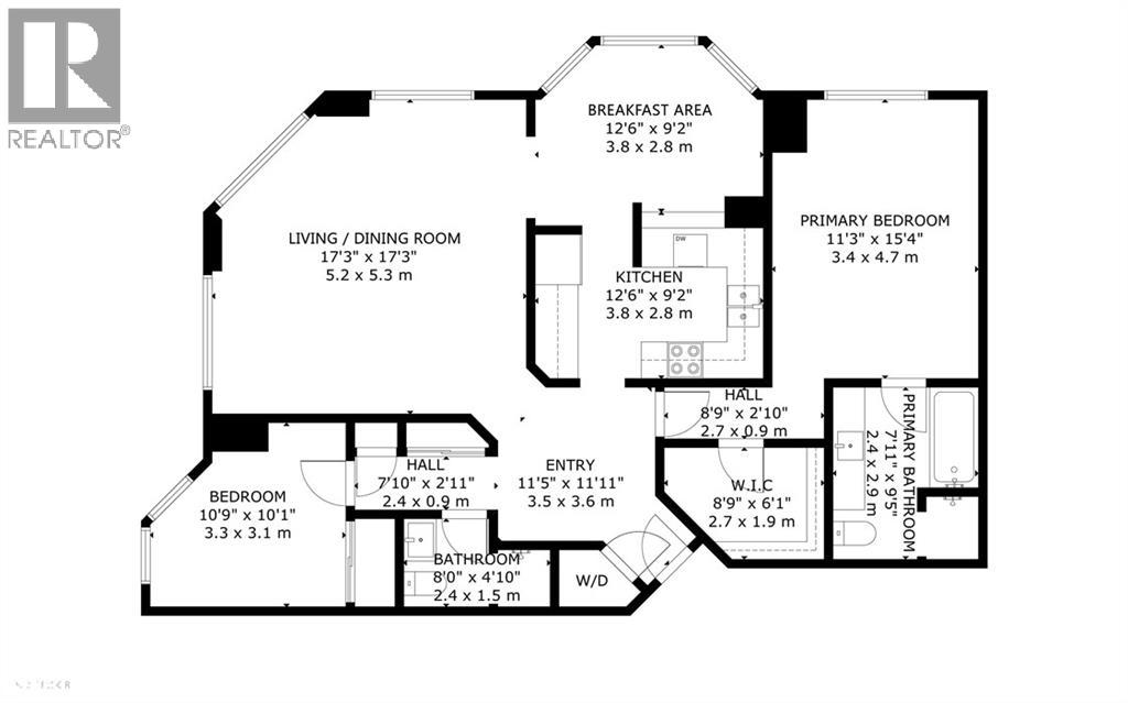
1210
Pieds carrés

Résumé de la propriété

Type de propriété
Unifamiliale
Type de bâtiment
Appartement
Étages
1
Superficie
1210 pi2
Titre
Copropriété divise
Superficie du terrain
Inconnu
Impôt foncier annuel
3 536 $
Type de stationnement
Stationnement souterrain, Pas de stationnement
Sur REALTOR.ca depuis
23 jours

Édifice

Chambres
Au-dessus du niveau du sol
2
Salles de bain
Total
2
Caractéristiques intérieures
Type de sous-sol
Pas de sous-sol
Caractéristiques du bâtiment
Caractéristiques
Orienté vers le sud
Style
En rangée
Commodités qu'offre le bâtiment
Salle d'exercises, Salle de réception
Entreposage
Armoire vestiaire
Chauffage et refroidissement
Système de refroidissement
Climatisation centrale
Type de chauffage
Air pulsé, (Gaz naturel)
Services publics
Égouts
Égout municipal
Eau
Approvisionnement en eau par la municipalité
Caractéristiques extérieures
Revêtement extérieur
Béton
Caractéristiques du quartier
Commodités à proximité
Un hôpital, Transport en commun, Écoles, Centres commerciaux
Infos entretien ou copropriété
Frais d'entretien
1 202,76 $ mois
Stationnement
Type de stationnement
Stationnement souterrain, Pas de stationnement
Nombre total d'espaces de stationnement
2

Mesures

Superficie
1210 pi2
Superficie finie au-dessus du niveau du sol
1210 pi2
Source : Autre

Pièces

MétriqueImpérial
Niveau principal
Salle de bain - 3 éléments
Salle de bain - 4 éléments
Chambre à coucher
Chambre principale
Cuisine
Salle à manger
Salon
Souhaitez-vous visiter cette propriété?
Demander une visite

Inscriptions semblables

Sean Hanlon