Nous utilisons des témoins et d’autres technologies pour assurer le fonctionnement et la sécurité de nos services en ligne, et pour vous offrir une expérience personnalisée. En continuant à utiliser nos services en ligne, vous acceptez notre Politique de confidentialité et les conditions d’utilisation. Pour obtenir des informations sur la façon de régler vos paramètres de confidentialité, veuillez consulter notre Politique sur les témoins.
Masquer
Accueil QC Grand Montréal Montréal Lachine Promenade du Rail
300 Av. George-V #103
Directions Imprimer
300 Av. George-V #103 456 621 $ + TPS + TVQ
456 621 $ + TPS + TVQ
Masquer
Favoris

300 Av. George-V
#103
Montréal (Lachine), Québec H8S2R6

Numéro MLS® : 23735819
2
Chambres
2
Salles de bain
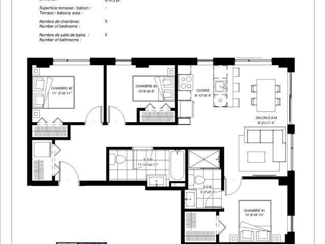
976
Pieds carrés

Description de l’inscription

Bienvenue au 300 George-V du projet Gare du Canal 2 construit en 2022. Ce superbe condo unité de coin comprend la chambre principale avec salle de bain attenante et walk-in ainsi que 1 chambre supplémentaire, 1 bureau et 1 salle de bain complète. Cuisine moderne avec comptoir de quartz et plafonds de 9 pieds de haut avec lumière naturelle abondante ! TPS/TVQ doivent être ajoutées au prix demandé (52848443)

Résumé de la propriété

Type de propriété
Unifamiliale
Type de bâtiment
Appartement
Étages
5
Superficie
976 pi2
Quartier
Est
Titre
Copropriété divise
Date de construction
2022
Type de stationnement
Garage, Garage intégré
Sur REALTOR.ca depuis
102 jours

Édifice

Salles de bain
Total
2
Partielle
0
Caractéristiques du bâtiment
Style
Isolée
Chauffage et refroidissement
Système de refroidissement
Climatisation centrale, Échangeur d'air
Type de chauffage
(Électrique)
Services publics
Égouts
Égout municipal
Eau
Approvisionnement en eau par la municipalité
Caractéristiques du quartier
Commodités à proximité
Autoroute, Écoles, Transport en commun
Infos entretien ou copropriété
Frais d'entretien
582 $ mois
Stationnement
Type de stationnement
Garage, Garage intégré
Nombre total d'espaces de stationnement
2

Mesures

Superficie
976 pi2

Pièces

MétriqueImpérial
Niveau principal
Chambre principale
Chambre à coucher
Bureau
Salle de bain
Salle de bain
Salon
Cuisine
Salle à manger
Autre

Terrain

Autres informations sur la propriété
Type de Zonage
Résidentiel
Caractéristiques de la ferme
Type de ferme
Autre
Souhaitez-vous visiter cette propriété?
Demander une visite

Inscriptions semblables

Margaret Morello