Nous utilisons des témoins et d’autres technologies pour assurer le fonctionnement et la sécurité de nos services en ligne, et pour vous offrir une expérience personnalisée. En continuant à utiliser nos services en ligne, vous acceptez notre Politique de confidentialité et les conditions d’utilisation. Pour obtenir des informations sur la façon de régler vos paramètres de confidentialité, veuillez consulter notre Politique sur les témoins.
Masquer
Accueil ON Grand Toronto Région de Peel Brampton Parkway Belt Industrial Area
5 - 351 PARKHURST SQUARE
Directions Imprimer
5 - 351 PARKHURST SQUARE 32 $/pieds carrés
Modification du prix le 2025/12/03
32 $/pieds carrés
-8 $/pieds carrés
40 $/pieds carrés
Masquer
Favoris

5 - 351 PARKHURST SQUARE
Brampton (Parkway Belt Industrial Area), Ontario L6T0C2

Numéro MLS® : W12549712
1
Salles de bain
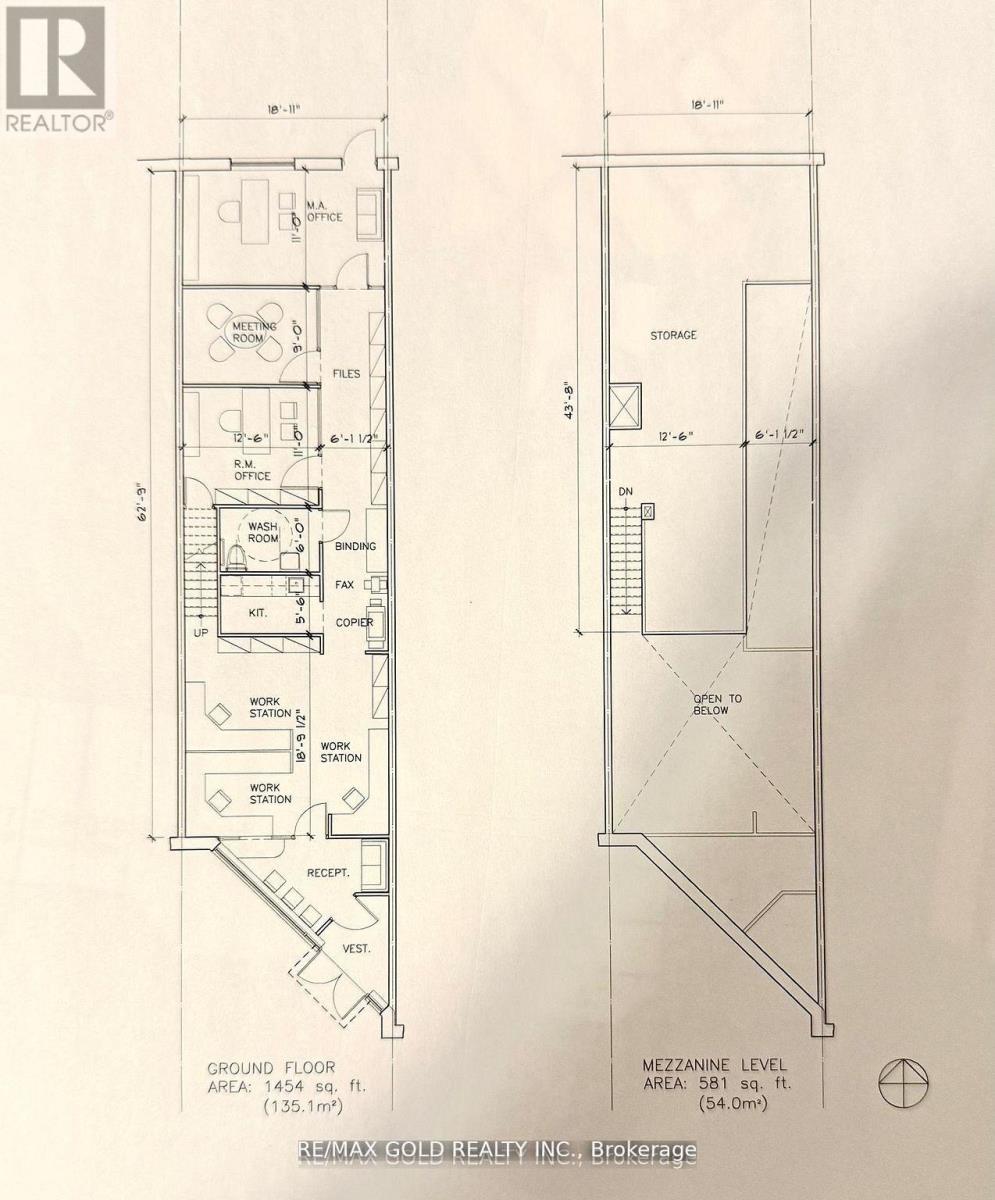
1454
Pieds carrés

Résumé de la propriété

Type de propriété
Détail
Type de bâtiment
Détail
Superficie
1454 pi2
Impôt foncier annuel
10 $
Sur REALTOR.ca depuis
34 jours

Édifice

Salles de bain
Total
1
Chauffage et refroidissement
Système de refroidissement
Entièrement climatisé
Type de chauffage
Air pulsé (Gaz naturel)
Services publics
Eau
Approvisionnement en eau par la municipalité

Mesures

Superficie
1454 pi2

Terrain

Autres informations sur la propriété
Type de bail
Net
Données fournies par : Toronto Regional Real Estate Board
Souhaitez-vous visiter cette propriété?
Demander une visite

JAZ BAINS