Nous utilisons des témoins et d’autres technologies pour assurer le fonctionnement et la sécurité de nos services en ligne, et pour vous offrir une expérience personnalisée. En continuant à utiliser nos services en ligne, vous acceptez notre Politique de confidentialité et les conditions d’utilisation. Pour obtenir des informations sur la façon de régler vos paramètres de confidentialité, veuillez consulter notre Politique sur les témoins.
Masquer
Accueil ON Grand Toronto Toronto Vieux Toronto Bedford Park Lawrence Park North
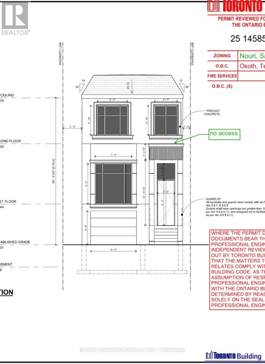
372 ST GERMAIN AVENUE
Directions Imprimer
372 ST GERMAIN AVENUE 1 988 888 $
1 988 888 $
Masquer
Favoris

372 ST GERMAIN AVENUE
Toronto (Lawrence Park North), Ontario M5M1W5

Numéro MLS® : C12544342
3
Chambres
2
Salles de bain
1100 - 1500
Pieds carrés

Résumé de la propriété

Type de propriété
Unifamiliale
Type de bâtiment
Unifamilial
Étages
2
Superficie
1100 - 1500 pi2
Titre
Tenure franche
Superficie du terrain
25 x 150 FT
Impôt foncier annuel
8 974 $
Type de stationnement
Garage détaché, Garage
Sur REALTOR.ca depuis
29 jours

Édifice

Chambres
Au-dessus du niveau du sol
3
Salles de bain
Total
2
Caractéristiques intérieures
Appareils électroménagers inclus
Couvre-fenêtre
Couvre-plancher
plancher de bois franc
Type de sous-sol
Partiellement aménagé
Caractéristiques du bâtiment
Type de fondation
Brique
Style
Isolée
Commodités qu'offre le bâtiment
Foyer(s)
Chauffage et refroidissement
Système de refroidissement
Unité murale
Type de chauffage
Chauffage par rayonnement (Gaz naturel)
Services publics
Égouts
Égout sanitaire
Eau
Approvisionnement en eau par la municipalité
Caractéristiques extérieures
Revêtement extérieur
Brique
Caractéristiques du quartier
Commodités à proximité
Parc, Lieu de culte, Transport en commun
Stationnement
Type de stationnement
Garage détaché, Garage
Nombre total d'espaces de stationnement
1

Mesures

Superficie
1100 - 1500 pi2

Pièces

MétriqueImpérial
Niveau principal
Salon
Salle à manger
Cuisine
Deuxième niveau
Chambre principale
Chambre à coucher
Deuxième chambre

Terrain

Caractéristiques du terrain
Façade
25 pi
Superficie du terrain
150 pi
Données fournies par : Toronto Regional Real Estate Board
Souhaitez-vous visiter cette propriété?
Demander une visite

Inscriptions semblables

EMAD KHEIRKHAHAN