Nous utilisons des témoins et d’autres technologies pour assurer le fonctionnement et la sécurité de nos services en ligne, et pour vous offrir une expérience personnalisée. En continuant à utiliser nos services en ligne, vous acceptez notre Politique de confidentialité et les conditions d’utilisation. Pour obtenir des informations sur la façon de régler vos paramètres de confidentialité, veuillez consulter notre Politique sur les témoins.
Masquer
Accueil ON St. Catharines - Niagara Région de Niagara St. Catharines Queenston
1109 - 7 GALE CRESCENT
Directions Imprimer
1109 - 7 GALE CRESCENT 395 000 $
395 000 $
Masquer
Favoris

1109 - 7 GALE CRESCENT
St. Catharines (E. Chester), Ontario L2R7M8

Numéro MLS® : X12544178
2
Chambres
2
Salles de bain
1400 - 1599
Pieds carrés

Résumé de la propriété

Type de propriété
Unifamiliale
Type de bâtiment
Appartement
Superficie
1400 - 1599 pi2
Titre
Copropriété divise
Âge de l'édifice
31 à 50 ans
Impôt foncier annuel
2 985 $
Type de stationnement
Stationnement souterrain, Garage
Sur REALTOR.ca depuis
31 jours

Édifice

Chambres
Au-dessus du niveau du sol
2
Salles de bain
Total
2
Caractéristiques intérieures
Appareils électroménagers inclus
Télécommande(s) d'ouvre-porte de garage, Lave-vaisselle, Sécheuse, Micro-ondes, Cuisinière, Machine à laver, Couvre-fenêtre, Réfrigérateur
Type de sous-sol
Pas de sous-sol
Caractéristiques du bâtiment
Caractéristiques
Éclairage, Accès par fauteuil roulant, Buanderie
Protection contre les incendies
Système de sécurité, Détecteurs de fumée
Commodités qu'offre le bâtiment
Lave-auto, Salle d'exercises, Salle de réception, Sauna, Stationnement pour les visiteurs, Armoire vestiaire
Structures
Terrasse
Chauffage et refroidissement
Système de refroidissement
Climatisation centrale
Type de chauffage
Air pulsé (Autre)
Caractéristiques extérieures
Revêtement extérieur
Stuc, Béton
Piscine
Piscine intérieure
Caractéristiques du quartier
Caractéristiques de la communauté
Animaux permis avec restrictions
Commodités à proximité
Terrain de golf à proximité, Transport en commun
Infos entretien ou copropriété
Frais d'entretien
1 386 $ mois
Les frais d'entretien comprennent
Chauffage, Électricité, Eau, Câblodistribution, Entretien de la zone commune, Assurance, Parking
Société de gestion de l'entretien
Cannon Greco
Stationnement
Type de stationnement
Stationnement souterrain, Garage
Nombre total d'espaces de stationnement
3

Mesures

Superficie
1400 - 1599 pi2

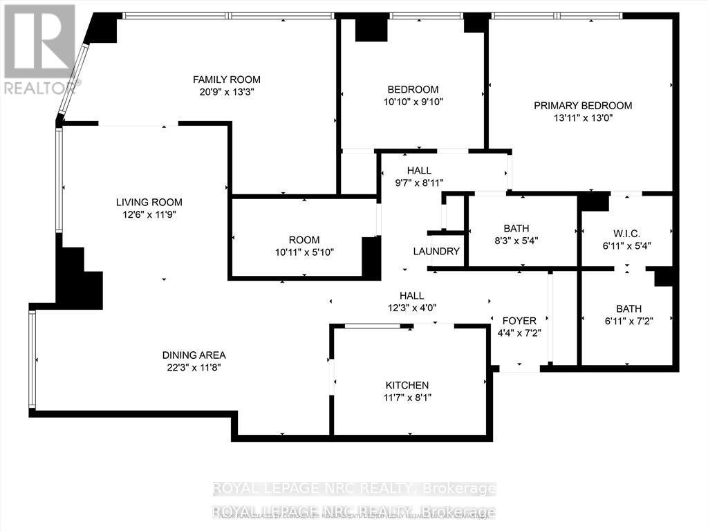
Pièces

MétriqueImpérial
Niveau principal
Cuisine
Salon
Salle à manger
Chambre à coucher
Deuxième chambre
Salle familiale
Autre
Vestibule

Terrain

Caractéristiques du terrain
Vue
Vue sur la ville
Données fournies par : Niagara Association of REALTORS®
Souhaitez-vous visiter cette propriété?
Demander une visite

Inscriptions semblables

Eva Miller