Nous utilisons des témoins et d’autres technologies pour assurer le fonctionnement et la sécurité de nos services en ligne, et pour vous offrir une expérience personnalisée. En continuant à utiliser nos services en ligne, vous acceptez notre Politique de confidentialité et les conditions d’utilisation. Pour obtenir des informations sur la façon de régler vos paramètres de confidentialité, veuillez consulter notre Politique sur les témoins.
Masquer
Accueil ON Grand London Comté de Middlesex London Huron Heights
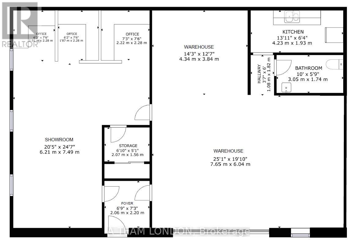
UNIT 4 - 147 STRONACH CRESCENT
Directions Imprimer
UNIT 4 - 147 STRONACH CRESCENT 10 $/pieds carrés
10 $/pieds carrés
Masquer
Favoris

UNIT 4 - 147 STRONACH CRESCENT
London East (East D), Ontario N5V3G5

Numéro MLS® : X12542306

Résumé de la propriété

Type de propriété
Industriel
Type de bâtiment
Logement industriel à locataires multiples
Superficie du terrain
150 a
Impôt foncier annuel
3,89 $
Sur REALTOR.ca depuis
36 jours

Édifice

Chauffage et refroidissement
Système de refroidissement
Partiellement climatisé
Type de chauffage
Air pulsé (Gaz naturel)
Services publics
Eau
Approvisionnement en eau par la municipalité
Caractéristiques du quartier
Commodités à proximité
Autoroute

Mesures

Superficie
1633 pi2

Terrain

Autres informations sur la propriété
Type de bail
Net
Souhaitez-vous visiter cette propriété?
Demander une visite

NICK JAREMKO