Nous utilisons des témoins et d’autres technologies pour assurer le fonctionnement et la sécurité de nos services en ligne, et pour vous offrir une expérience personnalisée. En continuant à utiliser nos services en ligne, vous acceptez notre Politique de confidentialité et les conditions d’utilisation. Pour obtenir des informations sur la façon de régler vos paramètres de confidentialité, veuillez consulter notre Politique sur les témoins.
Masquer
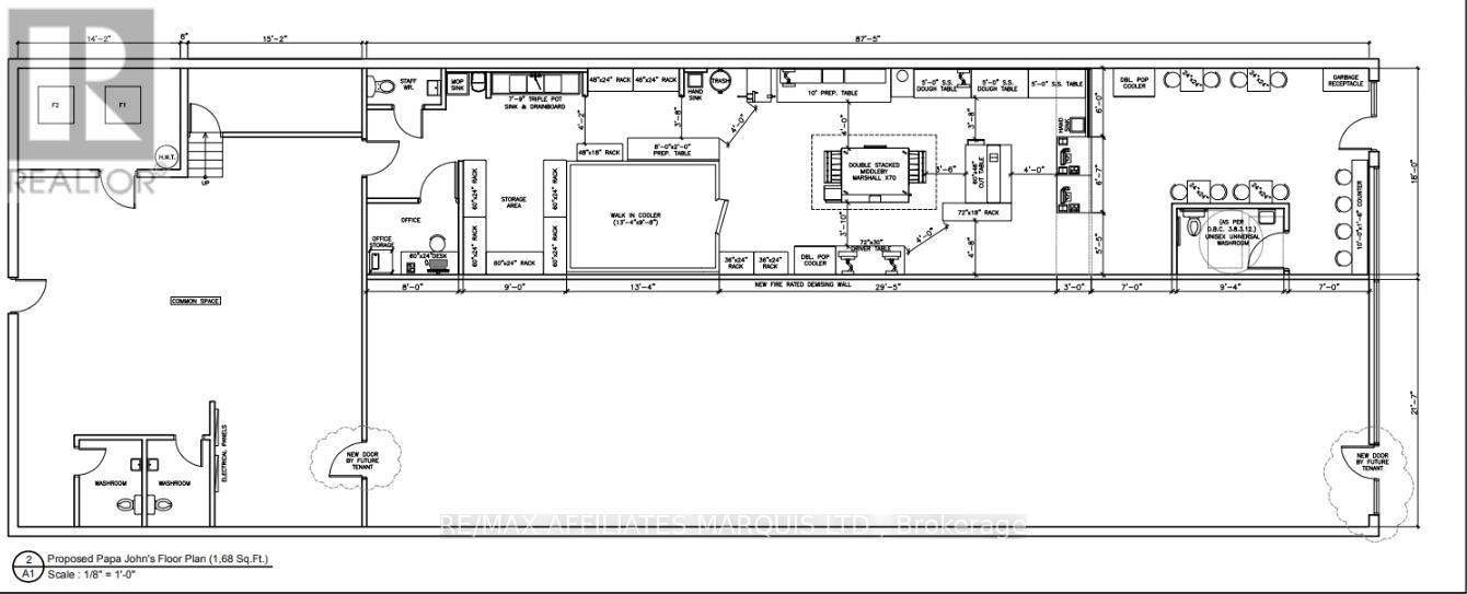
Accueil ON Comté de Lanark Smiths Falls
28 BECKWITH STREET N
Directions Imprimer
Plus de photos + 2
28 BECKWITH STREET N 475 000 $
475 000 $
Masquer
Favoris

28 BECKWITH STREET N
Smiths Falls, Ontario K7A2B3

Numéro MLS® : X12538728

Résumé de la propriété

Type de propriété
Détail
Superficie du terrain
Bldg=42 x 122 FT
Impôt foncier annuel
5 400 $
Sur REALTOR.ca depuis
33 jours

Édifice

Chauffage et refroidissement
Système de refroidissement
Entièrement climatisé
Type de chauffage
Air pulsé (Gaz naturel)
Services publics
Eau
Approvisionnement en eau par la municipalité

Mesures

Superficie
4960 pi2
Dimension du bâtiment - extérieur
4960 pi2

Terrain

Caractéristiques du terrain
Façade
42 pi
Superficie du terrain
122 pi
Données fournies par : Cornwall & District Real Estate Board
Souhaitez-vous visiter cette propriété?
Demander une visite

KATIE BELLSMITH