Nous utilisons des témoins et d’autres technologies pour assurer le fonctionnement et la sécurité de nos services en ligne, et pour vous offrir une expérience personnalisée. En continuant à utiliser nos services en ligne, vous acceptez notre Politique de confidentialité et les conditions d’utilisation. Pour obtenir des informations sur la façon de régler vos paramètres de confidentialité, veuillez consulter notre Politique sur les témoins.
Masquer
Accueil ON Ottawa - Gatineau Comtés unis de Prescott et Russell Clarence-Rockland
1887 CANAAN ROAD
Directions Imprimer
1887 CANAAN ROAD 730 000 $
Prochaine visite libre
18
janv.
730 000 $
Masquer
Favoris

1887 CANAAN ROAD
Clarence-Rockland, Ontario K4K1K9

Numéro MLS® : X12536592
3
Chambres
3
Salles de bain
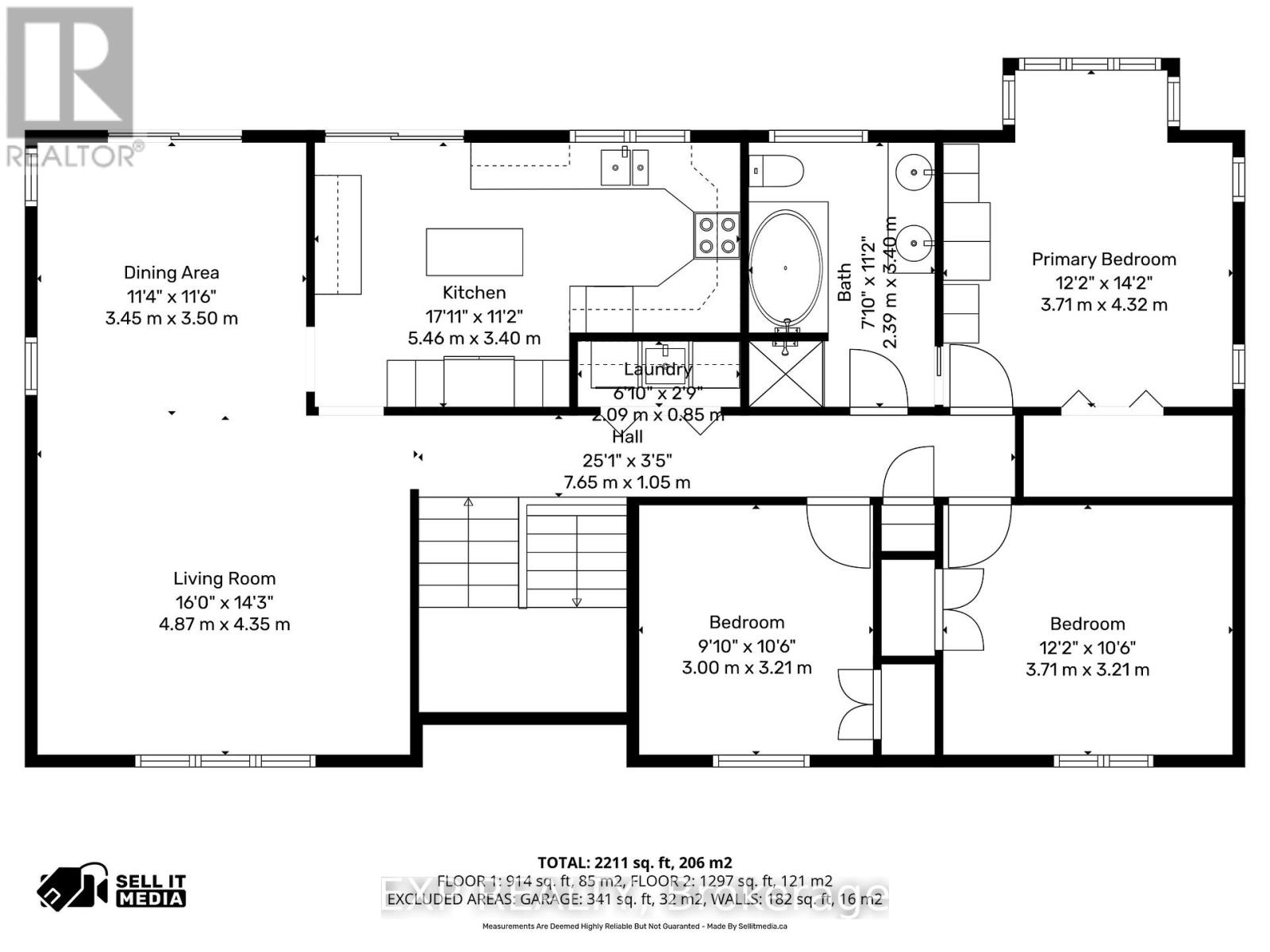
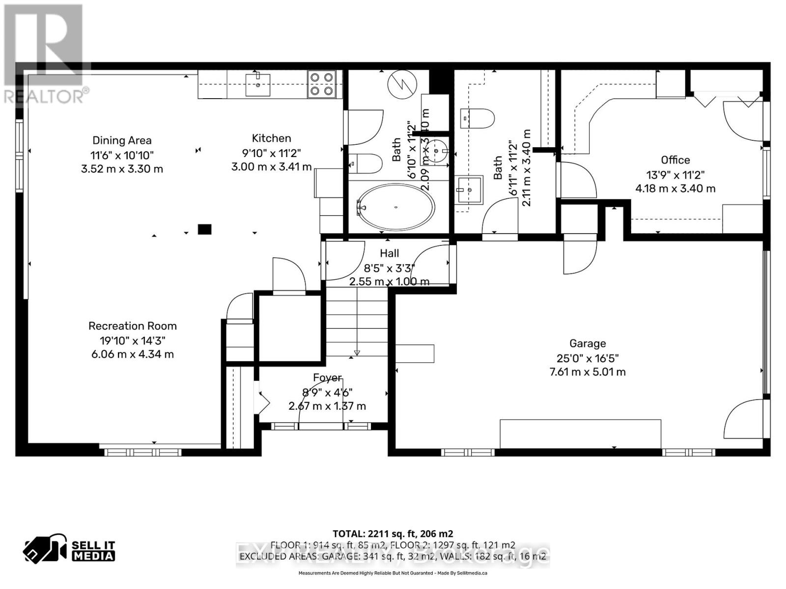
1100 - 1500
Pieds carrés

Visites libres

18 janv.
14 h - 16 h
Ajouter au calendrier

Résumé de la propriété

Type de propriété
Unifamiliale
Type de bâtiment
Unifamilial
Étages
1
Superficie
1100 - 1500 pi2
Titre
Tenure franche
Superficie du terrain
153 x 150 Acre
Impôt foncier annuel
3 904 $
Type de stationnement
Garage, Entrée intérieure
Sur REALTOR.ca depuis
66 jours

Édifice

Chambres
Au-dessus du niveau du sol
3
Salles de bain
Total
3
Partielle
1
Caractéristiques intérieures
Appareils électroménagers inclus
Lave-vaisselle, Sécheuse, Cuisinière, Machine à laver, Réfrigérateur
Type de sous-sol
Sous-sol complet (Aménagé)
Caractéristiques du bâtiment
Type de fondation
Fondation en béton
Style
Isolée
Style d'architecture
Bungalow
Chauffage et refroidissement
Système de refroidissement
Unité murale
Type de chauffage
Plinthes chauffantes (Électrique)
Services publics
Égouts
Fosse septique
Eau
Puits foré à la sondeuse
Caractéristiques extérieures
Revêtement extérieur
Brique
Piscine
Piscine hors-terre
Stationnement
Type de stationnement
Garage, Entrée intérieure
Nombre total d'espaces de stationnement
5

Mesures

Superficie
1100 - 1500 pi2

Pièces

MétriqueImpérial
Niveau principal
Salon
Salle à manger
Cuisine
Buanderie
Chambre principale
Deuxième chambre
Troisième chambre
Sous-sol
Cuisine
Bureau
Salle de jeux, récréative
Salle à manger
Demi-niveau
Vestibule
Données fournies par : Ottawa Real Estate Board
Souhaitez-vous visiter cette propriété?
Demander une visite

Inscriptions semblables

Allister Beauchamp