Nous utilisons des témoins et d’autres technologies pour assurer le fonctionnement et la sécurité de nos services en ligne, et pour vous offrir une expérience personnalisée. En continuant à utiliser nos services en ligne, vous acceptez notre Politique de confidentialité et les conditions d’utilisation. Pour obtenir des informations sur la façon de régler vos paramètres de confidentialité, veuillez consulter notre Politique sur les témoins.
Masquer
Accueil NB Grand Moncton Comté d'Albert Coverdale
82 Maefield Street
Directions Imprimer
82 Maefield Street 679 900 $
Prochaine visite libre
18
janv.
679 900 $
Masquer
Favoris

82 Maefield Street
Lower Coverdale, Nouveau-Brunswick E1J0E7

Numéro MLS® : NB129991
3
Chambres
2
Salles de bain
1679
Pieds carrés

Visites libres

18 janv.
14 h - 16 h
Ajouter au calendrier

Résumé de la propriété

Type de propriété
Unifamiliale
Étages
1
Superficie
1679 pi2
Titre
Tenure franche
Superficie du terrain
7261 m2
Date de construction
2025
Impôt foncier annuel
2 790,45 $
Type de stationnement
Garage attenant
Sur REALTOR.ca depuis
66 jours

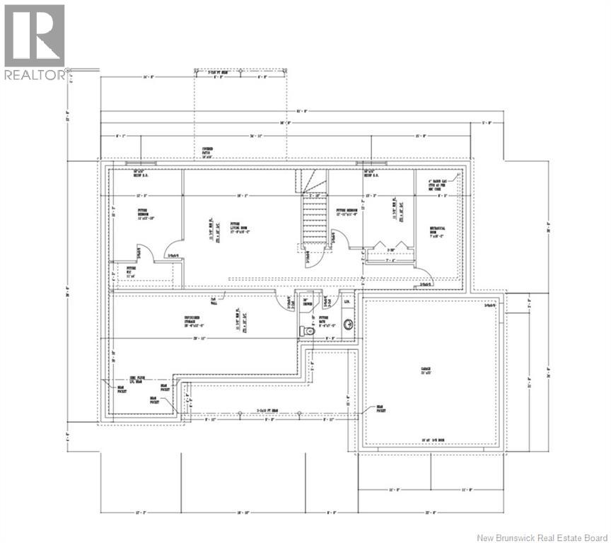
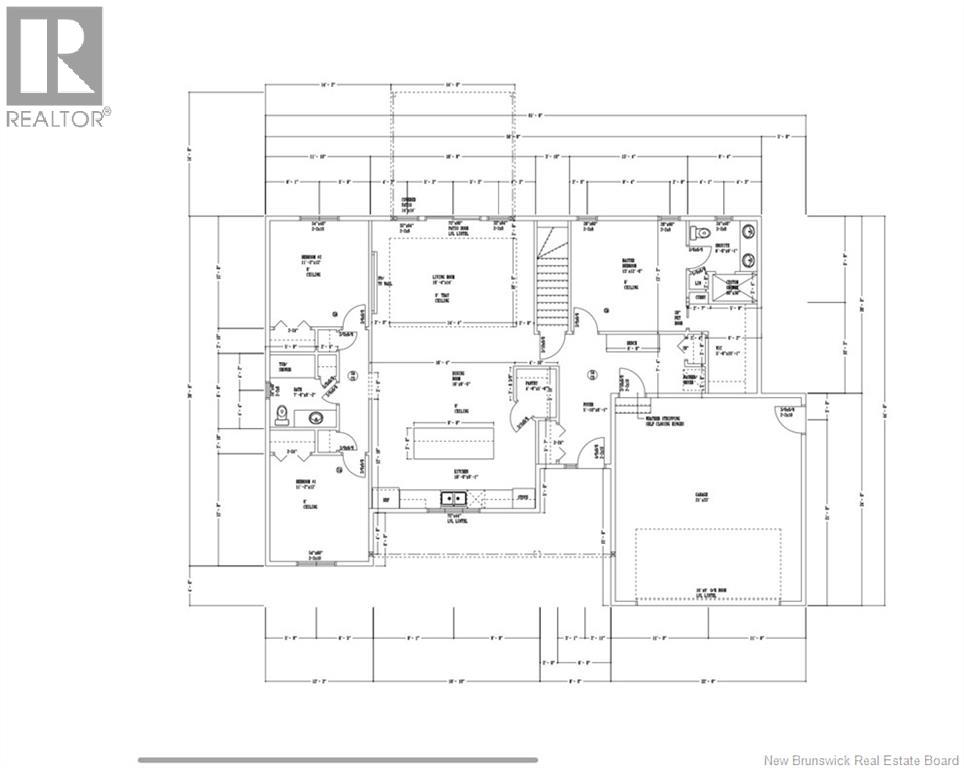
Édifice

Chambres
Au-dessus du niveau du sol
3
Salles de bain
Total
2
Partielle
0
Caractéristiques intérieures
Couvre-plancher
Céramique, plancher en stratifié, plancher de bois franc
Type de sous-sol
Sous-sol complet (Non aménagé)
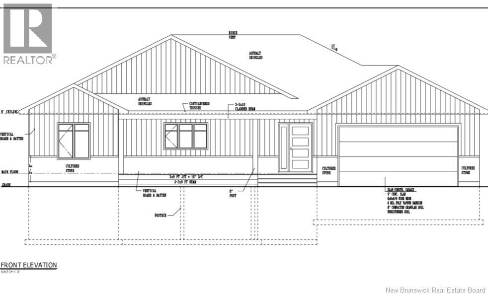
Caractéristiques du bâtiment
Caractéristiques
Boisé
Type de fondation
Fondation en béton
Style d'architecture
Bungalow
Chauffage et refroidissement
Système de refroidissement
Thermopompe
Type de chauffage
Plinthes chauffantes, Thermopompe, (Électrique)
Services publics
Égouts
Fosse septique
Eau
Puits foré à la sondeuse, Puits
Caractéristiques extérieures
Revêtement extérieur
Pierre, Vinyle
Stationnement
Type de stationnement
Garage attenant

Mesures

Superficie
1679 pi2
Superficie finie au-dessus du niveau du sol
1679 pi2
Superficie totale aménagée
1679 pi2

Pièces

MétriqueImpérial
Niveau principal
Autre
Chambre principale
Salon
Chambre à coucher
Salle de bain - 4 éléments
Chambre à coucher
Vestibule
Garde-manger
Salle à manger
Cuisine

Terrain

Autres informations sur la propriété
Accès
Accès toute l'année, Voie publique
Données fournies par : REALTORS® du Nouveau Brunswick
Souhaitez-vous visiter cette propriété?
Demander une visite

Inscriptions semblables

Jason Richard