Nous utilisons des témoins et d’autres technologies pour assurer le fonctionnement et la sécurité de nos services en ligne, et pour vous offrir une expérience personnalisée. En continuant à utiliser nos services en ligne, vous acceptez notre Politique de confidentialité et les conditions d’utilisation. Pour obtenir des informations sur la façon de régler vos paramètres de confidentialité, veuillez consulter notre Politique sur les témoins.
Masquer
Accueil ON Ottawa - Gatineau Ottawa Vieil Ottawa-Est
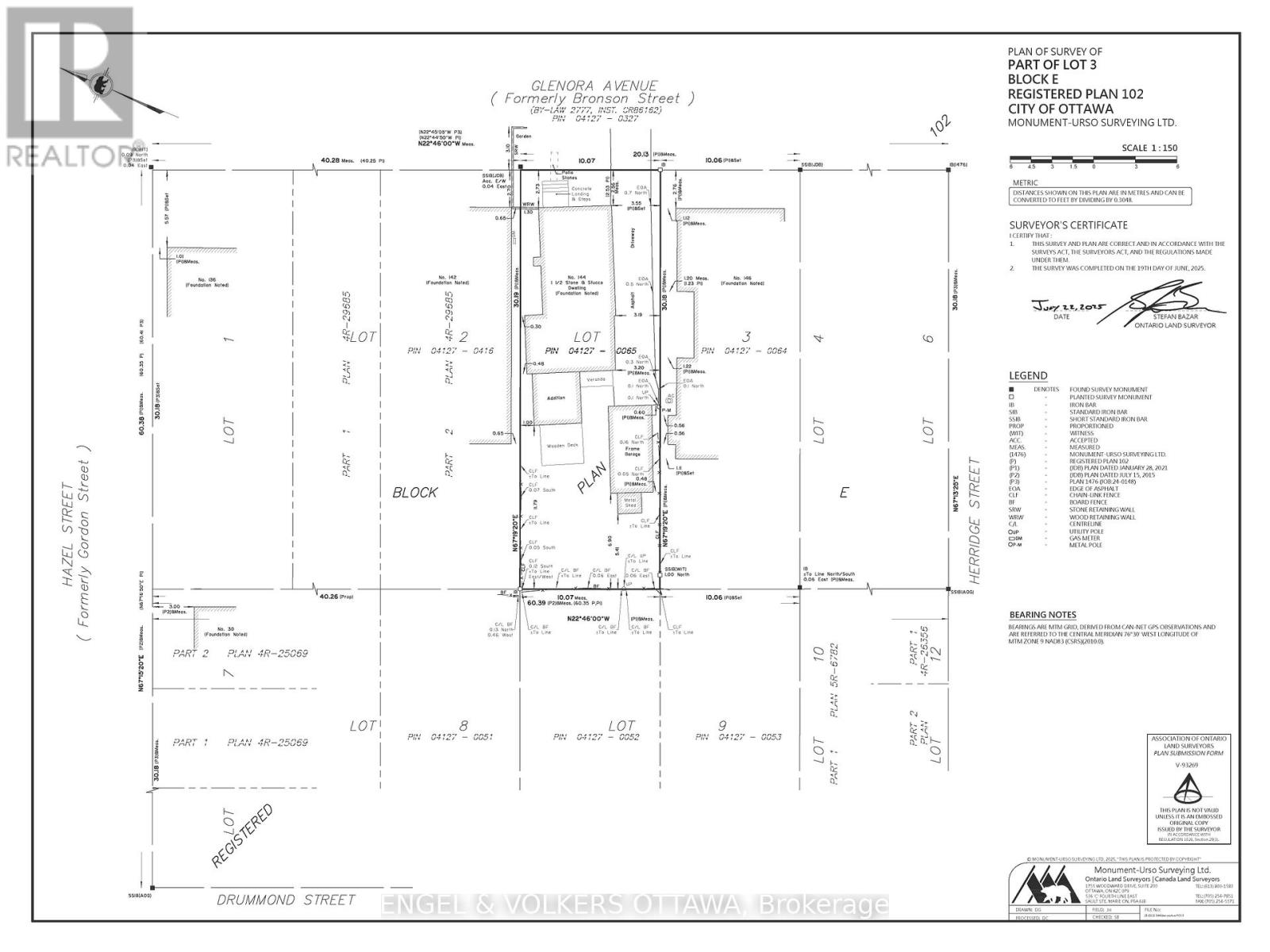
144 GLENORA STREET
Directions Imprimer
144 GLENORA STREET 769 000 $
769 000 $
Masquer
Favoris

144 GLENORA STREET
Ottawa, Ontario K1S1J5

Numéro MLS® : X12526310
2
Chambres
1
Salles de bain
1100 - 1500
Pieds carrés

Résumé de la propriété

Type de propriété
Unifamiliale
Type de bâtiment
Unifamilial
Étages
1.5
Superficie
1100 - 1500 pi2
Titre
Tenure franche
Superficie du terrain
33 x 99 FT
Impôt foncier annuel
5 593 $
Type de stationnement
Aucun garage
Sur REALTOR.ca depuis
69 jours

Édifice

Chambres
Au-dessus du niveau du sol
2
Salles de bain
Total
1
Caractéristiques intérieures
Type de sous-sol
Vide sanitaire
Caractéristiques du bâtiment
Type de fondation
Blocs de béton
Style
Isolée
Chauffage et refroidissement
Système de refroidissement
Aucun
Type de chauffage
Autre
Services publics
Services publics disponibles
Service du câble (Disponible), Électricité (Disponible), Service d'égout (Installé)
Égouts
Égout sanitaire
Caractéristiques extérieures
Revêtement extérieur
Stuc
Stationnement
Type de stationnement
Aucun garage
Nombre total d'espaces de stationnement
2

Mesures

Superficie
1100 - 1500 pi2

Terrain

Caractéristiques du terrain
Façade
33 pi
Superficie du terrain
99 pi
Données fournies par : Ottawa Real Estate Board
Souhaitez-vous visiter cette propriété?
Demander une visite

Inscriptions semblables

Stephanie Cartwright