Nous utilisons des témoins et d’autres technologies pour assurer le fonctionnement et la sécurité de nos services en ligne, et pour vous offrir une expérience personnalisée. En continuant à utiliser nos services en ligne, vous acceptez notre Politique de confidentialité et les conditions d’utilisation. Pour obtenir des informations sur la façon de régler vos paramètres de confidentialité, veuillez consulter notre Politique sur les témoins.
Masquer
Accueil BC Columbia-Shuswap Columbia-Shuswap D
3063 Hornsberger Road Unit# 6
Directions Imprimer
3063 Hornsberger Road Unit# 6 239 900 $
239 900 $
Masquer
Favoris

3063 Hornsberger Road Unit# 6
Salmon Arm, Colombie-Britannique V1E4M1

Numéro MLS® : 10367495
2
Chambres
1
Salles de bain
679
Pieds carrés

Résumé de la propriété

Type de propriété
Unifamiliale
Type de bâtiment
Maison préfabriquée
Étages
1
Superficie
679 pi2
Superficie du terrain
moins de 1 acre
Date de construction
1973
Impôt foncier annuel
759,42 $
Nombre total d'espaces de stationnement
2
Sur REALTOR.ca depuis
37 jours

Prix et historique

Date Statut Prix vendu
25 mai 2023 Vente conclue 236 800 $
6 juil. 2022 Vente conclue 224 900 $
14 déc. 1999 Vente conclue 6 750 $
5 févr. 1997 Vente conclue 22 000 $

Édifice

Salles de bain
Total
1
Partielle
0
Caractéristiques intérieures
Couvre-plancher
plancher en stratifié
Caractéristiques du bâtiment
Caractéristiques
Îlot central
Chauffage et refroidissement
Type de chauffage
Air pulsé, Voir les remarques
Services publics
Égouts
Fosse septique
Eau
Puits
Caractéristiques extérieures
Style de toiture
matériau pour toit métallique
Revêtement extérieur
Bardage en vinyle
Caractéristiques du quartier
Caractéristiques de la communauté
Restrictions (animaux), Animaux permis avec restrictions, Locations non permises
Infos entretien ou copropriété
Frais d'entretien
500 $ mois
Les frais d'entretien comprennent
Location de l'emplacement
Stationnement
Nombre total d'espaces de stationnement
2

Mesures

Superficie
679 pi2

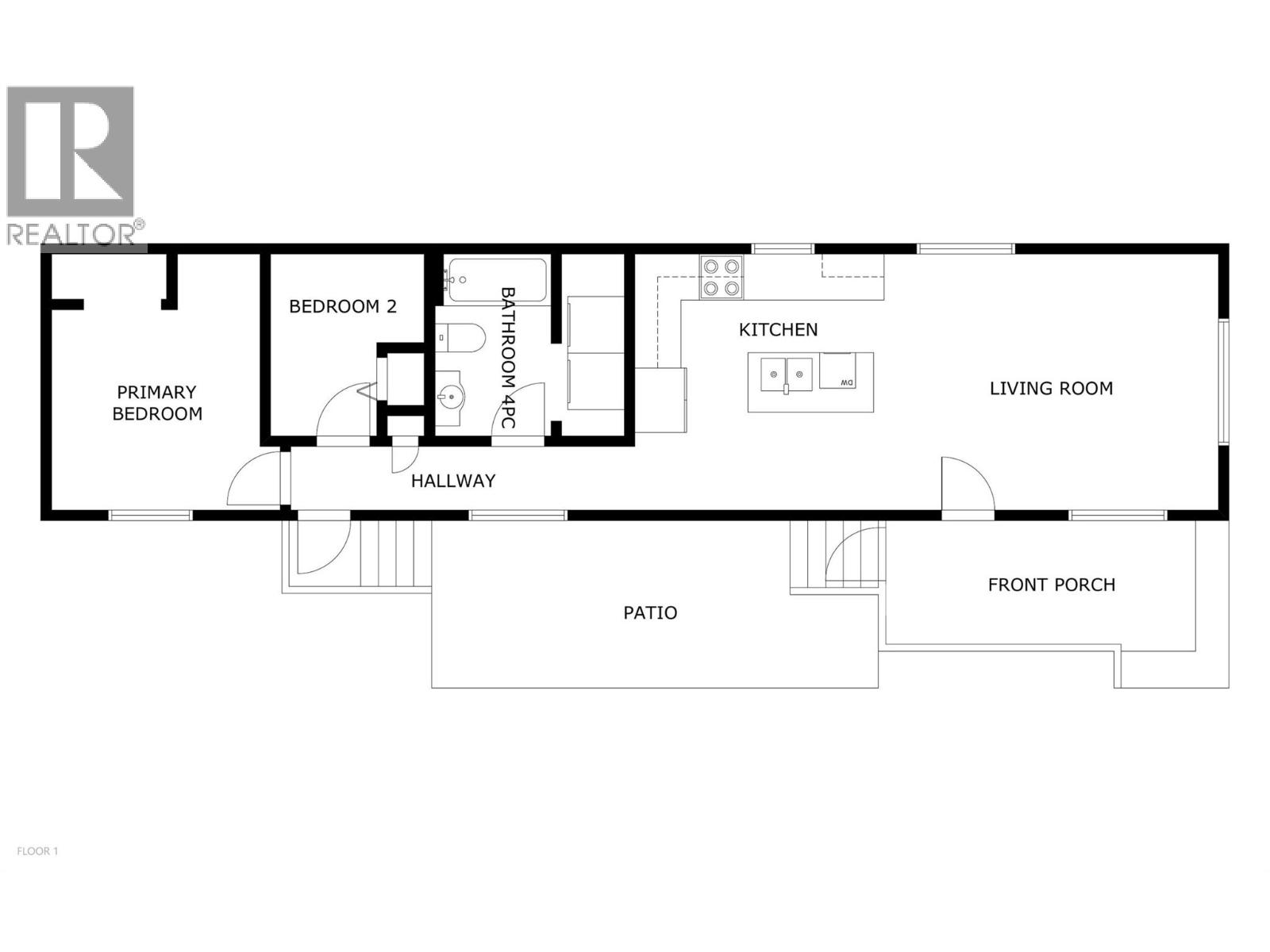
Pièces

MétriqueImpérial
Niveau principal
Salle de bain - 4 éléments
Chambre à coucher
Chambre principale
Salle à manger
Cuisine
Salon

Terrain

Caractéristiques du terrain
Clôture
Clôture
Données fournies par : Association of Interior REALTORS®
Souhaitez-vous visiter cette propriété?
Demander une visite

Inscriptions semblables

Paul Agassiz