Nous utilisons des témoins et d’autres technologies pour assurer le fonctionnement et la sécurité de nos services en ligne, et pour vous offrir une expérience personnalisée. En continuant à utiliser nos services en ligne, vous acceptez notre Politique de confidentialité et les conditions d’utilisation. Pour obtenir des informations sur la façon de régler vos paramètres de confidentialité, veuillez consulter notre Politique sur les témoins.
Masquer
Accueil ON St. Catharines - Niagara Région de Niagara St. Catharines Facer
18 COSBY AVENUE
Directions Imprimer
18 COSBY AVENUE 350 000 $
350 000 $
Masquer
Favoris

18 COSBY AVENUE
St. Catharines (Facer), Ontario L2M5R4

Numéro MLS® : X12523376
2
Chambres
1
Salles de bain
700 - 1100
Pieds carrés

Résumé de la propriété

Type de propriété
Unifamiliale
Type de bâtiment
Unifamilial
Étages
1
Superficie
700 - 1100 pi2
Titre
Tenure franche
Superficie du terrain
40 x 95 FT
Âge de l'édifice
51 à 99 ans
Impôt foncier annuel
2 307,35 $
Type de stationnement
Aucun garage
Sur REALTOR.ca depuis
39 jours

Édifice

Chambres
Au-dessus du niveau du sol
2
Salles de bain
Total
1
Caractéristiques intérieures
Appareils électroménagers inclus
Compteur d'eau
Type de sous-sol
Vide sanitaire
Caractéristiques du bâtiment
Caractéristiques
Terrain plat
Type de fondation
Blocs de béton
Style
Isolée
Style d'architecture
Bungalow
Location de matérial incluse
Chauffe-eau
Structures
Remise
Chauffage et refroidissement
Système de refroidissement
Aucun
Type de chauffage
Air pulsé (Gaz naturel)
Services publics
Services publics disponibles
Service du câble (Disponible), Électricité (Installé), Service d'égout (Installé)
Égouts
Égout sanitaire
Eau
Approvisionnement en eau par la municipalité
Caractéristiques extérieures
Revêtement extérieur
Bardage en vinyle
Stationnement
Type de stationnement
Aucun garage
Nombre total d'espaces de stationnement
2

Mesures

Superficie
700 - 1100 pi2

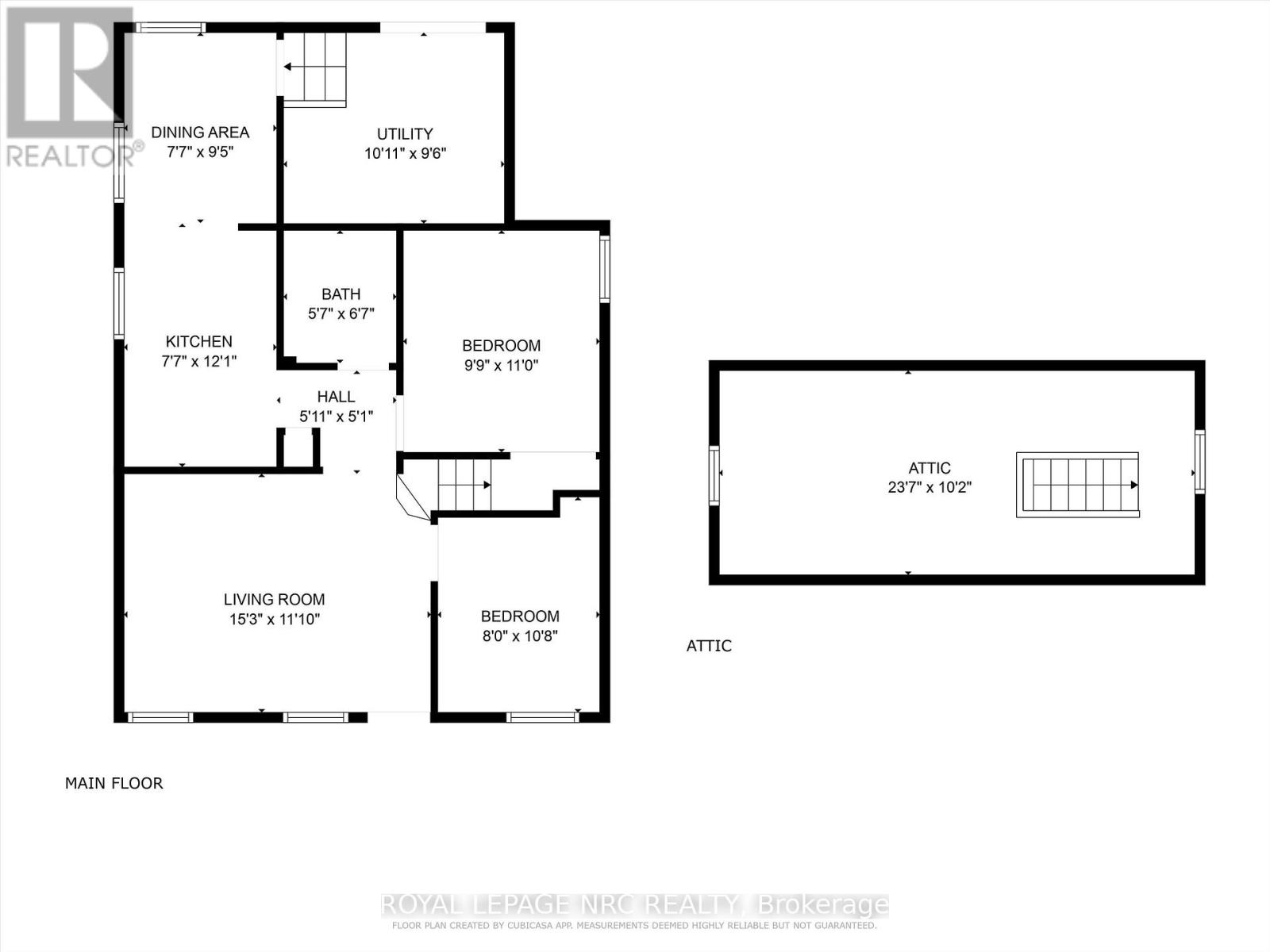
Pièces

MétriqueImpérial
Niveau principal
Salon
Chambre à coucher
Deuxième chambre
Salle de bain
Cuisine
Salle à manger
Niveau supérieur
Grenier
Niveau du sol
Local de services

Terrain

Caractéristiques du terrain
Façade
40 pi
Superficie du terrain
95 pi
Données fournies par : Niagara Association of REALTORS®
Souhaitez-vous visiter cette propriété?
Demander une visite

Inscriptions semblables

Michelle Atherton