Nous utilisons des témoins et d’autres technologies pour assurer le fonctionnement et la sécurité de nos services en ligne, et pour vous offrir une expérience personnalisée. En continuant à utiliser nos services en ligne, vous acceptez notre Politique de confidentialité et les conditions d’utilisation. Pour obtenir des informations sur la façon de régler vos paramètres de confidentialité, veuillez consulter notre Politique sur les témoins.
Masquer
Accueil QC Grande région de Québec Québec Sainte-Foy-Sillery-Cap-Rouge Sillery
1313-1323 Av. Maguire #405
Directions Imprimer
Plus de photos + 2
1313-1323 Av. Maguire #405 3 800 $/mois
3 800 $/mois
Masquer
Favoris

1313-1323 Av. Maguire
#405
Québec (Sainte-Foy/Sillery/Cap-Rouge), Québec G1T1Z2

Numéro MLS® : 20274856
2
Chambres
1
Salles de bain
980
Pieds carrés

Description de l’inscription

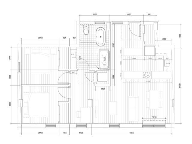
Nouveau projet locatif au 1313-1319-1323 Maguire. 26 unités modernes : studios-lofts, 3 ½, 3 ½+, 4 ½ et 4 ½+. Formule tout inclus : internet Wi-Fi, électricité, chauffage, climatisation, ventilation, eau chaude et électroménager. Espace à vélo au RDC. Terrasse commune sur le toit avec BBQ et zones de détente. Comptoirs quartz, douches pluie et planchers chauffants dans les salles de bains. Plans et prix sur demande. Livraison octobre 2026. (49352785)

Résumé de la propriété

Type de propriété
Unifamiliale
Type de bâtiment
Appartement
Étages
4
Superficie
980 pi2
Quartier
Sillery
Âge de l'édifice
En construction
Sur REALTOR.ca depuis
113 jours

Édifice

Salles de bain
Total
1
Partielle
0
Caractéristiques du bâtiment
Style
Isolée
Chauffage et refroidissement
Système de refroidissement
Unité murale, Échangeur d'air
Type de chauffage
(Électrique)
Services publics
Égouts
Égout municipal
Eau
Approvisionnement en eau par la municipalité
Caractéristiques du quartier
Commodités à proximité
Autoroute, Un cégep, Un hôpital, Parc, Écoles, Transport en commun, Université

Mesures

Superficie
980 pi2

Pièces

MétriqueImpérial
Quatrième niveau
Salle de bain
Chambre à coucher
Autre
Chambre à coucher
Bureau

Terrain

Autres informations sur la propriété
Type de Zonage
Résidentiel
Caractéristiques de la ferme
Type de ferme
Autre
Souhaitez-vous visiter cette propriété?
Demander une visite

Inscriptions semblables

Bruno Lévesque