Nous utilisons des témoins et d’autres technologies pour assurer le fonctionnement et la sécurité de nos services en ligne, et pour vous offrir une expérience personnalisée. En continuant à utiliser nos services en ligne, vous acceptez notre Politique de confidentialité et les conditions d’utilisation. Pour obtenir des informations sur la façon de régler vos paramètres de confidentialité, veuillez consulter notre Politique sur les témoins.
Masquer
Accueil AB Division No. 19 Peace River
9606 79 Avenue
Directions Imprimer
9606 79 Avenue 290 000 $
290 000 $
Masquer
Favoris

9606 79 Avenue
Peace River, Alberta T8S1E6

Numéro MLS® : A2268919
3
Chambres
2
Salles de bain
1076
Pieds carrés

Résumé de la propriété

Type de propriété
Unifamiliale
Type de bâtiment
Unifamilial
Étages
1
Superficie
1076 pi2
Titre
Tenure franche
Superficie du terrain
6482 pi2|4 051 - 7 250 pi2
Date de construction
1976
Impôt foncier annuel
3 849,96 $
Type de stationnement
Garage détaché (2)
Sur REALTOR.ca depuis
42 jours

Édifice

Chambres
Au-dessus du niveau du sol
3
Salles de bain
Total
2
Partielle
0
Caractéristiques intérieures
Appareils électroménagers inclus
Réfrigérateur, Lave-vaisselle, Cuisinière, Sécheuse
Couvre-plancher
plancher en stratifié, Linoleum
Type de sous-sol
Sous-sol complet (Aménagé)
Caractéristiques du bâtiment
Caractéristiques
Voie d'accès à l'arrière
Type de fondation
Béton coulé
Style
Isolée
Style d'architecture
Bungalow
Chauffage et refroidissement
Système de refroidissement
Climatisation centrale
Foyer
1
Type de chauffage
Air pulsé, (Gaz naturel)
Caractéristiques extérieures
Revêtement extérieur
Revêtement extérieur en métal
Caractéristiques du quartier
Commodités à proximité
Terrain de jeu, Écoles
Stationnement
Type de stationnement
Garage détaché (2)
Nombre total d'espaces de stationnement
4

Mesures

Superficie
1076 pi2
Superficie totale aménagée
1076 pi2

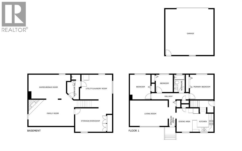
Pièces

MétriqueImpérial
Niveau principal
Cuisine avec coin repas
Salon
Salle de bain - 4 éléments
Chambre à coucher
Chambre à coucher
Chambre principale
Sous-sol
Salle familiale
Pièce supplémentaire
Salle de bain - 3 éléments
Buanderie
Lieu de rangement

Terrain

Caractéristiques du terrain
Clôture
Partiellement clôturé
Façade
17.95 m
Superficie du terrain
36.57 m
Aménagement paysager
Terrain paysager, Pelouse
Données fournies par : Pillar 9™
Souhaitez-vous visiter cette propriété?
Demander une visite

Inscriptions semblables

Amber Marcoux