Nous utilisons des témoins et d’autres technologies pour assurer le fonctionnement et la sécurité de nos services en ligne, et pour vous offrir une expérience personnalisée. En continuant à utiliser nos services en ligne, vous acceptez notre Politique de confidentialité et les conditions d’utilisation. Pour obtenir des informations sur la façon de régler vos paramètres de confidentialité, veuillez consulter notre Politique sur les témoins.
Masquer
Accueil NS Grand Truro Comté de Colchester Colchester Subdivision B Upper North River
2943 Nova Scotia 311
Directions Imprimer
2943 Nova Scotia 311 349 900 $
349 900 $
Masquer
Favoris

2943 Nova Scotia 311
Upper North River, Nouvelle-Écosse B6L6J8

Numéro MLS® : 202527284
2
Chambres
2
Salles de bain
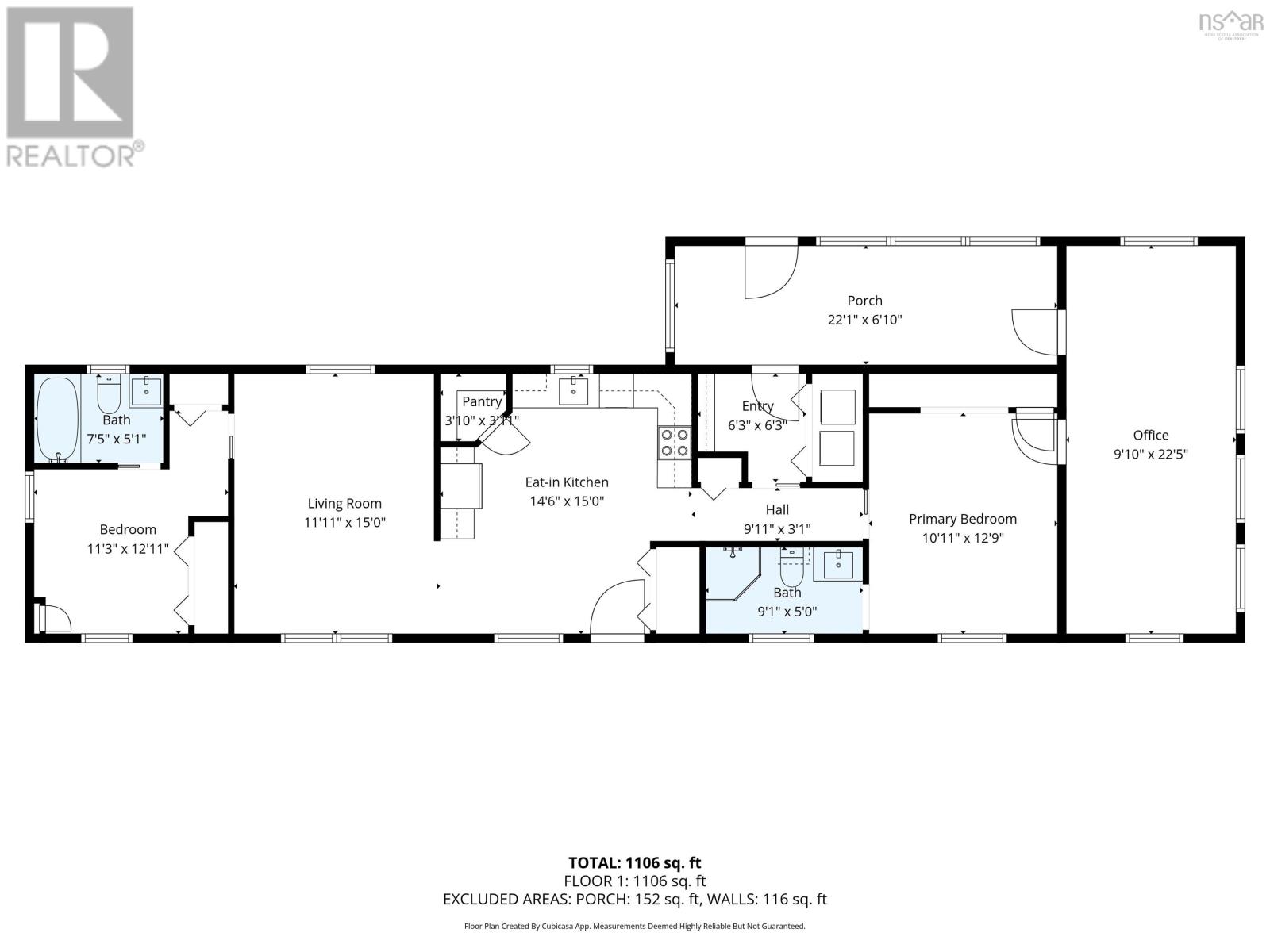
1106
Pieds carrés

Résumé de la propriété

Type de propriété
Unifamiliale
Type de bâtiment
Maison mobile
Étages
1
Superficie
1106 pi2
Titre
Tenure franche
Superficie du terrain
2.98 a
Type de stationnement
Garage, Garage détaché, Gravier
Sur REALTOR.ca depuis
38 jours

Édifice

Chambres
Au-dessus du niveau du sol
2
Salles de bain
Total
2
Partielle
0
Caractéristiques intérieures
Appareils électroménagers inclus
Cuisinière, Lave-vaisselle, Sécheuse, Machine à laver, Micro-ondes, Réfrigérateur
Couvre-plancher
plancher recouvert de tapis, plancher en stratifié, Carrelage
Type de sous-sol
Pas de sous-sol
Caractéristiques du bâtiment
Style d'architecture
Mini
Structures
Remise
Chauffage et refroidissement
Système de refroidissement
Thermopompe
Services publics
Égouts
Fosse septique
Eau
Puits foré à la sondeuse
Caractéristiques extérieures
Revêtement extérieur
Vinyle
Stationnement
Type de stationnement
Garage, Garage détaché, Gravier
Fonctions d’accessibilité
Entrée et accès
Cadres de porte d'entrée : min. 32 po, Entrée : moins de 3 marches, Seuil de passage : moins de ½ pouce
Cuisine et électroménagers
Diamètre de rotation dans la cuisine : min. 5 pi
Déplacement à l'intérieur
Cadres de porte : min. 32 po

Mesures

Superficie
1106 pi2
Source : Autre
Superficie totale aménagée
1106 pi2

Pièces

MétriqueImpérial
Niveau principal
Véranda
Vestibule
Cuisine
Salon
Chambre à coucher
Bain (nbre de pièces 1-6)
Chambre principale
Atelier
Bain (nbre de pièces 1-6)

Terrain

Caractéristiques du terrain
Aménagement paysager
Partiellement aménagé
Données fournies par : Nova Scotia Association of REALTORS®
Souhaitez-vous visiter cette propriété?
Demander une visite

Inscriptions semblables

Grant Sprague