Nous utilisons des témoins et d’autres technologies pour assurer le fonctionnement et la sécurité de nos services en ligne, et pour vous offrir une expérience personnalisée. En continuant à utiliser nos services en ligne, vous acceptez notre Politique de confidentialité et les conditions d’utilisation. Pour obtenir des informations sur la façon de régler vos paramètres de confidentialité, veuillez consulter notre Politique sur les témoins.
Masquer
Accueil BC Okanagan-Similkameen Osoyoos
21 Wood Duck Way
Directions Imprimer
21 Wood Duck Way 329 900 $
329 900 $
Masquer
Favoris

21 Wood Duck Way
Osoyoos, Colombie-Britannique V0H1V5

Numéro MLS® : 10367306

Résumé de la propriété

Type de propriété
Terrain vacant
Type de bâtiment
Autre
Titre
Tenure franche
Superficie du terrain
0.16 a|moins de 1 acre
Impôt foncier annuel
1 373,78 $
Sur REALTOR.ca depuis
76 jours

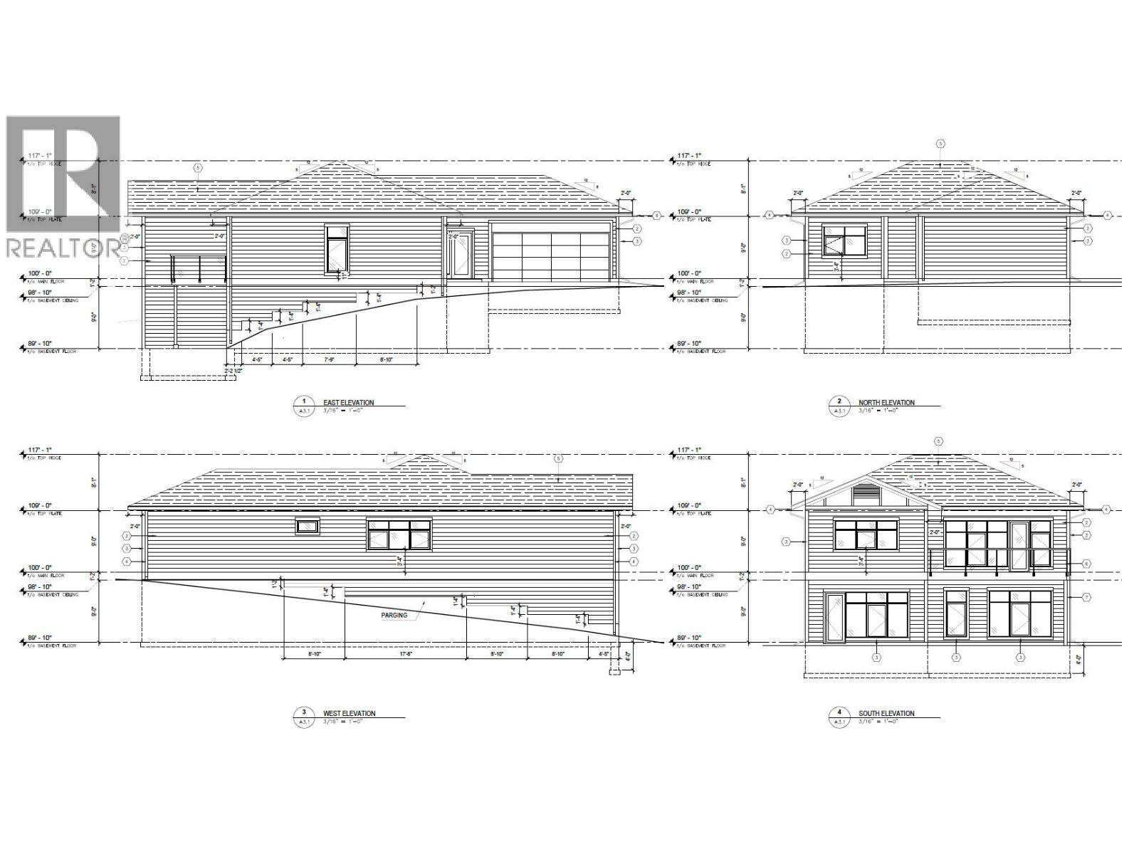
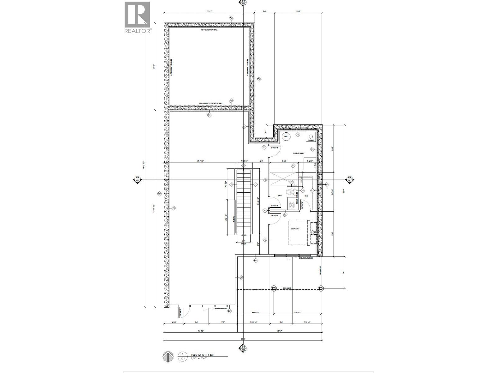
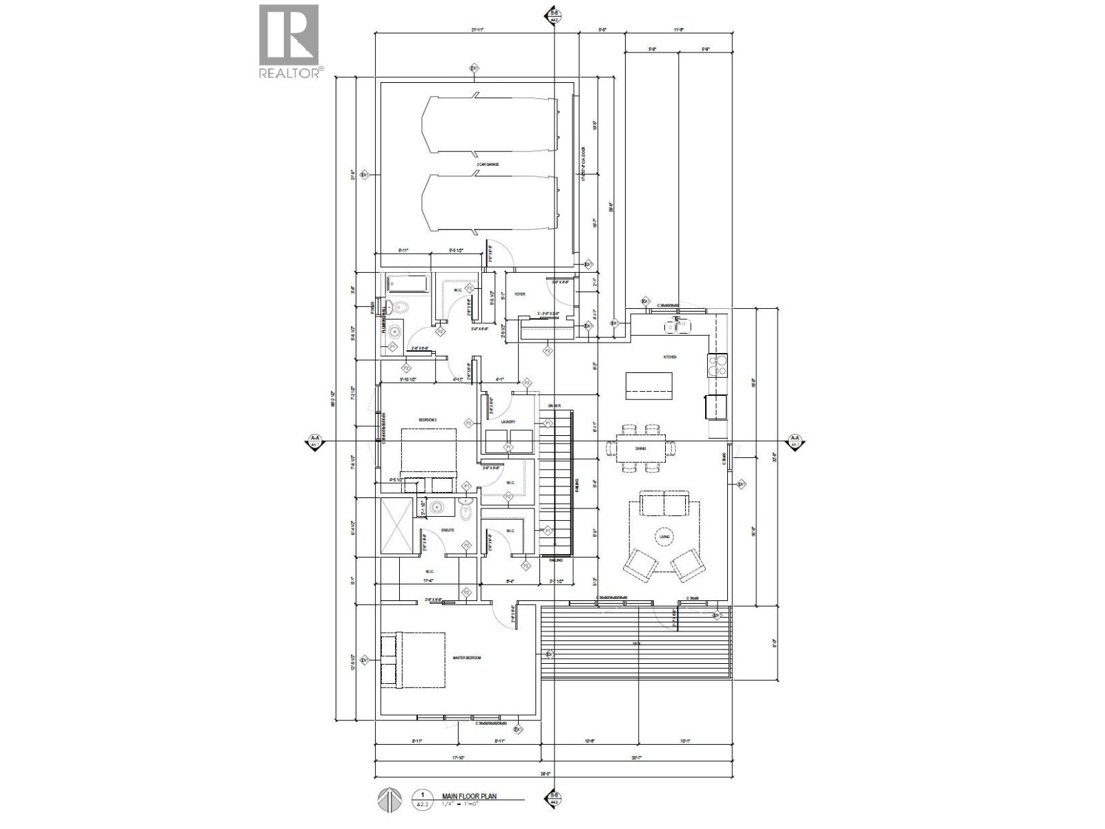
Édifice

Caractéristiques du bâtiment
Caractéristiques
Cul-de-sac
Services publics
Services publics disponibles
Électricité (Jusqu'à la limite du terrain), Gaz naturel (Jusqu'à la limite du terrain), Service d'égout (Disponible), Eau (Jusqu'à la limite du terrain)
Égouts
Égout municipal
Eau
Approvisionnement en eau par la municipalité
Caractéristiques du quartier
Commodités à proximité
Loisirs, Écoles

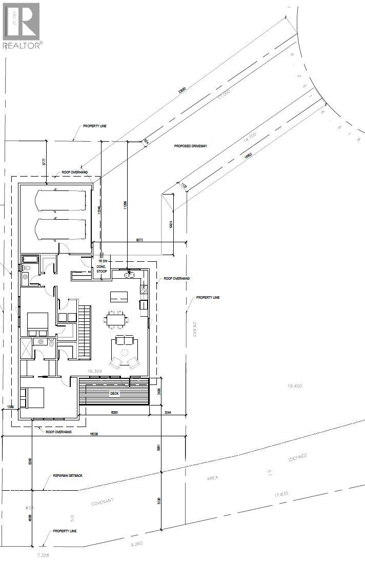
Terrain

Caractéristiques du terrain
Type de route
Route revêtue, Impasse
Autres informations sur la propriété
Accès
Accès facile
Caractéristiques du bord de l'eau
Bord de l'eau
Bord d'un étang
Eau de surface
Étangs
Données fournies par : Association of Interior REALTORS®
Souhaitez-vous visiter cette propriété?
Demander une visite

Inscriptions semblables

Arshan Gill