Nous utilisons des témoins et d’autres technologies pour assurer le fonctionnement et la sécurité de nos services en ligne, et pour vous offrir une expérience personnalisée. En continuant à utiliser nos services en ligne, vous acceptez notre Politique de confidentialité et les conditions d’utilisation. Pour obtenir des informations sur la façon de régler vos paramètres de confidentialité, veuillez consulter notre Politique sur les témoins.
Masquer
Accueil ON Norfolk Haldimand-Norfolk Norfolk County Waterford
43 NORFOLK Street
Directions Imprimer
43 NORFOLK Street 615 000 $
615 000 $
Masquer
Favoris

43 NORFOLK Street
Waterford, Ontario N0E1Y0

Numéro MLS® : 40785012
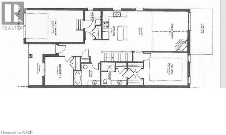
2
Chambres
2
Salles de bain
1266
Pieds carrés

Résumé de la propriété

Type de propriété
Unifamiliale
Type de bâtiment
Unifamilial
Étages
1
Superficie
1266 pi2
Titre
Tenure franche
Superficie du terrain
moins de 1/2 acre
Âge de l'édifice
En construction
Impôt foncier annuel
0 $
Type de stationnement
Garage attenant
Sur REALTOR.ca depuis
38 jours

Édifice

Chambres
Au-dessus du niveau du sol
2
Salles de bain
Total
2
Caractéristiques intérieures
Appareils électroménagers inclus
Aspirateur central préinstallé, Ouvre-porte de garage
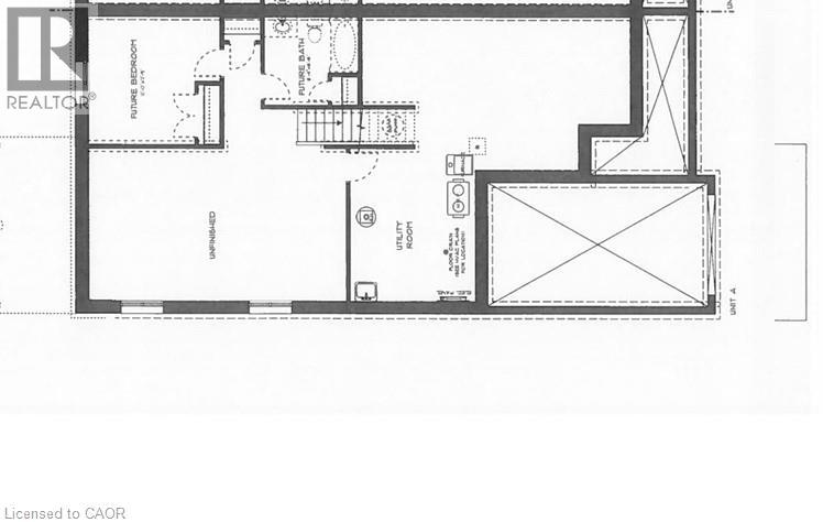
Type de sous-sol
Sous-sol complet (Non aménagé)
Caractéristiques du bâtiment
Caractéristiques
Voie d'accès en pierre concassée, Pompe de vidange, Ouvre-porte de garage automatique
Type de fondation
Béton coulé
Style
Jumelée
Style d'architecture
Bungalow
Protection contre les incendies
Détecteurs de fumée
Chauffage et refroidissement
Système de refroidissement
Climatisation centrale
Type de chauffage
Air pulsé, (Gaz naturel)
Services publics
Services publics disponibles
Électricité (Disponible), Gaz naturel (Disponible)
Égouts
Égout municipal
Eau
Approvisionnement en eau par la municipalité
Caractéristiques extérieures
Revêtement extérieur
Placage de brique, Pierre, Bardage en vinyle
Caractéristiques du quartier
Caractéristiques de la communauté
Centre communautaire, Autobus scolaire
Commodités à proximité
Lieu de culte, Écoles, Centres commerciaux
Stationnement
Type de stationnement
Garage attenant
Nombre total d'espaces de stationnement
2

Mesures

Superficie
1266 pi2
Superficie finie au-dessus du niveau du sol
1266 pi2
Source : Constructeur

Pièces

MétriqueImpérial
Niveau principal
Salle de bain - 3 éléments
Salle de bain - 4 éléments
Buanderie
Chambre à coucher
Chambre principale
Coin repas
Cuisine
Grande salle

Terrain

Caractéristiques du terrain
Façade
32 pi
Souhaitez-vous visiter cette propriété?
Demander une visite

Inscriptions semblables

CINDY CREVITS