Nous utilisons des témoins et d’autres technologies pour assurer le fonctionnement et la sécurité de nos services en ligne, et pour vous offrir une expérience personnalisée. En continuant à utiliser nos services en ligne, vous acceptez notre Politique de confidentialité et les conditions d’utilisation. Pour obtenir des informations sur la façon de régler vos paramètres de confidentialité, veuillez consulter notre Politique sur les témoins.
Masquer
Accueil ON Grand Toronto Toronto York Est Leaside Thorncliffe Park
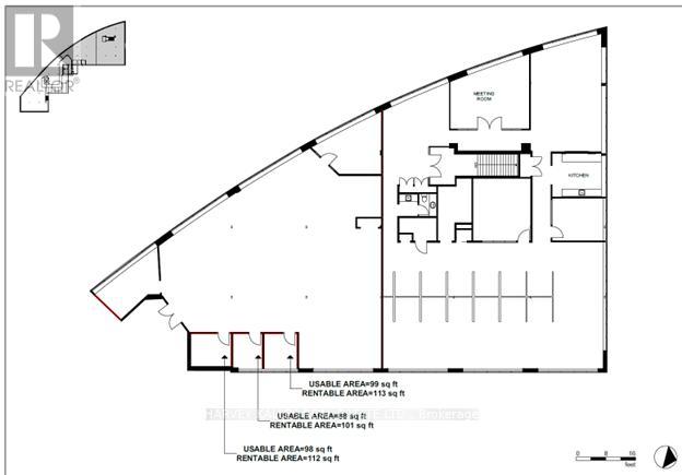
203 - 109 VANDERHOOF AVENUE
Directions Imprimer
203 - 109 VANDERHOOF AVENUE 21 $/pieds carrés
21 $/pieds carrés
Masquer
Favoris

203 - 109 VANDERHOOF AVENUE
Toronto (Leaside), Ontario M4G2H7

Numéro MLS® : C12497958
1
Salles de bain
9435
Pieds carrés

Résumé de la propriété

Type de propriété
Bureau
Type de bâtiment
Bureaux
Superficie
9435 pi2
Impôt foncier annuel
14 $
Sur REALTOR.ca depuis
50 jours

Édifice

Salles de bain
Total
1
Caractéristiques du bâtiment
Caractéristiques
Ascenseur
Chauffage et refroidissement
Système de refroidissement
Entièrement climatisé
Type de chauffage
Air pulsé (Gaz naturel)
Services publics
Eau
Approvisionnement en eau par la municipalité
Entreprise
Type d'entreprise
Autre (Cabinet(s) de professionnel(s))

Mesures

Superficie
9435 pi2

Terrain

Autres informations sur la propriété
Type de bail
Net
Données fournies par : Toronto Regional Real Estate Board
Souhaitez-vous visiter cette propriété?
Demander une visite

ELLIOTT SHIFF