Nous utilisons des témoins et d’autres technologies pour assurer le fonctionnement et la sécurité de nos services en ligne, et pour vous offrir une expérience personnalisée. En continuant à utiliser nos services en ligne, vous acceptez notre Politique de confidentialité et les conditions d’utilisation. Pour obtenir des informations sur la façon de régler vos paramètres de confidentialité, veuillez consulter notre Politique sur les témoins.
Masquer
Accueil BC Grand Kamloops Thompson-Nicola Kamloops Dallas
6066 FURRER Road
Directions Imprimer
6066 FURRER Road 1 264 900 $
Modification du prix le 2025/11/29
1 264 900 $
-34 100 $
1 299 000 $
Masquer
Favoris

6066 FURRER Road
Kamloops, Colombie-Britannique V2C4V4

Numéro MLS® : 10367266
5
Chambres
4
Salles de bain
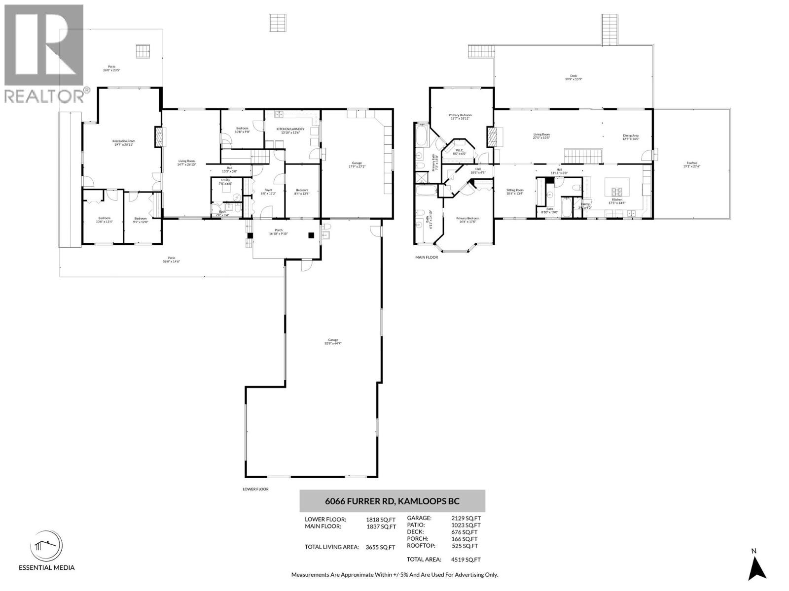
3655
Pieds carrés

Résumé de la propriété

Type de propriété
Unifamiliale
Type de bâtiment
Unifamilial
Étages
2
Superficie
3655 pi2
Titre
Tenure franche
Superficie du terrain
0.78 a|moins de 1 acre
Date de construction
1966
Impôt foncier annuel
7 512 $
Type de stationnement
Voir remarques, Stationnement supplémentair, Garage attenant (5), Garage chauffé, Surdimensionné, VR (3)
Sur REALTOR.ca depuis
41 jours

Prix et historique

Date Statut Prix vendu
24 sept. 2000 Vente conclue 272 000 $

Édifice

Salles de bain
Total
4
Partielle
1
Caractéristiques intérieures
Appareils électroménagers inclus
Surface de cuisson, Lave-vaisselle, Sécheuse, Micro-ondes, Four, Machine à laver
Couvre-plancher
plancher recouvert de tapis, plancher de bois franc, Linoleum, Recouvrements mixtes, Carrelage
Type de sous-sol
Sous-sol complet
Caractéristiques du bâtiment
Caractéristiques
Terrain plat, Privé, Îlot central, Balcon
Style
Isolée
Style d'architecture
Entrée à mi-étages
Maison à demi-niveaux
Autre
Protection contre les incendies
Entrée sélective
Chauffage et refroidissement
Système de refroidissement
Climatisation centrale
Foyer
2
Type de foyer
Inconnu (Gaz)
Type de chauffage
Air pulsé, Voir les remarques
Services publics
Services publics disponibles
Service du câble (Disponible), Électricité (Disponible), Gaz naturel (Disponible), Téléphone (Disponible), Service d'égout (Disponible), Eau (Disponible)
Égouts
Égout municipal
Eau
Approvisionnement en eau par la municipalité
Caractéristiques extérieures
Style de toiture
Bardeaux d'asphalte
Revêtement extérieur
Stuc
Caractéristiques du quartier
Commodités à proximité
Terrain de golf à proximité, Transport en commun, Parc
Stationnement
Type de stationnement
Voir remarques, Stationnement supplémentair, Garage attenant (5), Garage chauffé, Surdimensionné, VR (3)
Nombre total d'espaces de stationnement
10

Mesures

Superficie
3655 pi2

Pièces

MétriqueImpérial
Niveau principal
Salle de bain attenante - (4 éléments)
Salle de bain attenante - (4 éléments)
Chambre principale
Chambre à coucher
Coin repos
Salle de bain - 4 éléments
Cuisine
Salle à manger
Salon
Sous-sol
Chambre à coucher
Chambre à coucher
Salle de jeux
Salle familiale
Salle de bain - 2 éléments
Local de services
Atelier
Buanderie
Chambre à coucher
Bureau
Vestibule

Terrain

Caractéristiques du terrain
Aménagement paysager
Terrain paysager, Plat, Arroseur sous le sol
Vue
Vue sur la rivière, Vue sur la montagne, Vue sur l'eau, Vue ( panoramique )
Autres informations sur la propriété
Accès
Accès facile
Caractéristiques du bord de l'eau
Bord de l'eau
Terrain riverain
Données fournies par : Association of Interior REALTORS®
Souhaitez-vous visiter cette propriété?
Demander une visite

Inscriptions semblables

Kirsten Mason