Nous utilisons des témoins et d’autres technologies pour assurer le fonctionnement et la sécurité de nos services en ligne, et pour vous offrir une expérience personnalisée. En continuant à utiliser nos services en ligne, vous acceptez notre Politique de confidentialité et les conditions d’utilisation. Pour obtenir des informations sur la façon de régler vos paramètres de confidentialité, veuillez consulter notre Politique sur les témoins.
Masquer
Accueil ON Muskoka Huntsville
43 CHARLES MORLEY BOULEVARD
Directions Imprimer
43 CHARLES MORLEY BOULEVARD 599 900 $
599 900 $
Masquer
Favoris

43 CHARLES MORLEY BOULEVARD
Huntsville (Chaffey), Ontario P1H0G5

Numéro MLS® : X12496914
3
Chambres
3
Salles de bain
1100 - 1500
Pieds carrés

Résumé de la propriété

Type de propriété
Unifamiliale
Type de bâtiment
Maison en rangée
Étages
2
Superficie
1100 - 1500 pi2
Titre
Tenure franche
Superficie du terrain
24.7 x 106.7 FT|moins de 1/2 acre
Âge de l'édifice
Bâtiment neuf
Impôt foncier annuel
0 $
Type de stationnement
Garage attenant, Garage
Sur REALTOR.ca depuis
78 jours

Édifice

Chambres
Au-dessus du niveau du sol
3
Salles de bain
Total
3
Partielle
1
Caractéristiques intérieures
Type de sous-sol
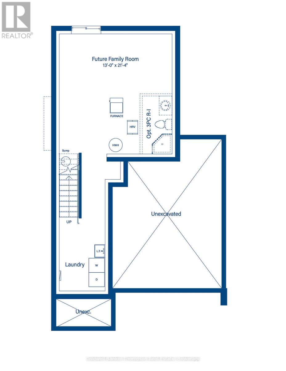
Sous-sol complet (Non aménagé)
Caractéristiques du bâtiment
Type de fondation
Béton coulé
Style
En rangée
Protection contre les incendies
Détecteurs de fumée
Location de matérial incluse
Chauffe-eau
Chauffage et refroidissement
Système de refroidissement
Aucun
Type de chauffage
Air pulsé (Gaz naturel)
Services publics
Services publics disponibles
Électricité (Installé), Gaz naturel disponible (Disponible), Service d'égout (Installé)
Égouts
Égout sanitaire
Eau
Approvisionnement en eau par la municipalité
Caractéristiques extérieures
Revêtement extérieur
Bardage en vinyle, Brique
Caractéristiques du quartier
Commodités à proximité
Terrain de golf à proximité, Un hôpital, Écoles
Stationnement
Type de stationnement
Garage attenant, Garage
Nombre total d'espaces de stationnement
2

Mesures

Superficie
1100 - 1500 pi2

Pièces

MétriqueImpérial
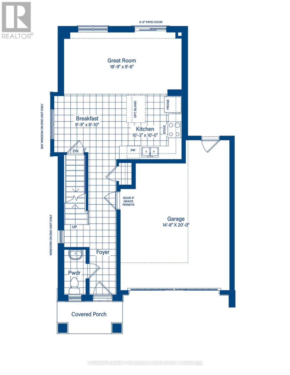
Niveau principal
Cuisine
Salle de repas
Grande salle
Deuxième niveau
Chambre principale
Chambre à coucher
Chambre à coucher

Terrain

Caractéristiques du terrain
Façade
24 pi 8 po
Superficie du terrain
106 pi 8 po
Aménagement paysager
Terrain paysager
Autres informations sur la propriété
Accès
Accès toute l'année
Servitudes
Clauses restrictives d'un projet résidentiel, Servitude
Données fournies par : OnePoint - The Lakelands
Souhaitez-vous visiter cette propriété?
Demander une visite

Inscriptions semblables

KAYLEY SPALDING