Nous utilisons des témoins et d’autres technologies pour assurer le fonctionnement et la sécurité de nos services en ligne, et pour vous offrir une expérience personnalisée. En continuant à utiliser nos services en ligne, vous acceptez notre Politique de confidentialité et les conditions d’utilisation. Pour obtenir des informations sur la façon de régler vos paramètres de confidentialité, veuillez consulter notre Politique sur les témoins.
Masquer
Accueil PE Grand Charlottetown Comté de Queens Charlottetown West Royalty
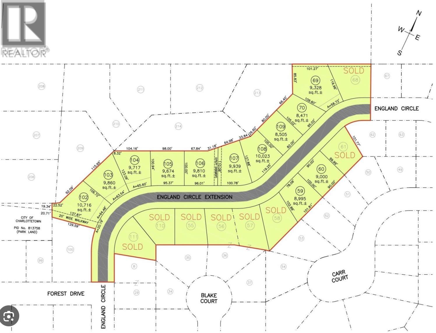
Lot 109 England Circle
Directions Imprimer
Plus de photos + 2
Lot 109 England Circle 145 000 $
145 000 $
Masquer
Favoris

Lot 109 England Circle
West Royalty, Île-du-Prince-Édouard C1E1V7

Numéro MLS® : 202526938

Résumé de la propriété

Type de propriété
Terrain vacant
Titre
Tenure franche
Superficie du terrain
moins de 1/2 acre
Impôt foncier annuel
2 665 $
Type de stationnement
Pas de stationnement
Sur REALTOR.ca depuis
120 jours

Édifice

Services publics
Services publics disponibles
Service du câble (Inconnu), DSL** (Inconnu), Téléphone (Inconnu)
Égouts
Égout municipal
Eau
Approvisionnement en eau par la municipalité
Stationnement
Type de stationnement
Pas de stationnement
Souhaitez-vous visiter cette propriété?
Demander une visite

Inscriptions semblables

Yik Kwong (Frankie) Cheung