Nous utilisons des témoins et d’autres technologies pour assurer le fonctionnement et la sécurité de nos services en ligne, et pour vous offrir une expérience personnalisée. En continuant à utiliser nos services en ligne, vous acceptez notre Politique de confidentialité et les conditions d’utilisation. Pour obtenir des informations sur la façon de régler vos paramètres de confidentialité, veuillez consulter notre Politique sur les témoins.
Masquer
Accueil AB Grand Calgary Division No. 6 Calgary Alpine Park
309, 437 Alpine Avenue SW
Directions Imprimer
309, 437 Alpine Avenue SW 534 900 $
534 900 $
Masquer
Favoris

309, 437 Alpine Avenue SW
Calgary, Alberta T2Y0Z8

Numéro MLS® : A2266802
3
Chambres
3
Salles de bain
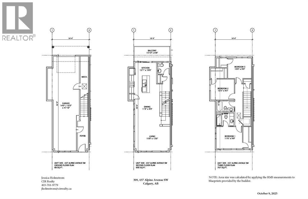
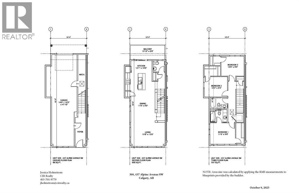
1485
Pieds carrés

Résumé de la propriété

Type de propriété
Unifamiliale
Type de bâtiment
Maison en rangée
Étages
3
Superficie
1485 pi2
Titre
condominium de terrain nu
Superficie du terrain
125.15 m2|0-4 050 pi2
Date de construction
2025
Type de stationnement
Béton, Garage attenant (2), En tandem
Sur REALTOR.ca depuis
119 jours

Édifice

Chambres
Au-dessus du niveau du sol
3
Salles de bain
Total
3
Partielle
1
Caractéristiques intérieures
Appareils électroménagers inclus
Réfrigérateur, Cuisinière électrique, Lave-vaisselle, Four à micro-ondes avec hotte intégrée, Ouvre-porte de garage
Couvre-plancher
plancher recouvert de tapis, Planche vinyle
Type de sous-sol
Pas de sous-sol
Caractéristiques du bâtiment
Caractéristiques
Stationnement
Type de fondation
Béton coulé
Style
En rangée
Matériau de Construction
Charpente en bois
Protection contre les incendies
Détecteurs de fumée
Chauffage et refroidissement
Système de refroidissement
Aucun
Type de chauffage
Chauffage central, Chaudière à haut rendement, Air pulsé, Autre, (Gaz naturel)
Caractéristiques extérieures
Revêtement extérieur
Bardage en panneaux composites, Stuc
Caractéristiques du quartier
Caractéristiques de la communauté
Ensemble domiciliaire près d'un terrain de golf, Animaux permis avec restrictions
Commodités à proximité
Terrain de golf, Parc, Terrain de jeu, Loisirs à proximité, Écoles, Centres commerciaux
Infos entretien ou copropriété
Frais d'entretien
256,91 $ mois
Les frais d'entretien comprennent
Commodités en copropriété, Assurance, Entretien du terrain, Gestion immobilière, Élimination des déchets
Société de gestion de l'entretien
Blue Jean Condo Management
Stationnement
Type de stationnement
Béton, Garage attenant (2), En tandem
Nombre total d'espaces de stationnement
2

Mesures

Superficie
1485 pi2
Superficie totale aménagée
1485 pi2

Pièces

MétriqueImpérial
Niveau principal
Autre
Deuxième niveau
Salon
Salle à manger
Autre
Garde-manger
Autre
Salle de bain - 2 éléments
Troisième niveau
Buanderie
Chambre principale
Autre
Salle de bain - 3 éléments
Salle de bain - 3 éléments
Chambre à coucher
Autre
Chambre à coucher
Autre

Terrain

Caractéristiques du terrain
Clôture
Partiellement clôturé
Façade
6.34 m
Superficie du terrain
19.74 m
Aménagement paysager
Terrain paysager
Données fournies par : Pillar 9™
Souhaitez-vous visiter cette propriété?
Demander une visite

Inscriptions semblables

Jessica D. Holmstrom