Nous utilisons des témoins et d’autres technologies pour assurer le fonctionnement et la sécurité de nos services en ligne, et pour vous offrir une expérience personnalisée. En continuant à utiliser nos services en ligne, vous acceptez notre Politique de confidentialité et les conditions d’utilisation. Pour obtenir des informations sur la façon de régler vos paramètres de confidentialité, veuillez consulter notre Politique sur les témoins.
Masquer
Accueil QC Grand Montréal Montréal Le Sud-Ouest Saint-Henri
4545 Rue Notre-Dame O.
Directions Imprimer
4545 Rue Notre-Dame O. 3 998 500 $ + TPS + TVQ
3 998 500 $ + TPS + TVQ
Masquer
Favoris

4545 Rue Notre-Dame O.
Montréal (Le Sud-Ouest), Québec H4C1S3

Numéro MLS® : 15037464

Description de l’inscription

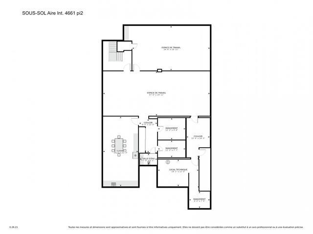
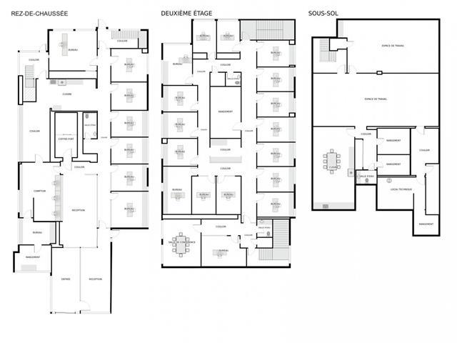
BÂTISSE COMMERCIALE, ST-HENRI | Ce bâtiment emblématique des années 1960, véritable icône du Sud-Ouest, offre 13 983 pi² sur deux étages plus sous-sol. Face au parc du Square-Sir-George-Étienne-Cartier et à deux pas du métro Place-Saint-Henri, il combine architecture moderniste patrimoniale, luminosité et espaces polyvalents. Le terrain de 14 600 pi² inclut un stationnement extérieur d'environ 22 places. Idéal pour bureaux, galeries ou commerces haut de gamme, avec potentiel locatif, zonage flexible et visibilité exceptionnelle. Une occasion unique d'allier patrimoine et investissement! TPS/TVQ doivent être ajoutées au prix demandé (44077375)

Résumé de la propriété

Type de propriété
Détail
Type de bâtiment
Détail
Étages
2
Quartier
Saint-Henri
Superficie du terrain
14868 pi2
Date de construction
1966
Type de stationnement
Autre
Sur REALTOR.ca depuis
48 jours

Édifice

Caractéristiques intérieures
Caractéristiques du sous-sol
Six pieds et plus
Type de sous-sol
Sous-sol complet (Aménagé)
Caractéristiques du bâtiment
Caractéristiques
Voie d'accès pavée
Type de fondation
Dalle en béton
Style
Isolée
Protection contre les incendies
Système d'alarme
Unités totales
1
Chauffage et refroidissement
Système de refroidissement
Climatisation centrale
Type de chauffage
(Électrique)
Services publics
Égouts
Égout municipal
Eau
Approvisionnement en eau par la municipalité
Caractéristiques extérieures
Revêtement extérieur
Béton
Entreprise
Type d'entreprise
Autre (Autre)
Caractéristiques du quartier
Commodités à proximité
Autoroute, Transport en commun
Stationnement
Type de stationnement
Autre
Nombre total d'espaces de stationnement
22

Terrain

Caractéristiques du terrain
Façade
24.38 m
Autres informations sur la propriété
Type de Zonage
Résidentiel/Commercial
Caractéristiques de la ferme
Type de ferme
Autre
Souhaitez-vous visiter cette propriété?
Demander une visite

Mark-André Martel