Nous utilisons des témoins et d’autres technologies pour assurer le fonctionnement et la sécurité de nos services en ligne, et pour vous offrir une expérience personnalisée. En continuant à utiliser nos services en ligne, vous acceptez notre Politique de confidentialité et les conditions d’utilisation. Pour obtenir des informations sur la façon de régler vos paramètres de confidentialité, veuillez consulter notre Politique sur les témoins.
Masquer
Accueil BC Grand Cranbrook East Kootenay Cranbrook
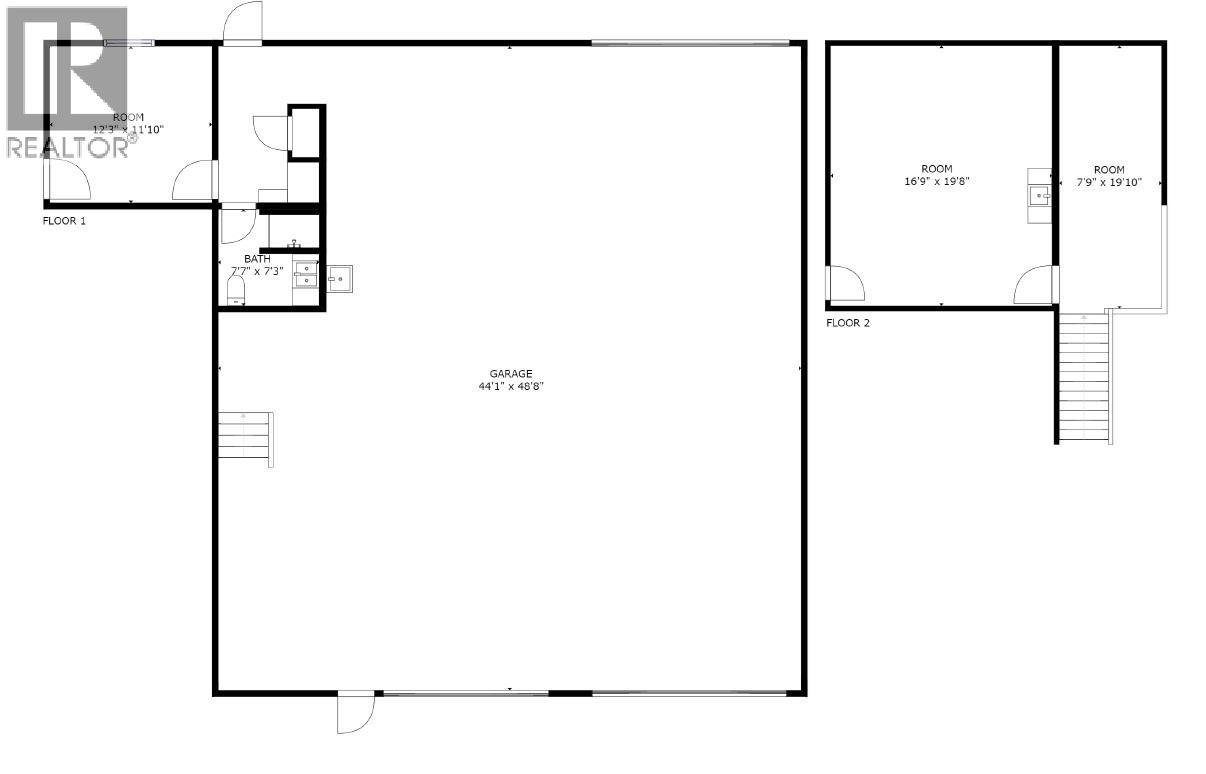
560 Industrial D Road
Directions Imprimer
560 Industrial D Road 1 200 000 $
1 200 000 $
Masquer
Favoris

560 Industrial D Road
Cranbrook, Colombie-Britannique V1C6R8

Numéro MLS® : 10366688

Résumé de la propriété

Type de propriété
Industriel
Type de bâtiment
Autre
Titre
Tenure franche
Superficie du terrain
0.89 a|moins de 1 acre
Date de construction
2009
Type de stationnement
Autre
Sur REALTOR.ca depuis
52 jours

Prix et historique

Date Statut Prix vendu
8 nov. 2018 Vente conclue 9,50 $
27 août 2015 Vente conclue 620 000 $

Édifice

Salles de bain
Partielle
0
Chauffage et refroidissement
Type de chauffage
(Autre)
Services publics
Égouts
Égout municipal
Eau
Approvisionnement en eau par la municipalité
Caractéristiques extérieures
Style de toiture
Bardeaux d'asphalte
Revêtement extérieur
Revêtement extérieur en métal
Stationnement
Type de stationnement
Autre

Mesures

Superficie
6800 pi2

Terrain

Caractéristiques du terrain
Clôture
Clôture à mailles en losange
Usage actuel
Industriel
Données fournies par : Association of Interior REALTORS®
Souhaitez-vous visiter cette propriété?
Demander une visite

Jason Wheeldon