Nous utilisons des témoins et d’autres technologies pour assurer le fonctionnement et la sécurité de nos services en ligne, et pour vous offrir une expérience personnalisée. En continuant à utiliser nos services en ligne, vous acceptez notre Politique de confidentialité et les conditions d’utilisation. Pour obtenir des informations sur la façon de régler vos paramètres de confidentialité, veuillez consulter notre Politique sur les témoins.
Masquer
Accueil ON Grand Toronto Région de York Markham Unionville
3851 HIGHWAY 7
Directions Imprimer
3851 HIGHWAY 7 1 680 000 $
1 680 000 $
Masquer
Favoris

3851 HIGHWAY 7
Markham (Unionville), Ontario L6G1B3

Numéro MLS® : N12478310

Résumé de la propriété

Type de propriété
Détail
Type de bâtiment
Détail
Impôt foncier annuel
18 247,97 $
Type de stationnement
Stationnement souterrain
Sur REALTOR.ca depuis
53 jours

Édifice

Chauffage et refroidissement
Système de refroidissement
Entièrement climatisé
Type de chauffage
Air pulsé (Gaz naturel)
Services publics
Eau
Approvisionnement en eau par la municipalité
Stationnement
Type de stationnement
Stationnement souterrain

Mesures

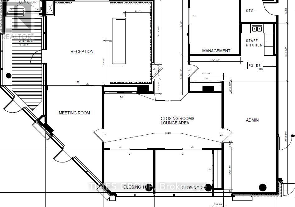
Superficie
2430 pi2
Données fournies par : Toronto Regional Real Estate Board
Souhaitez-vous visiter cette propriété?
Demander une visite

CHRIS LEUNG