Nous utilisons des témoins et d’autres technologies pour assurer le fonctionnement et la sécurité de nos services en ligne, et pour vous offrir une expérience personnalisée. En continuant à utiliser nos services en ligne, vous acceptez notre Politique de confidentialité et les conditions d’utilisation. Pour obtenir des informations sur la façon de régler vos paramètres de confidentialité, veuillez consulter notre Politique sur les témoins.
Masquer
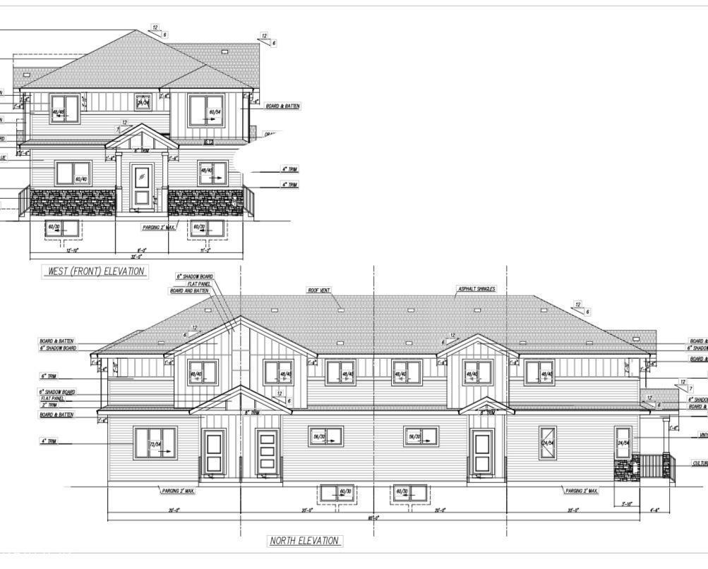
Accueil AB Grand Edmonton Division No. 11 Edmonton Grovenor
10447 149 ST NW
Directions Imprimer
10447 149 ST NW 2 200 000 $
2 200 000 $
Masquer
Favoris

10447 149 ST NW
Edmonton, Alberta T5P1L7

Numéro MLS® : E4462947
5
Chambres
4
Salles de bain
5188
Pieds carrés

Résumé de la propriété

Type de propriété
Unifamiliale
Type de bâtiment
Quadruplex
Étages
2
Superficie
5188 pi2
Titre
Tenure franche
Date de construction
2025
Type de stationnement
Aire de stationnement
Sur REALTOR.ca depuis
108 jours

Description officielle

Plan :- 1938HW Block :- 10 Lot :- 38

Édifice

Salles de bain
Total
4
Partielle
1
Caractéristiques intérieures
Appareils électroménagers inclus
Lave-vaisselle, Sécheuse, Réfrigérateur, Cuisinière, Machine à laver, Deux cuisinières, Deux machines à laver
Caractéristiques du sous-sol
Logement accessoire
Type de sous-sol
Sous-sol complet (Aménagé)
Caractéristiques du bâtiment
Caractéristiques
Voir remarques
Style
En rangée
Chauffage et refroidissement
Type de chauffage
Air pulsé
Caractéristiques du quartier
Commodités à proximité
Terrain de jeu, Transport en commun, Écoles, Centres commerciaux
Stationnement
Type de stationnement
Aire de stationnement

Mesures

Superficie
5188 pi2

Pièces

Sous-sol
Quatrième chambre
Cinquième chambre
Deuxième cuisine
Niveau supérieur
Salon
Salle à manger
Cuisine
Chambre principale
Deuxième chambre
Troisième chambre
Données fournies par : REALTORS® Association of Edmonton
Souhaitez-vous visiter cette propriété?
Demander une visite

Inscriptions semblables

Natasha Malhotra