Nous utilisons des témoins et d’autres technologies pour assurer le fonctionnement et la sécurité de nos services en ligne, et pour vous offrir une expérience personnalisée. En continuant à utiliser nos services en ligne, vous acceptez notre Politique de confidentialité et les conditions d’utilisation. Pour obtenir des informations sur la façon de régler vos paramètres de confidentialité, veuillez consulter notre Politique sur les témoins.
Masquer
Accueil ON Comté de Bruce South Bruce Peninsula
319 GOULD STREET
Directions Imprimer
319 GOULD STREET 699 000 $
699 000 $
Masquer
Favoris

319 GOULD STREET
South Bruce Peninsula, Ontario N0H2T0

Numéro MLS® : X12464780
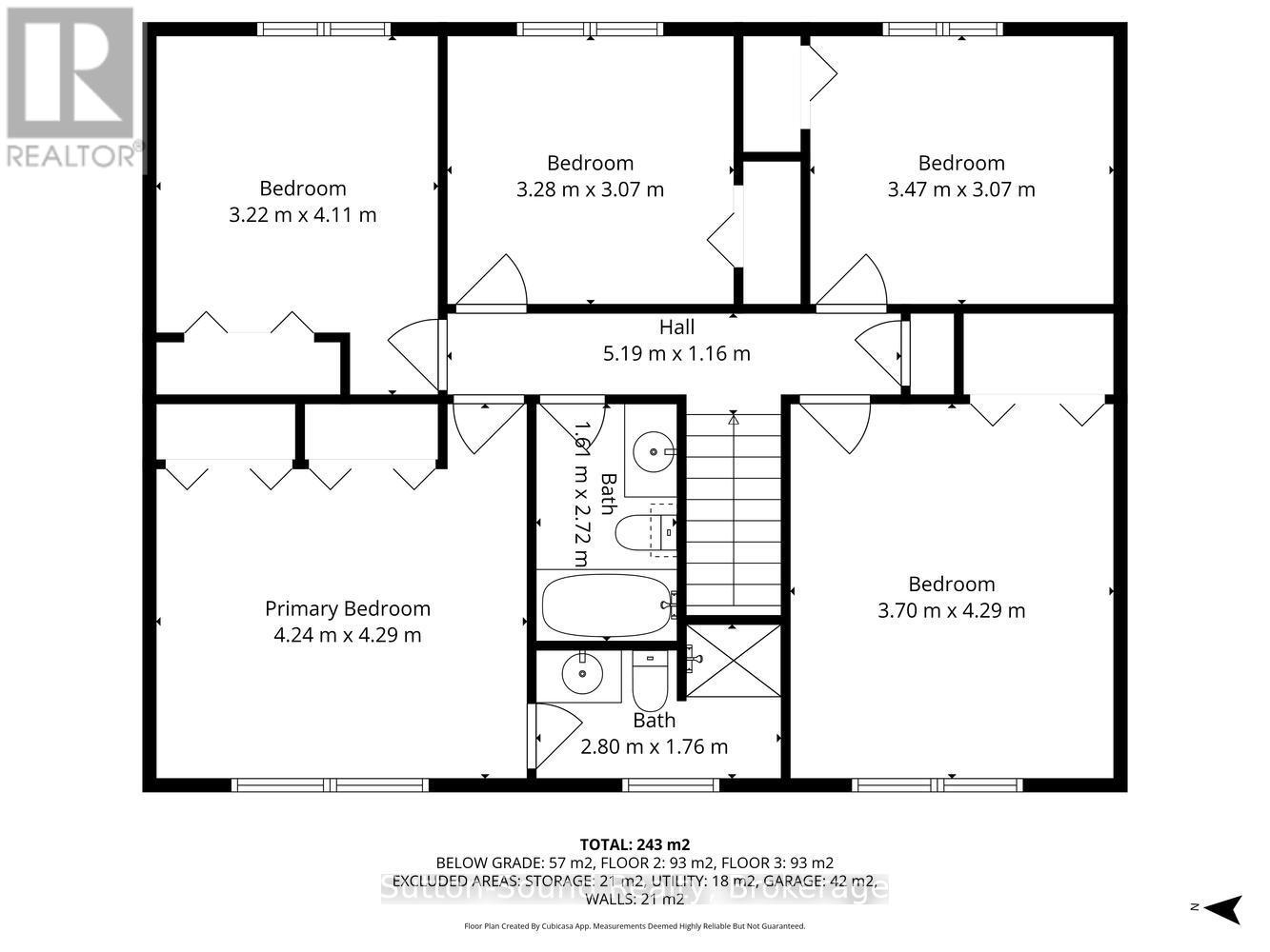
5
Chambres
3
Salles de bain
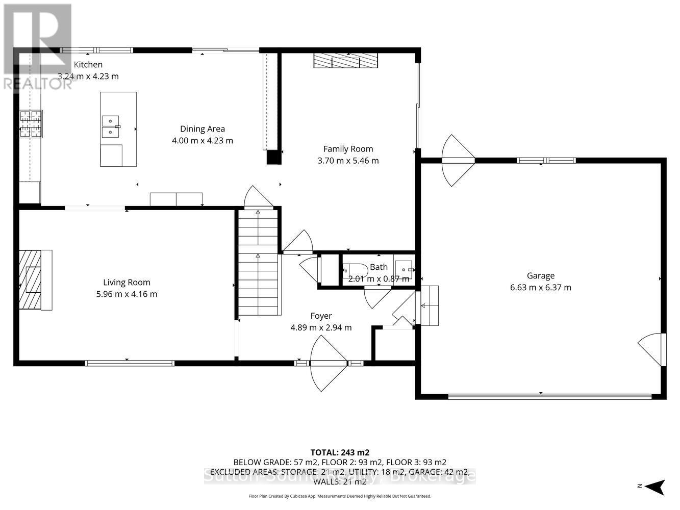
1500 - 2000
Pieds carrés

Résumé de la propriété

Type de propriété
Unifamiliale
Type de bâtiment
Unifamilial
Étages
2
Superficie
1500 - 2000 pi2
Titre
Tenure franche
Superficie du terrain
135.3 x 151.7 FT|moins de 1/2 acre
Impôt foncier annuel
3 512 $
Type de stationnement
Garage attenant, Garage
Sur REALTOR.ca depuis
93 jours

Édifice

Chambres
Au-dessus du niveau du sol
5
Salles de bain
Total
3
Partielle
1
Caractéristiques intérieures
Appareils électroménagers inclus
Chauffe-eau, Compteur d'eau, Micro-ondes, Four, Cuisinière, Réfrigérateur
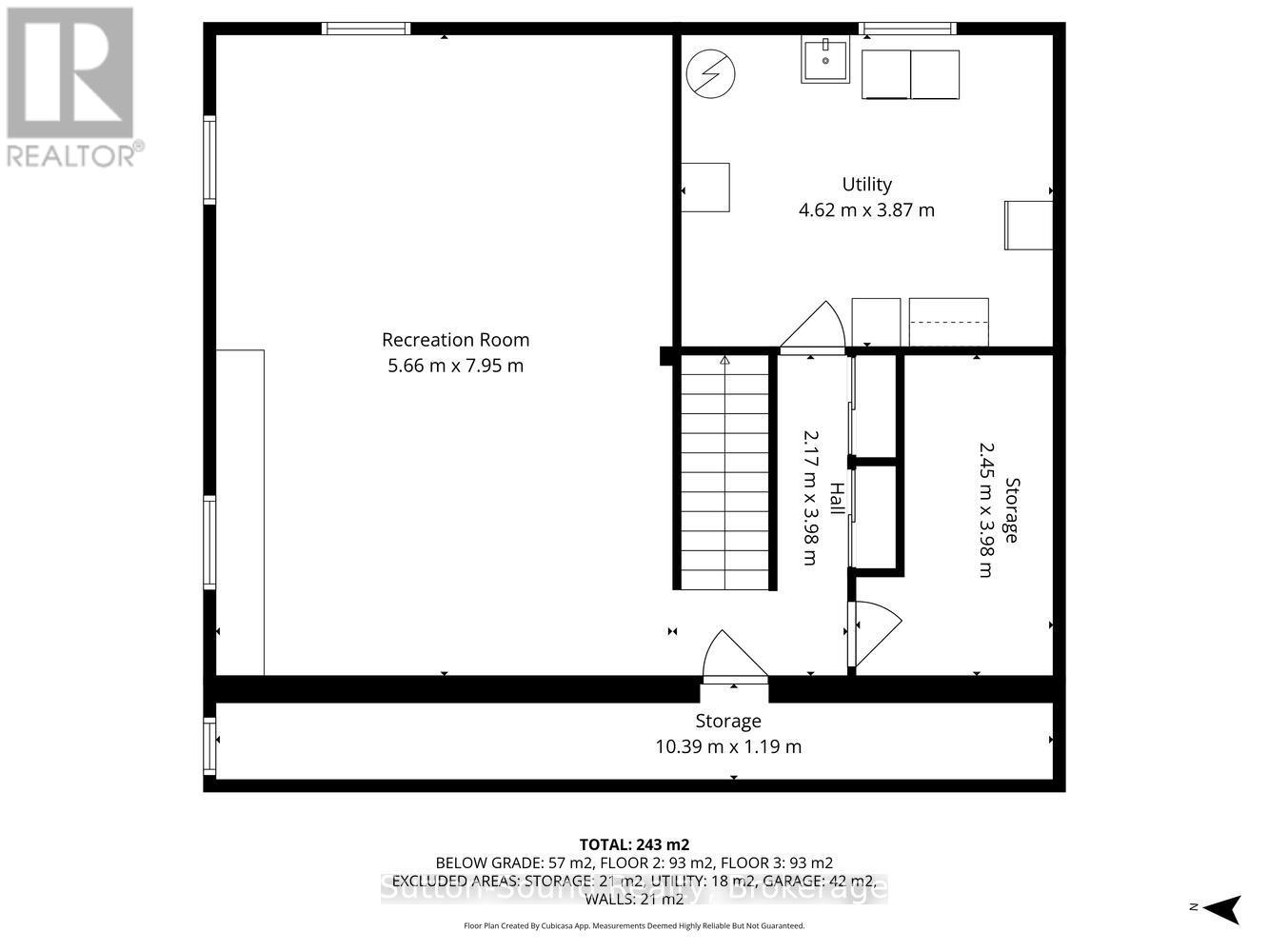
Type de sous-sol
Sous-sol complet (Partiellement aménagé)
Caractéristiques du bâtiment
Caractéristiques
Terrain plat, Sec
Type de fondation
Blocs de béton
Style
Isolée
Protection contre les incendies
Détecteurs de fumée
Commodités qu'offre le bâtiment
Foyer(s)
Location de matérial incluse
Aucun
Structures
Terrasse
Chauffage et refroidissement
Système de refroidissement
Climatisation centrale
Foyer
2
Type de chauffage
Air pulsé (Gaz naturel)
Services publics
Services publics disponibles
Service du câble (Disponible), Électricité (Installé), Service d'égout (Installé)
Égouts
Égout sanitaire
Eau
Approvisionnement en eau par la municipalité
Caractéristiques extérieures
Revêtement extérieur
Aluminium, Pierre
Piscine
Piscine hors-terre
Caractéristiques du quartier
Caractéristiques de la communauté
Autobus scolaire
Stationnement
Type de stationnement
Garage attenant, Garage
Nombre total d'espaces de stationnement
8

Mesures

Superficie
1500 - 2000 pi2

Terrain

Caractéristiques du terrain
Façade
135 pi 3 po
Superficie du terrain
151 pi 8 po
Données fournies par : OnePoint - The Lakelands
Souhaitez-vous visiter cette propriété?
Demander une visite

Inscriptions semblables

CHRISTIE NUTTALL