Nous utilisons des témoins et d’autres technologies pour assurer le fonctionnement et la sécurité de nos services en ligne, et pour vous offrir une expérience personnalisée. En continuant à utiliser nos services en ligne, vous acceptez notre Politique de confidentialité et les conditions d’utilisation. Pour obtenir des informations sur la façon de régler vos paramètres de confidentialité, veuillez consulter notre Politique sur les témoins.
Masquer
Accueil ON Comté de Wellington Mapleton
106 BEDELL Drive
Directions Imprimer
Plus de photos + 2
106 BEDELL Drive 3 400 $/mois
3 400 $/mois
Masquer
Favoris

106 BEDELL Drive
Drayton, Ontario N0G1P0

Numéro MLS® : 40778505
3
Chambres
3
Salles de bain
1889
Pieds carrés

Résumé de la propriété

Type de propriété
Unifamiliale
Type de bâtiment
Unifamilial
Étages
1.5
Superficie
1889 pi2
Titre
Tenure franche
Superficie du terrain
moins de 1/2 acre
Date de construction
2025
Type de stationnement
Garage attenant
Sur REALTOR.ca depuis
119 jours

Édifice

Chambres
Au-dessus du niveau du sol
3
Salles de bain
Total
3
Partielle
1
Caractéristiques intérieures
Appareils électroménagers inclus
Lave-vaisselle, Sécheuse, Réfrigérateur, Cuisinière, Machine à laver, Four à micro-ondes encastré, Ouvre-porte de garage
Type de sous-sol
Sous-sol complet (Aménagé)
Caractéristiques du bâtiment
Caractéristiques
Pompe de vidange, Ouvre-porte de garage automatique
Type de fondation
Béton coulé
Style
Jumelée
Unités totales
0
Chauffage et refroidissement
Système de refroidissement
Climatisation centrale
Type de chauffage
Air pulsé, (Gaz naturel)
Services publics
Égouts
Égout municipal
Eau
Approvisionnement en eau par la municipalité
Caractéristiques extérieures
Revêtement extérieur
Brique, Pierre
Caractéristiques du quartier
Caractéristiques de la communauté
Secteur paisible, Centre communautaire
Commodités à proximité
Un hôpital, Lieu de culte, Écoles, Centres commerciaux
Stationnement
Type de stationnement
Garage attenant
Nombre total d'espaces de stationnement
4

Mesures

Superficie
1889 pi2
Superficie finie au-dessus du niveau du sol
1889 pi2
Source : Des plans

Pièces

MétriqueImpérial
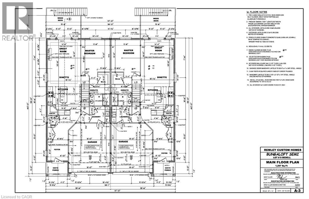
Niveau principal
Buanderie
Salle de bains complète
Chambre principale
Grande salle
Cuisine
Salle de bain - 2 éléments
Vestibule
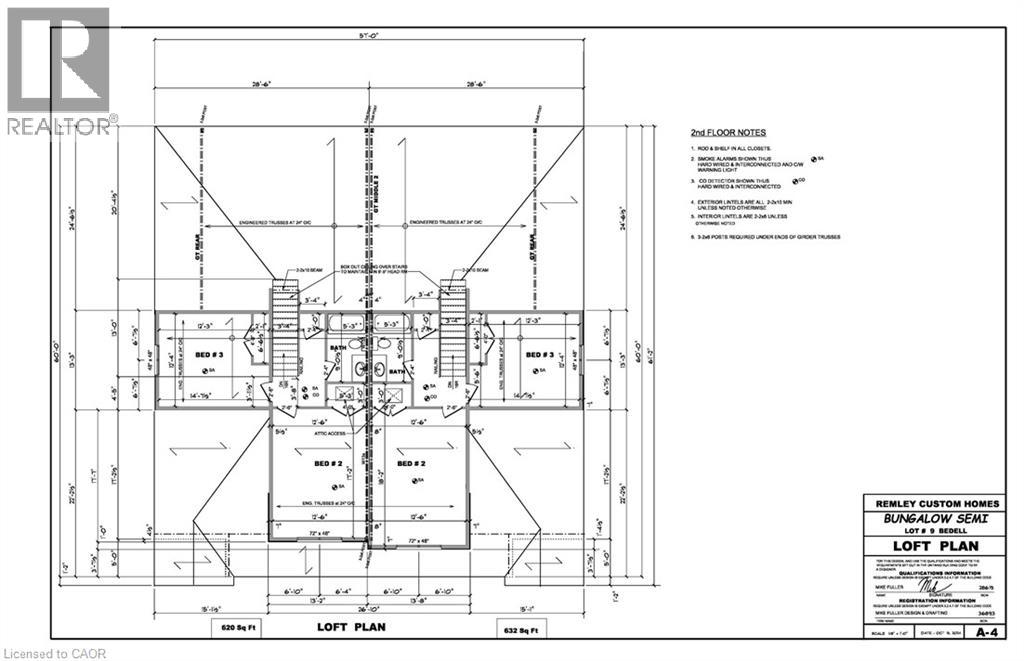
Deuxième niveau
Salle de bain - 4 éléments
Chambre à coucher
Chambre à coucher

Terrain

Caractéristiques du terrain
Façade
33 pi
Superficie du terrain
124 pi
Aménagement paysager
Terrain paysager
Souhaitez-vous visiter cette propriété?
Demander une visite

Inscriptions semblables

John Zwart