Nous utilisons des témoins et d’autres technologies pour assurer le fonctionnement et la sécurité de nos services en ligne, et pour vous offrir une expérience personnalisée. En continuant à utiliser nos services en ligne, vous acceptez notre Politique de confidentialité et les conditions d’utilisation. Pour obtenir des informations sur la façon de régler vos paramètres de confidentialité, veuillez consulter notre Politique sur les témoins.
Masquer
Accueil BC Alberni-Clayoquot Tofino
565 Campbell St
Directions Imprimer
565 Campbell St 775 300 $
Modification du prix le 2026/01/06
775 300 $
-40 200 $
815 500 $
Masquer
Favoris

565 Campbell St
Tofino, Colombie-Britannique V0R2Z0

Numéro MLS® : 1016086
2
Chambres
2
Salles de bain
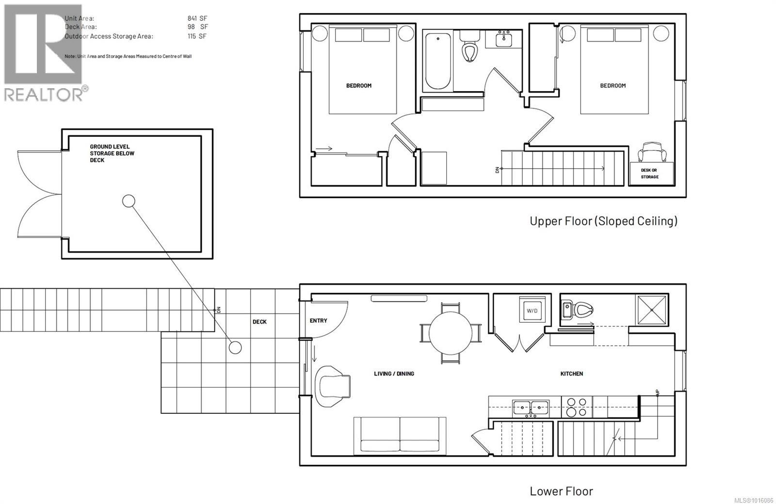
841
Pieds carrés

Résumé de la propriété

Type de propriété
Unifamiliale
Type de bâtiment
Maison en rangée
Superficie
841 pi2
Titre
Copropriété divise
Date de construction
2027
Impôt foncier annuel
0 $
Type de stationnement
Garage attenant
Sur REALTOR.ca depuis
99 jours

Édifice

Salles de bain
Total
2
Caractéristiques intérieures
Appareils électroménagers inclus
Lave-vaisselle, Micro-ondes, Réfrigérateur, Cuisinière, Machine à laver, Sécheuse
Caractéristiques du bâtiment
Structures
Terrasse(s)
Chauffage et refroidissement
Système de refroidissement
Partiellement climatisé
Type de chauffage
Plinthes chauffantes, Thermopompe
Caractéristiques du quartier
Caractéristiques de la communauté
Animaux admissibles, Conçu pour familles
Infos entretien ou copropriété
Frais d'entretien
420 $ mois
Stationnement
Type de stationnement
Garage attenant
Nombre total d'espaces de stationnement
1

Mesures

Superficie
841 pi2
Superficie totale aménagée
841 pi2

Pièces

MétriqueImpérial
Niveau principal
Cuisine
Salle de bain
Salon/Salle à manger
Patio
Deuxième niveau
Salle de bain
Chambre à coucher
Chambre à coucher
Niveau inférieur
Lieu de rangement

Terrain

Autres informations sur la propriété
Type de Zonage
Multifamilial
Données fournies par : Victoria Real Estate Board
Souhaitez-vous visiter cette propriété?
Demander une visite

Inscriptions semblables

Bryan Pudney