Nous utilisons des témoins et d’autres technologies pour assurer le fonctionnement et la sécurité de nos services en ligne, et pour vous offrir une expérience personnalisée. En continuant à utiliser nos services en ligne, vous acceptez notre Politique de confidentialité et les conditions d’utilisation. Pour obtenir des informations sur la façon de régler vos paramètres de confidentialité, veuillez consulter notre Politique sur les témoins.
Masquer
Accueil ON Comté de Lanark Smiths Falls
66 DOCTOR AGNES CRAINE DRIVE
Directions Imprimer
66 DOCTOR AGNES CRAINE DRIVE 509 900 $
509 900 $
Masquer
Favoris

66 DOCTOR AGNES CRAINE DRIVE
Smiths Falls, Ontario K7A0B6

Numéro MLS® : X12448685
2
Chambres
2
Salles de bain
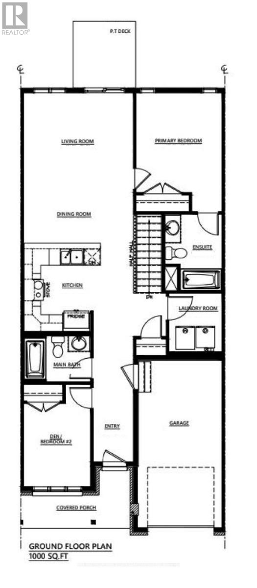
700 - 1100
Pieds carrés

Résumé de la propriété

Type de propriété
Unifamiliale
Type de bâtiment
Maison en rangée
Étages
1
Superficie
700 - 1100 pi2
Titre
Tenure franche
Superficie du terrain
7.5 x 40.9 M
Impôt foncier annuel
0 $
Type de stationnement
Garage attenant, Garage
Sur REALTOR.ca depuis
123 jours

Édifice

Chambres
Au-dessus du niveau du sol
2
Salles de bain
Total
2
Caractéristiques intérieures
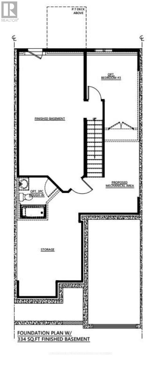
Caractéristiques du sous-sol
Sous-sol à niveau
Type de sous-sol
Partiellement aménagé
Caractéristiques du bâtiment
Type de fondation
Béton coulé
Style
En rangée
Style d'architecture
Bungalow
Chauffage et refroidissement
Système de refroidissement
Climatisation centrale
Type de chauffage
Air pulsé (Gaz naturel)
Services publics
Égouts
Égout sanitaire
Eau
Approvisionnement en eau par la municipalité
Caractéristiques extérieures
Revêtement extérieur
Brique
Stationnement
Type de stationnement
Garage attenant, Garage
Nombre total d'espaces de stationnement
2

Mesures

Superficie
700 - 1100 pi2

Pièces

MétriqueImpérial
Niveau principal
Vestibule
Deuxième chambre
Salle de bain
Buanderie
Cuisine
Salle à manger
Salon
Chambre principale
Sous-sol
Salle de jeux, récréative

Terrain

Caractéristiques du terrain
Façade
7.5 m
Superficie du terrain
40.92 m
Données fournies par : Ottawa Real Estate Board
Souhaitez-vous visiter cette propriété?
Demander une visite

Inscriptions semblables

Andrew Brethour