Nous utilisons des témoins et d’autres technologies pour assurer le fonctionnement et la sécurité de nos services en ligne, et pour vous offrir une expérience personnalisée. En continuant à utiliser nos services en ligne, vous acceptez notre Politique de confidentialité et les conditions d’utilisation. Pour obtenir des informations sur la façon de régler vos paramètres de confidentialité, veuillez consulter notre Politique sur les témoins.
Masquer
Accueil BC Columbia-Shuswap Columbia-Shuswap C
3935 Eagle Bay Rd. Road Unit# 1
Directions Imprimer
3935 Eagle Bay Rd. Road Unit# 1 471 500 $
471 500 $
Masquer
Favoris

3935 Eagle Bay Rd. Road Unit# 1
Eagle Bay, Colombie-Britannique V0E1T0

Numéro MLS® : 10364349
2
Chambres
3
Salles de bain
1280
Pieds carrés

Résumé de la propriété

Type de propriété
Unifamiliale
Type de bâtiment
Maison en rangée
Étages
2
Superficie
1280 pi2
Titre
Copropriété divise
Superficie du terrain
moins de 1 acre
Date de construction
1995
Impôt foncier annuel
1 460,67 $
Nombre total d'espaces de stationnement
1
Sur REALTOR.ca depuis
147 jours

Édifice

Salles de bain
Total
3
Partielle
1
Caractéristiques intérieures
Appareils électroménagers inclus
Réfrigérateur, Lave-vaisselle, Cuisinière électrique, Chauffe-eau électrique, Laveuse et sécheuse superposées
Couvre-plancher
Linoleum
Caractéristiques du bâtiment
Caractéristiques
Balcon, Deux balcons
Style
En rangée
Entreposage
Entreposage, Armoire vestiaire
Structures
Quai
Chauffage et refroidissement
Type de chauffage
Plinthes chauffantes
Services publics
Égouts
Fosse septique
Eau
Approvisionnent en eau d'un lac/d'une rivière
Caractéristiques extérieures
Matériaux du toit
matériau pour toit métallique
Revêtement extérieur
Stuc
Caractéristiques du quartier
Caractéristiques de la communauté
Conçu pour familles
Infos entretien ou copropriété
Frais d'entretien
777 $ mois
Stationnement
Nombre total d'espaces de stationnement
1

Mesures

Superficie
1280 pi2

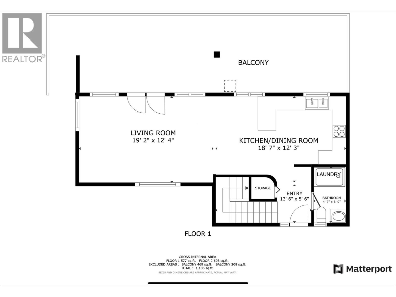
Pièces

MétriqueImpérial
Niveau principal
Salle de bain - 2 éléments
Cuisine
Salle à manger
Salon
Deuxième niveau
Salle de bain - 3 éléments
Chambre à coucher
Salle de bain attenante - (3 éléments)
Chambre principale

Terrain

Caractéristiques du terrain
Aménagement paysager
Terrain paysager
Vue
Vue sur le lac, Vue sur la montagne
Caractéristiques du bord de l'eau
Eau de surface
Lac
Structures
Quai
Données fournies par : Association of Interior REALTORS®
Souhaitez-vous visiter cette propriété?
Demander une visite

Inscriptions semblables

Nancy Bell