Nous utilisons des témoins et d’autres technologies pour assurer le fonctionnement et la sécurité de nos services en ligne, et pour vous offrir une expérience personnalisée. En continuant à utiliser nos services en ligne, vous acceptez notre Politique de confidentialité et les conditions d’utilisation. Pour obtenir des informations sur la façon de régler vos paramètres de confidentialité, veuillez consulter notre Politique sur les témoins.
Masquer
Accueil ON Comtés unis de Prescott et Russell Champlain
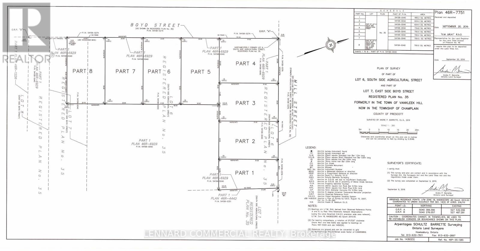
184 MILL STREET
Directions Imprimer
Plus de photos + 1
184 MILL STREET 1 395 000 $
1 395 000 $
Masquer
Favoris

184 MILL STREET
Champlain, Ontario K0B1R0

Numéro MLS® : X12436859

Résumé de la propriété

Type de propriété
Terrain vacant
Superficie du terrain
4.218 a
Impôt foncier annuel
2 062,52 $
Sur REALTOR.ca depuis
75 jours

Édifice

Services publics
Eau
Approvisionnement en eau par la municipalité

Mesures

Superficie
4 a

Terrain

Caractéristiques du terrain
Façade
264 pi
Superficie du terrain
429 pi
Données fournies par : Ottawa Real Estate Board
Souhaitez-vous visiter cette propriété?
Demander une visite

Inscriptions semblables

Ian Shackell