Nous utilisons des témoins et d’autres technologies pour assurer le fonctionnement et la sécurité de nos services en ligne, et pour vous offrir une expérience personnalisée. En continuant à utiliser nos services en ligne, vous acceptez notre Politique de confidentialité et les conditions d’utilisation. Pour obtenir des informations sur la façon de régler vos paramètres de confidentialité, veuillez consulter notre Politique sur les témoins.
Masquer
Accueil QC Grand Victoriaville Arthabaska Victoriaville
1550 Boul. Jutras O.
Directions Imprimer
1550 Boul. Jutras O. 610 000 $ + TPS + TVQ
Modification du prix le 2026/02/10
610 000 $ + TPS + TVQ
-200 000 $
810 000 $
Masquer
Favoris

1550 Boul. Jutras O.
Victoriaville, Québec G6T2B4

Numéro MLS® : 25969380

Description de l’inscription

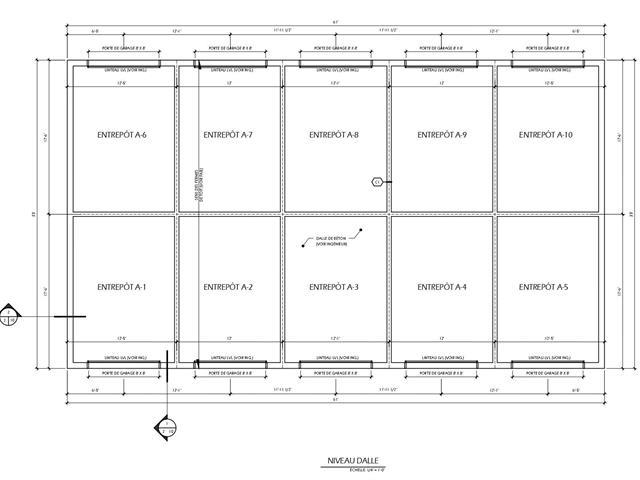
PROJET DE MINI-ENTREPÔT - APPROUVÉ PAR LA VILLE -- Permis de phase 1 disponible. Terrain de 90 510 pi² situé sur le boulevard Jutras Sud, à proximité de tous les services. Zonage résidentiel et commercial permettant la construction de mini-entrepôts modernes. La municipalité est également ouverte à un projet résidentiel, avec un potentiel additionnel pour un développement multi-résidentiel sur le site. BALANCE DE PRIX DE VENTE du vendeur pourrait également être envisagée afin de faciliter la mise en oeuvre du projet. TPS/TVQ doivent être ajoutées au prix demandé (54893635)

Résumé de la propriété

Type de propriété
Terrain vacant
Superficie du terrain
90510 pi2
Sur REALTOR.ca depuis
150 jours

Édifice

Services publics
Égouts
Pas de réseau d'égouts

Terrain

Autres informations sur la propriété
Type de Zonage
Mixte
Caractéristiques de la ferme
Type de ferme
Autre
Souhaitez-vous visiter cette propriété?
Demander une visite

Inscriptions semblables

Sophia Meliani