Nous utilisons des témoins et d’autres technologies pour assurer le fonctionnement et la sécurité de nos services en ligne, et pour vous offrir une expérience personnalisée. En continuant à utiliser nos services en ligne, vous acceptez notre Politique de confidentialité et les conditions d’utilisation. Pour obtenir des informations sur la façon de régler vos paramètres de confidentialité, veuillez consulter notre Politique sur les témoins.
Masquer
Accueil QC Ottawa - Gatineau Gatineau Aylmer Du Plateau
20 Allée de Hambourg #210
Directions Imprimer
20 Allée de Hambourg #210 + TPS + TVQ 4 377 $/mois
+ TPS + TVQ 4 377 $/mois
Masquer
Favoris

20 Allée de Hambourg
#210
Gatineau (Aylmer), Québec J9J4J6

Numéro MLS® : 16776431

Description de l’inscription

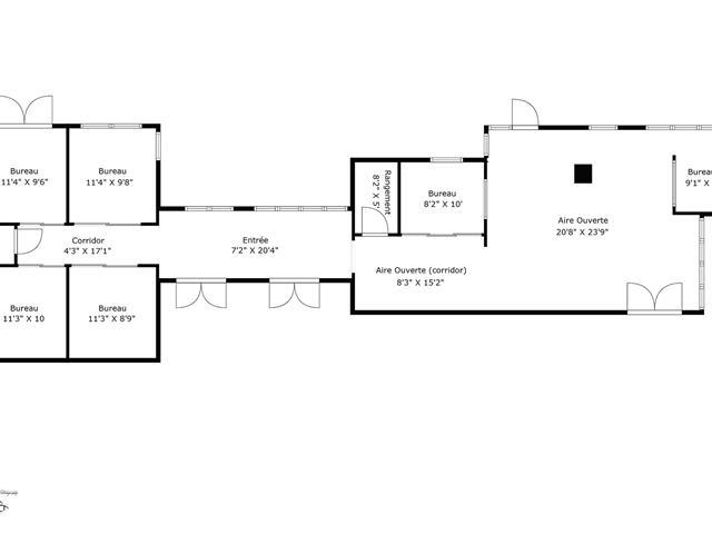
Sous-location de 2ans ou possibilité de signer un nouveau bail de 5ans et plus! Local clé en main de six bureaux indépendants, un immense espace commun et deux balcons, avec possibilité d'inclure tous les meubles et accessoires présents. Situé au deuxième étage de la place AGORA au centre du Plateau. La place AGORA est très pratique pour les futurs occupants de ce local: pharmacie, dépanneur, plusieurs restaurants, gym 24h, studio de yoga, salon de barbier, spa et plusieurs autres entreprises pour améliorer la vie quotidienne au travail. Le prix affiché inclu les frais communs qui couvrent tout sauf l'électricité. À 15 minutes d'Ottawa! TPS/TVQ doivent être ajoutées au prix demandé (45696421)

Résumé de la propriété

Type de propriété
Détail
Type de bâtiment
Détail
Quartier
Plateau de la Capitale
Titre
Copropriété divise
Date de construction
2021
Type de stationnement
Autre, Garage
Sur REALTOR.ca depuis
85 jours

Édifice

Caractéristiques du bâtiment
Type de fondation
Béton coulé
Style
En rangée
Protection contre les incendies
Système d'alarme incendie, Système d'alarme
Chauffage et refroidissement
Système de refroidissement
Climatisation centrale
Type de chauffage
(Électrique)
Services publics
Égouts
Égout municipal
Eau
Approvisionnement en eau par la municipalité
Entreprise
Type d'entreprise
Autre (Autre)
Caractéristiques du quartier
Commodités à proximité
Autoroute, Transport en commun
Stationnement
Type de stationnement
Autre, Garage
Nombre total d'espaces de stationnement
200

Terrain

Autres informations sur la propriété
Type de Zonage
Résidentiel/Commercial
Caractéristiques de la ferme
Type de ferme
Autre
Données fournies par : Chambre immobilière de l'Outaouais
Souhaitez-vous visiter cette propriété?
Demander une visite

Daniel Lozinski