Nous utilisons des témoins et d’autres technologies pour assurer le fonctionnement et la sécurité de nos services en ligne, et pour vous offrir une expérience personnalisée. En continuant à utiliser nos services en ligne, vous acceptez notre Politique de confidentialité et les conditions d’utilisation. Pour obtenir des informations sur la façon de régler vos paramètres de confidentialité, veuillez consulter notre Politique sur les témoins.
Masquer
Accueil ON Hastings Comté de Hastings Tweed
159 POMEROY AVENUE
Directions Imprimer
159 POMEROY AVENUE 550 000 $
Prochaine visite libre
28
févr.
550 000 $
Masquer
Favoris

159 POMEROY AVENUE
Tweed (Tweed (Village)), Ontario K0K3J0

Numéro MLS® : X12429901
2
Chambres
2
Salles de bain
1100 - 1500
Pieds carrés

Visites libres

28 févr.
15 h - 16 h
5 mars
14 h 30 - 16 h
Ajouter au calendrier

Résumé de la propriété

Type de propriété
Unifamiliale
Type de bâtiment
Maison en rangée
Étages
1
Superficie
1100 - 1500 pi2
Titre
Tenure franche
Superficie du terrain
37.6 x 95.6 FT
Âge de l'édifice
Bâtiment neuf
Impôt foncier annuel
0 $
Type de stationnement
Garage attenant, Garage
Sur REALTOR.ca depuis
154 jours

Édifice

Chambres
Au-dessus du niveau du sol
2
Salles de bain
Total
2
Caractéristiques intérieures
Appareils électroménagers inclus
Télécommande(s) d'ouvre-porte de garage, Lave-vaisselle, Ouvre-porte de garage, Cuisinière, Réfrigérateur
Type de sous-sol
Sous-sol complet (Non aménagé)
Caractéristiques du bâtiment
Type de fondation
Béton coulé
Style
En rangée
Style d'architecture
Bungalow
Protection contre les incendies
Détecteurs de fumée
Commodités qu'offre le bâtiment
Foyer(s)
Location de matérial incluse
Aucun
Chauffage et refroidissement
Système de refroidissement
Climatisation centrale
Foyer
1
Type de chauffage
Air pulsé (Gaz naturel)
Services publics
Égouts
Égout sanitaire
Eau
Approvisionnement en eau par la municipalité
Caractéristiques extérieures
Revêtement extérieur
Pierre, Panneau de fibres dur
Caractéristiques du quartier
Caractéristiques de la communauté
Centre communautaire
Commodités à proximité
Plage, Terrain de golf à proximité, Parc
Stationnement
Type de stationnement
Garage attenant, Garage
Nombre total d'espaces de stationnement
2

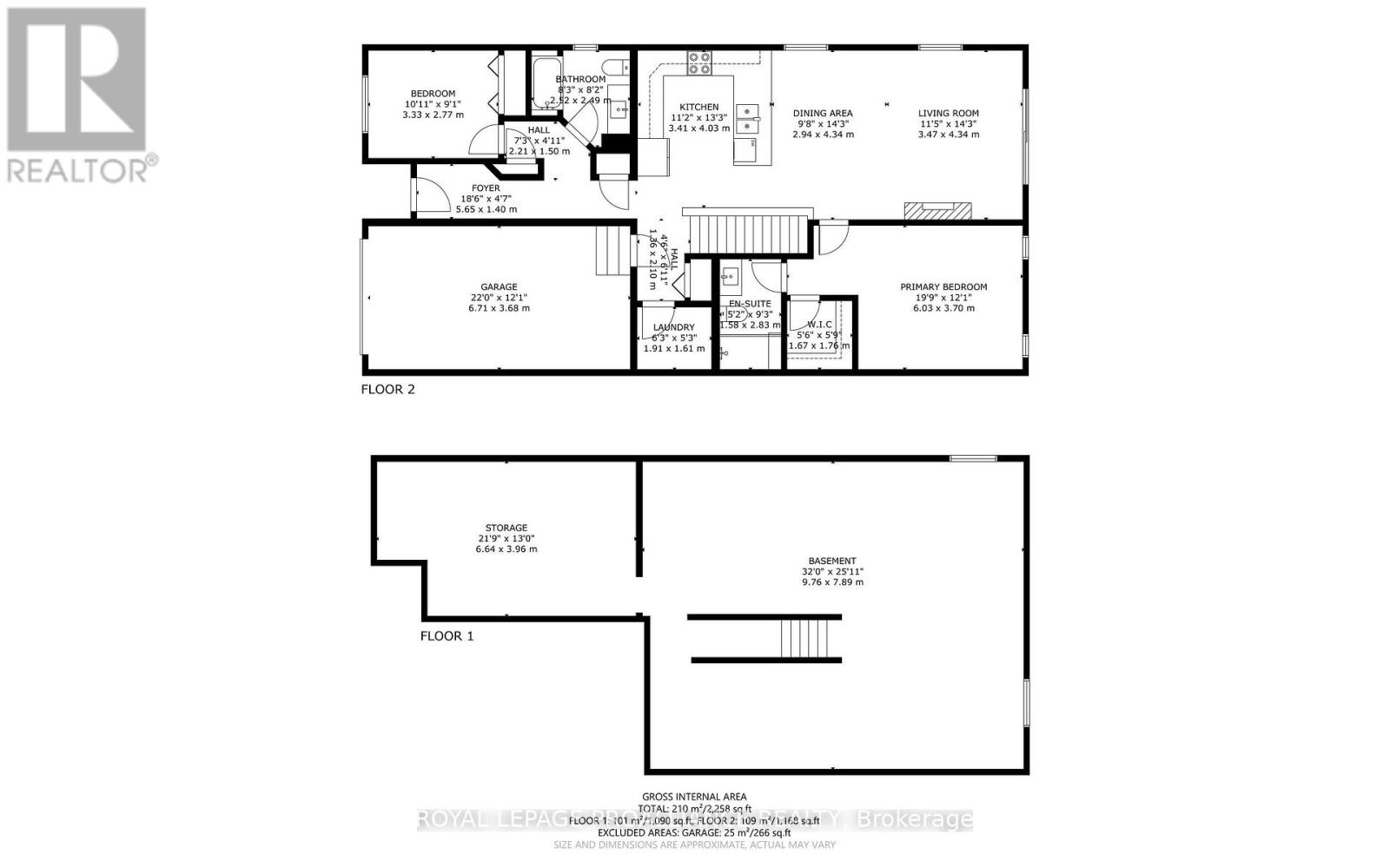
Mesures

Superficie
1100 - 1500 pi2

Pièces

MétriqueImpérial
Niveau principal
Vestibule
Salon
Salle à manger
Cuisine
Chambre principale
Salle de bain
Deuxième chambre
Salle de bain
Buanderie

Terrain

Caractéristiques du terrain
Façade
37 pi 7 po
Superficie du terrain
95 pi 7 po
Caractéristiques du bord de l'eau
Eau de surface
lac/Étang
Données fournies par : Central Lakes Association of REALTORS®
Souhaitez-vous visiter cette propriété?
Demander une visite

Inscriptions semblables

LORRAINE KUSCHMIERZ