Nous utilisons des témoins et d’autres technologies pour assurer le fonctionnement et la sécurité de nos services en ligne, et pour vous offrir une expérience personnalisée. En continuant à utiliser nos services en ligne, vous acceptez notre Politique de confidentialité et les conditions d’utilisation. Pour obtenir des informations sur la façon de régler vos paramètres de confidentialité, veuillez consulter notre Politique sur les témoins.
Masquer
Accueil ON Grand Chatham-Kent Chatham-Kent Highgate
288 KING STREET S
Directions Imprimer
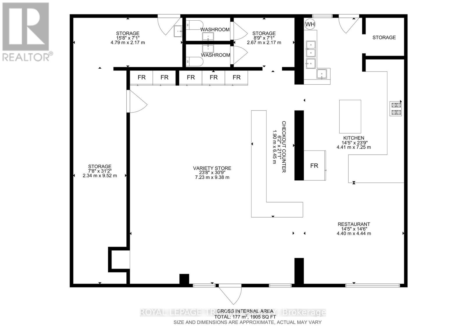
288 KING STREET S 199 900 $
199 900 $
Masquer
Favoris

288 KING STREET S
Chatham-Kent (Highgate), Ontario N0P1T0

Numéro MLS® : X12427472

Résumé de la propriété

Type de propriété
Détail
Superficie du terrain
64 x 66 FT
Impôt foncier annuel
2 272,29 $
Sur REALTOR.ca depuis
81 jours

Édifice

Caractéristiques intérieures
Appareils électroménagers inclus
Congélateur
Chauffage et refroidissement
Système de refroidissement
Entièrement climatisé
Type de chauffage
Air pulsé (Gaz naturel)
Services publics
Eau
Approvisionnement en eau par la municipalité

Mesures

Superficie
1905 pi2

Terrain

Caractéristiques du terrain
Façade
64 pi
Superficie du terrain
66 pi
Souhaitez-vous visiter cette propriété?
Demander une visite

IAN STERLING LEISHMAN