Nous utilisons des témoins et d’autres technologies pour assurer le fonctionnement et la sécurité de nos services en ligne, et pour vous offrir une expérience personnalisée. En continuant à utiliser nos services en ligne, vous acceptez notre Politique de confidentialité et les conditions d’utilisation. Pour obtenir des informations sur la façon de régler vos paramètres de confidentialité, veuillez consulter notre Politique sur les témoins.
Masquer
Accueil ON Comté de Lanark Smiths Falls
101 STAPLES BOULEVARD
Directions Imprimer
101 STAPLES BOULEVARD 459 900 $
Modification du prix le 2026/01/22
459 900 $
-10 000 $
469 900 $
Masquer
Favoris

101 STAPLES BOULEVARD
Smiths Falls, Ontario K7A0B8

Numéro MLS® : X12421467
3
Chambres
3
Salles de bain
1100 - 1500
Pieds carrés

Résumé de la propriété

Type de propriété
Unifamiliale
Type de bâtiment
Maison en rangée
Superficie
1100 - 1500 pi2
Titre
Tenure franche
Superficie du terrain
5.5 x 30.5 M
Impôt foncier annuel
0 $
Type de stationnement
Garage attenant, Garage
Sur REALTOR.ca depuis
137 jours

Édifice

Chambres
Au-dessus du niveau du sol
3
Salles de bain
Total
3
Partielle
1
Caractéristiques intérieures
Appareils électroménagers inclus
Lave-vaisselle, Sécheuse, Micro-ondes, Cuisinière, Machine à laver, Réfrigérateur
Type de sous-sol
Sous-sol complet (Partiellement aménagé)
Caractéristiques du bâtiment
Type de fondation
Béton coulé
Style
En rangée
Chauffage et refroidissement
Système de refroidissement
Climatisation centrale
Type de chauffage
Air pulsé (Gaz naturel)
Services publics
Égouts
Égout sanitaire
Eau
Approvisionnement en eau par la municipalité
Caractéristiques extérieures
Revêtement extérieur
Brique
Stationnement
Type de stationnement
Garage attenant, Garage
Nombre total d'espaces de stationnement
2

Mesures

Superficie
1100 - 1500 pi2

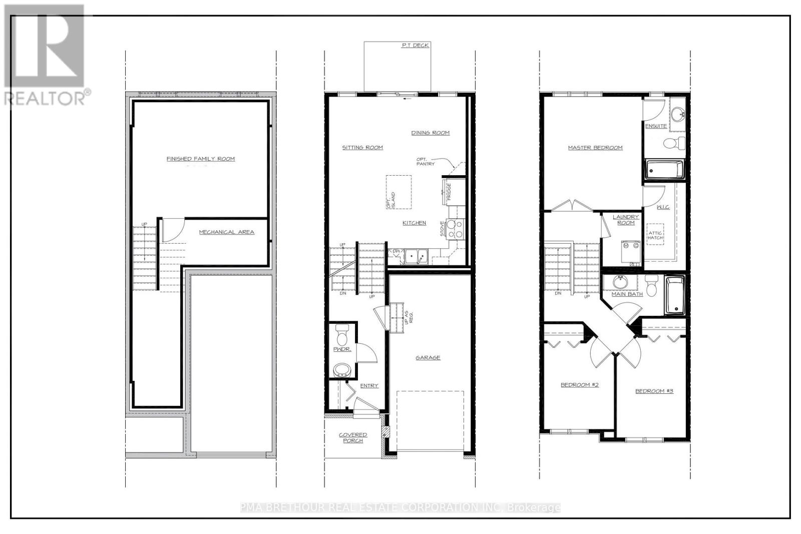
Pièces

MétriqueImpérial
Niveau principal
Cuisine
Salle à manger
Petit salon
Deuxième niveau
Troisième chambre
Deuxième chambre
Salle de bain
Buanderie
Sous-sol
Salle familiale
Niveau supérieur
Salle de bain
Autre
Chambre principale
Niveau du sol
Vestibule
Salle de bain

Terrain

Caractéristiques du terrain
Façade
5.5 m
Superficie du terrain
30.5 m
Données fournies par : Ottawa Real Estate Board
Souhaitez-vous visiter cette propriété?
Demander une visite

Inscriptions semblables

Andrew Brethour