Nous utilisons des témoins et d’autres technologies pour assurer le fonctionnement et la sécurité de nos services en ligne, et pour vous offrir une expérience personnalisée. En continuant à utiliser nos services en ligne, vous acceptez notre Politique de confidentialité et les conditions d’utilisation. Pour obtenir des informations sur la façon de régler vos paramètres de confidentialité, veuillez consulter notre Politique sur les témoins.
Masquer
Accueil BC Grand Vancouver Greater Vancouver Vancouver Sunset South Marine
103 901 E KENT AVENUE NORTH
Directions Imprimer
103 901 E KENT AVENUE NORTH 1 675 000 $
1 675 000 $
Masquer
Favoris

103 901 E KENT AVENUE NORTH
Vancouver, Colombie-Britannique V5X4V9

Numéro MLS® : C8072409

Résumé de la propriété

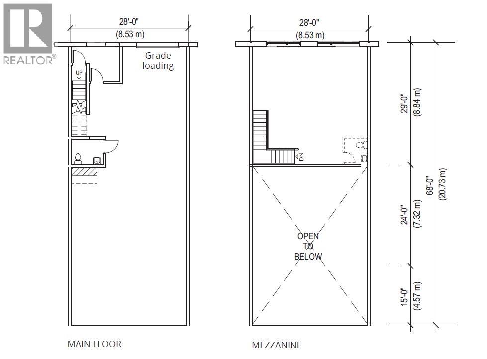
Type de propriété
Industriel
Date de construction
2023
Impôt foncier annuel
17 714,60 $
Sur REALTOR.ca depuis
84 jours

Édifice

Infos entretien ou copropriété
Frais d'entretien
2,76 $ mois

Mesures

Superficie
2730 pi2
Données fournies par : Greater Vancouver REALTORS®
Souhaitez-vous visiter cette propriété?
Demander une visite

Kevin Kassautzki