Nous utilisons des témoins et d’autres technologies pour assurer le fonctionnement et la sécurité de nos services en ligne, et pour vous offrir une expérience personnalisée. En continuant à utiliser nos services en ligne, vous acceptez notre Politique de confidentialité et les conditions d’utilisation. Pour obtenir des informations sur la façon de régler vos paramètres de confidentialité, veuillez consulter notre Politique sur les témoins.
Masquer
Accueil ON Comté d'Oxford South-West Oxford
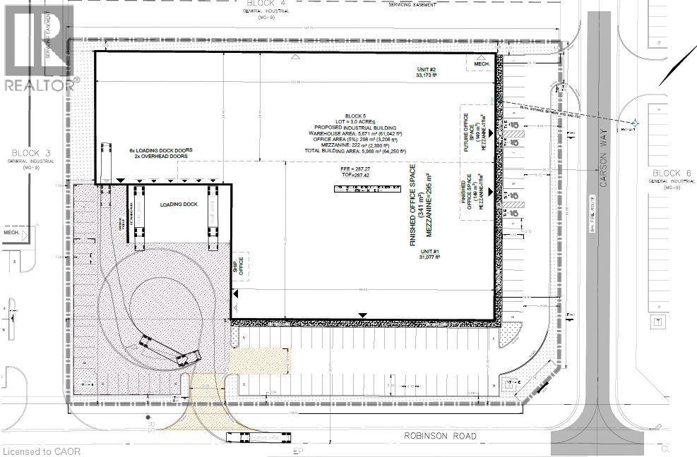
274171 WALLACE Line Unit# Block 5
Directions Imprimer
274171 WALLACE Line Unit# Block 5 1 $
1 $
Masquer
Favoris

274171 WALLACE Line Unit# Block 5
Ingersoll, Ontario N5C3J7

Numéro MLS® : 40770536

Résumé de la propriété

Type de propriété
Industriel
Étages
1
Titre
Tenure franche
Superficie du terrain
3 a|1/2 - 1,99 acre
Impôt foncier annuel
9 834,31 $
Sur REALTOR.ca depuis
89 jours

Édifice

Caractéristiques intérieures
Type de sous-sol
Pas de sous-sol
Services publics
Égouts
Égout municipal
Eau
Approvisionnement en eau par la municipalité
Caractéristiques du quartier
Caractéristiques de la communauté
Parc industriel

Mesures

Superficie
64337 pi2
Dimension du bâtiment - extérieur
64337 pi2

Terrain

Autres informations sur la propriété
Accès
Accès à l'autoroute
Souhaitez-vous visiter cette propriété?
Demander une visite

416-319-1686
519-571-9315
Ted Overbaugh