Nous utilisons des témoins et d’autres technologies pour assurer le fonctionnement et la sécurité de nos services en ligne, et pour vous offrir une expérience personnalisée. En continuant à utiliser nos services en ligne, vous acceptez notre Politique de confidentialité et les conditions d’utilisation. Pour obtenir des informations sur la façon de régler vos paramètres de confidentialité, veuillez consulter notre Politique sur les témoins.
Masquer
Accueil AB Division No. 5 Vulcan
425 Meadowlark Way
Directions Imprimer
425 Meadowlark Way 379 900 $
379 900 $
Masquer
Favoris

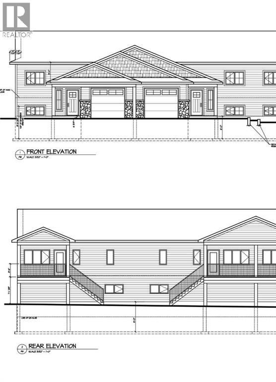
425 Meadowlark Way
Vulcan, Alberta T0L2B0

Numéro MLS® : A2256909
1
Chambres
2
Salles de bain
914
Pieds carrés

Résumé de la propriété

Type de propriété
Unifamiliale
Type de bâtiment
Maison en rangée
Superficie
914 pi2
Titre
condominium de terrain nu
Superficie du terrain
2400 pi2|0-4 050 pi2
Date de construction
2025
Impôt foncier annuel
0 $
Type de stationnement
Garage attenant (1)
Sur REALTOR.ca depuis
164 jours

Édifice

Chambres
Au-dessus du niveau du sol
1
Salles de bain
Total
2
Partielle
1
Caractéristiques intérieures
Appareils électroménagers inclus
Réfrigérateur, Lave-vaisselle, Plaque de cuisson, Four à micro-ondes avec hotte intégrée, Machine à laver et sécheuse
Couvre-plancher
Vinyle
Type de sous-sol
Sous-sol complet (Non aménagé)
Caractéristiques du bâtiment
Caractéristiques
Range-placards, Branchement barbecue à gaz
Type de fondation
Béton coulé
Style
En rangée
Style d'architecture
Logement avec entrée à mi-étage
Matériau de Construction
Charpente en bois
Structures
Terrasse
Chauffage et refroidissement
Système de refroidissement
Aucun
Foyer
1
Type de chauffage
Air pulsé, (Gaz naturel)
Caractéristiques extérieures
Revêtement extérieur
Bardage en vinyle
Caractéristiques du quartier
Caractéristiques de la communauté
Ensemble domiciliaire près d'un terrain de golf, Animaux admissibles
Commodités à proximité
Terrain de golf, Terrain de jeu, Centres commerciaux
Infos entretien ou copropriété
Frais d'entretien
125 $ mois
Les frais d'entretien comprennent
Entretien du terrain
Stationnement
Type de stationnement
Garage attenant (1)
Nombre total d'espaces de stationnement
2

Mesures

Superficie
914 pi2
Superficie totale aménagée
914 pi2

Pièces

MétriqueImpérial
Niveau principal
Salle de bain - 3 éléments
Buanderie
Autre
Chambre principale
Salle de bain - 2 éléments
Autre
Salon

Terrain

Caractéristiques du terrain
Clôture
Non clôturé
Façade
9.75 m
Superficie du terrain
22.86 m
Données fournies par : Pillar 9™
Souhaitez-vous visiter cette propriété?
Demander une visite

Inscriptions semblables

Whitney Maronda