Nous utilisons des témoins et d’autres technologies pour assurer le fonctionnement et la sécurité de nos services en ligne, et pour vous offrir une expérience personnalisée. En continuant à utiliser nos services en ligne, vous acceptez notre Politique de confidentialité et les conditions d’utilisation. Pour obtenir des informations sur la façon de régler vos paramètres de confidentialité, veuillez consulter notre Politique sur les témoins.
Masquer
Accueil ON St. Catharines - Niagara Région de Niagara St. Catharines Glenridge
1001 - 3 TOWERING HEIGHTS BOULEVARD
Directions Imprimer
1001 - 3 TOWERING HEIGHTS BOULEVARD 394 900 $
Prochaine visite libre
18
janv.
394 900 $
Masquer
Favoris

1001 - 3 TOWERING HEIGHTS BOULEVARD
St. Catharines (Glendale/Glenridge), Ontario L2T4A4

Numéro MLS® : X12396259
1 + 1
Chambres
2
Salles de bain
1000 - 1199
Pieds carrés

Visites libres

18 janv.
14 h - 16 h
Ajouter au calendrier

Résumé de la propriété

Type de propriété
Unifamiliale
Type de bâtiment
Appartement
Superficie
1000 - 1199 pi2
Titre
Copropriété divise
Âge de l'édifice
31 à 50 ans
Impôt foncier annuel
3 674,01 $
Type de stationnement
Stationnement souterrain, Garage
Sur REALTOR.ca depuis
128 jours

Édifice

Chambres
Au-dessus du niveau du sol
1
Au-dessous du niveau du sol
1
Salles de bain
Total
2
Partielle
1
Caractéristiques intérieures
Appareils électroménagers inclus
Lave-vaisselle, Sécheuse, Cuisinière, Machine à laver, Réfrigérateur
Type de sous-sol
Pas de sous-sol
Caractéristiques du bâtiment
Caractéristiques
Zone boisée, Ravin, Éclairage, Buanderie
Protection contre les incendies
Entrée sélective
Commodités qu'offre le bâtiment
Salle d'exercises, Centre récréatif, Salle de réception, Stationnement pour les visiteurs, Armoire vestiaire
Location de matérial incluse
Aucun
Chauffage et refroidissement
Système de refroidissement
Climatisation centrale
Type de chauffage
Air pulsé (Gaz naturel)
Caractéristiques extérieures
Revêtement extérieur
Brique, Stuc
Piscine
Piscine intérieure
Caractéristiques du quartier
Caractéristiques de la communauté
Animaux interdits
Commodités à proximité
Terrain de golf à proximité, Transport en commun, Écoles
Infos entretien ou copropriété
Frais d'entretien
1 210,46 $ mois
Les frais d'entretien comprennent
Chauffage, Électricité, Câblodistribution, Assurance, Entretien de la zone commune, Eau, Parking
Société de gestion de l'entretien
Cannon Greco
Stationnement
Type de stationnement
Stationnement souterrain, Garage
Nombre total d'espaces de stationnement
1

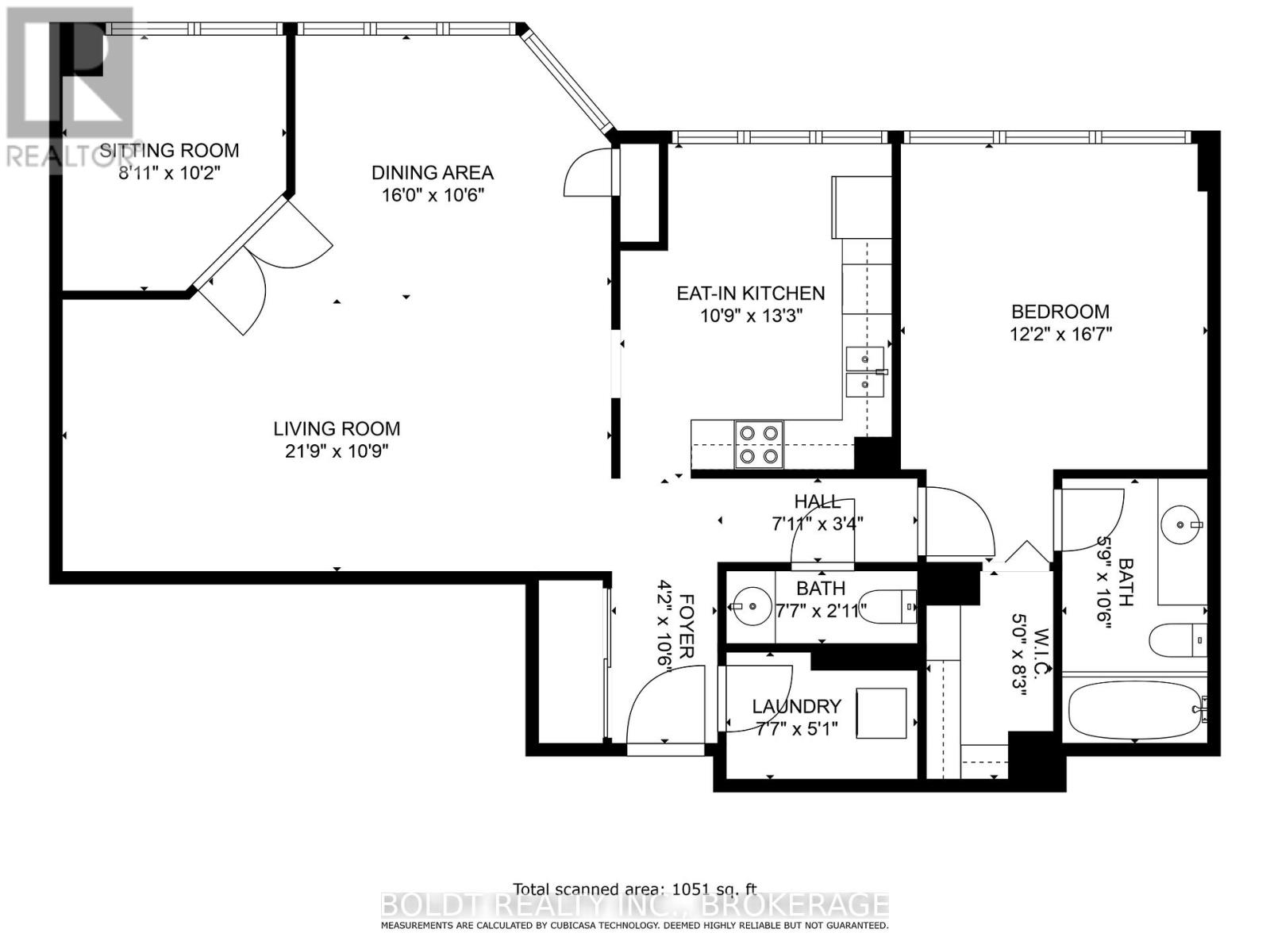
Mesures

Superficie
1000 - 1199 pi2

Pièces

MétriqueImpérial
Niveau principal
Salon
Salle à manger
Cuisine
Coin repos
Chambre principale
Buanderie
Salle de bain
Salle de bain
Données fournies par : Niagara Association of REALTORS®
Souhaitez-vous visiter cette propriété?
Demander une visite

Inscriptions semblables

Debbie Page