Nous utilisons des témoins et d’autres technologies pour assurer le fonctionnement et la sécurité de nos services en ligne, et pour vous offrir une expérience personnalisée. En continuant à utiliser nos services en ligne, vous acceptez notre Politique de confidentialité et les conditions d’utilisation. Pour obtenir des informations sur la façon de régler vos paramètres de confidentialité, veuillez consulter notre Politique sur les témoins.
Masquer
Accueil QC Grand Montréal Montréal Le Sud-Ouest Pointe-Saint-Charles
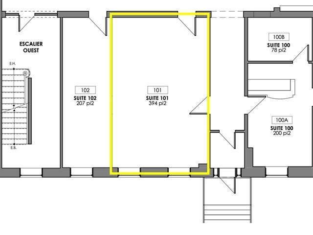
2325 Rue du Centre #101
Directions Imprimer
2325 Rue du Centre #101 + TPS + TVQ 1 650 $/mois
+ TPS + TVQ 1 650 $/mois
Masquer
Favoris

2325 Rue du Centre
#101
Montréal (Le Sud-Ouest), Québec H3K1J6

Numéro MLS® : 24863292

Description de l’inscription

Bureau de 394 pieds carrés comprenant 1 pièce fermée situé au 1ière étage d'un immeuble commercial. Espace très lumineux avec salle de bain commune au premier étage. Stationnement facile sur la rue. À quelques pas du métro Charlevoix et des autobus 57 et 71. TPS/TVQ doivent être ajoutées au prix demandé (53709742)

Résumé de la propriété

Type de propriété
Détail
Type de bâtiment
Détail
Quartier
Pointe-Saint-Charles
Sur REALTOR.ca depuis
101 jours

Édifice

Caractéristiques du bâtiment
Style
Isolée
Unités totales
1
Chauffage et refroidissement
Type de chauffage
(Électrique)
Services publics
Égouts
Égout municipal
Eau
Approvisionnement en eau par la municipalité
Entreprise
Type d'entreprise
Autre (Bureaux)

Terrain

Autres informations sur la propriété
Type de Zonage
Commercial
Caractéristiques de la ferme
Type de ferme
Autre
Souhaitez-vous visiter cette propriété?
Demander une visite

Tommy Venardos