Nous utilisons des témoins et d’autres technologies pour assurer le fonctionnement et la sécurité de nos services en ligne, et pour vous offrir une expérience personnalisée. En continuant à utiliser nos services en ligne, vous acceptez notre Politique de confidentialité et les conditions d’utilisation. Pour obtenir des informations sur la façon de régler vos paramètres de confidentialité, veuillez consulter notre Politique sur les témoins.
Masquer
Accueil AB Grand Calgary Division No. 6 Chestermere Lakeview Landing
100 Lakeview Cove
Directions Imprimer
100 Lakeview Cove 650 000 $
650 000 $
Masquer
Favoris

100 Lakeview Cove
Chestermere, Alberta T1X1E7

Numéro MLS® : A2252642
3 + 1
Chambres
4
Salles de bain
2085
Pieds carrés

Résumé de la propriété

Type de propriété
Unifamiliale
Type de bâtiment
Unifamilial
Étages
2
Superficie
2085 pi2
Titre
Tenure franche
Superficie du terrain
5293 pi2|4 051 - 7 250 pi2
Date de construction
1998
Impôt foncier annuel
3 811,59 $
Type de stationnement
Garage attenant (2)
Sur REALTOR.ca depuis
99 jours

Édifice

Chambres
Au-dessus du niveau du sol
3
Au-dessous du niveau du sol
1
Salles de bain
Total
4
Partielle
1
Caractéristiques intérieures
Appareils électroménagers inclus
Machine à laver, Réfrigérateur, Cuisinière(s) à gaz, Lave-vaisselle, Sécheuse, Micro-ondes, Hotte, Couvre-fenêtre, Ouvre-porte de garage
Couvre-plancher
plancher recouvert de tapis, plancher de bois franc, Carrelage, Planche vinyle
Type de sous-sol
Sous-sol complet (Aménagé)
Caractéristiques du bâtiment
Caractéristiques
Plat, Belvédère
Type de fondation
Béton coulé
Style
Isolée
Matériau de Construction
Charpente en bois
Structures
Remise, Terrasse
Chauffage et refroidissement
Système de refroidissement
Aucun
Foyer
1
Type de chauffage
Air pulsé, (Gaz naturel)
Caractéristiques extérieures
Revêtement extérieur
Pierre, Bardage en vinyle
Caractéristiques du quartier
Caractéristiques de la communauté
Ensemble domiciliaire près d'un terrain de golf, Accès au lac, Pêche
Commodités à proximité
Terrain de golf, Parc, Terrain de jeu, Écoles, Centres commerciaux, Près de l'eau
Stationnement
Type de stationnement
Garage attenant (2)
Nombre total d'espaces de stationnement
4

Mesures

Superficie
2085 pi2
Superficie totale aménagée
2085 pi2

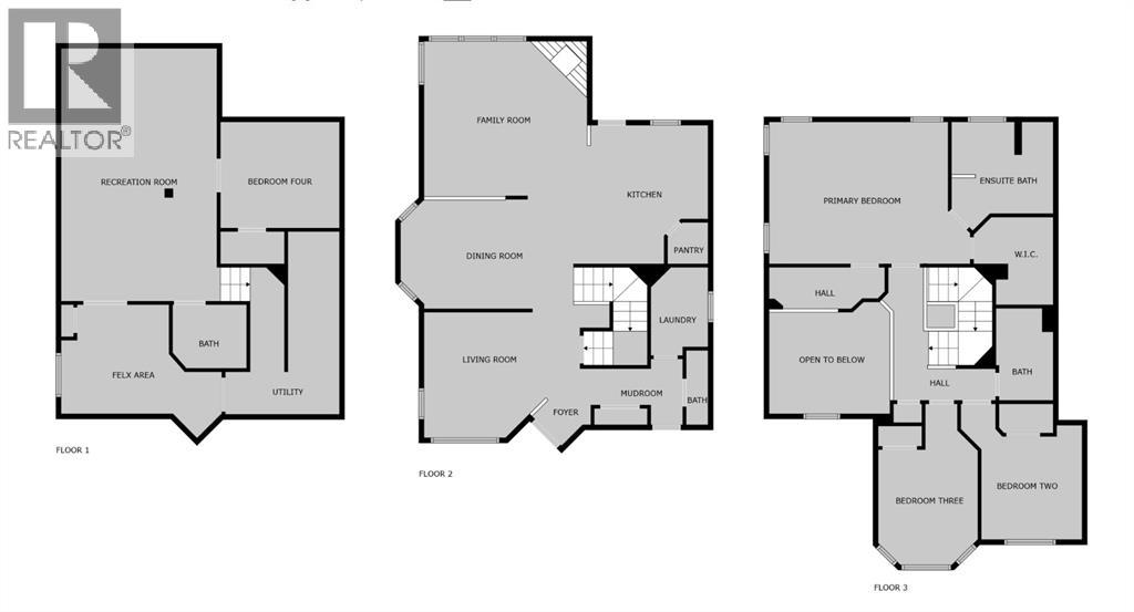
Pièces

MétriqueImpérial
Niveau principal
Salon
Cuisine
Salle à manger
Salle familiale
Buanderie
Salle de bain - 2 éléments
Sous-sol
Salle de jeux, récréative
Chambre à coucher
Autre
Salle de bain - 3 éléments
Niveau supérieur
Chambre principale
Autre
Salle de bain - 5 éléments
Chambre à coucher
Chambre à coucher
Grenier
Salle de bain - 4 éléments

Terrain

Caractéristiques du terrain
Clôture
Clôture
Façade
14.02 m
Superficie du terrain
35.01 m
Aménagement paysager
Jardin, Terrain paysager, Pelouse
Données fournies par : Pillar 9™
Souhaitez-vous visiter cette propriété?
Demander une visite

Inscriptions semblables

Gabor David