Nous utilisons des témoins et d’autres technologies pour assurer le fonctionnement et la sécurité de nos services en ligne, et pour vous offrir une expérience personnalisée. En continuant à utiliser nos services en ligne, vous acceptez notre Politique de confidentialité et les conditions d’utilisation. Pour obtenir des informations sur la façon de régler vos paramètres de confidentialité, veuillez consulter notre Politique sur les témoins.
Masquer
Accueil AB Grand Calgary Division No. 6 Cochrane Cochrane Industrial Park
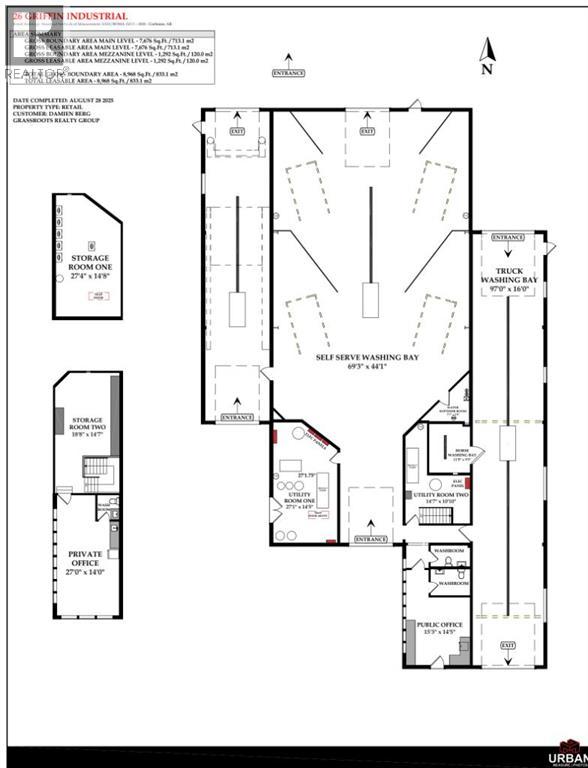
26 Griffin Industrial Point
Directions Imprimer
26 Griffin Industrial Point 3 150 000 $
3 150 000 $
Masquer
Favoris

26 Griffin Industrial Point
Cochrane, Alberta T4C0A2

Numéro MLS® : A2254001

Résumé de la propriété

Type de propriété
Entreprise
Superficie du terrain
2530 m2|21 780 - 32 669 pi2 (1/2 - 3/4 acre)
Date de construction
2019
Impôt foncier annuel
19 754 $
Sur REALTOR.ca depuis
100 jours

Édifice

Entreprise
Type d'entreprise
Automobile (Lave-auto)

Mesures

Superficie
8968 pi2
Superficie totale aménagée
8968 pi2
Dimension du bâtiment - extérieur
8968 pi2

Terrain

Caractéristiques du terrain
Type de route
Route revêtue
Données fournies par : Pillar 9™
Souhaitez-vous visiter cette propriété?
Demander une visite

Damien Berg